|
|
Kobe-shi, Hyogo Tarumi-ku,
兵庫県神戸市垂水区
|
|
Subway Seishin ・ Yamanote Line "university town" a 10-minute dance Tamon Nishi 7-chome, walk 4 minutes by bus
地下鉄西神・山手線「学園都市」バス10分舞多聞西7丁目歩4分
|
|
Daiwa House of house
大和ハウスの家
|
Price 価格 | | 41,500,000 yen 4150万円 |
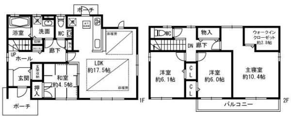
Floor plan 間取り | | 4LDK 4LDK |
Units sold 販売戸数 | | 1 units 1戸 |
Land area 土地面積 | | 190.99 sq m (registration) 190.99m2(登記) |
Building area 建物面積 | | 116.18 sq m (registration) 116.18m2(登記) |
Driveway burden-road 私道負担・道路 | | Nothing 無 |
Completion date 完成時期(築年月) | | March 2012 2012年3月 |
Address 住所 | | Hyogo Prefecture, Kobe City Tarumi-ku, dance Tamon west 7 兵庫県神戸市垂水区舞多聞西7 |
Traffic 交通 | | Subway Seishin ・ Yamanote Line "university town" a 10-minute dance Tamon Nishi 7-chome, walk 4 minutes by bus 地下鉄西神・山手線「学園都市」バス10分舞多聞西7丁目歩4分
|
Related links 関連リンク | | [Related Sites of this company] 【この会社の関連サイト】 |
Person in charge 担当者より | | Rep Kajiya 担当者梶谷 |
Contact お問い合せ先 | | TEL: 0800-603-0471 [Toll free] mobile phone ・ Also available from PHS Caller ID is not notified Please contact the "saw SUUMO (Sumo)" If it does not lead, If the real estate company TEL:0800-603-0471【通話料無料】携帯電話・PHSからもご利用いただけます 発信者番号は通知されません 「SUUMO(スーモ)を見た」と問い合わせください つながらない方、不動産会社の方は
|
Building coverage, floor area ratio 建ぺい率・容積率 | | Fifty percent ・ Hundred percent 50%・100% |
Time residents 入居時期 | | Consultation 相談 |
Land of the right form 土地の権利形態 | | Ownership 所有権 |
Structure and method of construction 構造・工法 | | Light-gauge steel 2-story 軽量鉄骨2階建 |
Construction 施工 | | Daiwa House Industry Co., Ltd. 大和ハウス工業(株) |
Use district 用途地域 | | One low-rise 1種低層 |
Overview and notices その他概要・特記事項 | | Contact: Kajiya, Parking: car space 担当者:梶谷、駐車場:カースペース |
Company profile 会社概要 | | <Mediation> Minister of Land, Infrastructure and Transport (10) No. 002608 Japan Residential Distribution Co., Ltd. Rokko shop Yubinbango657-0028 Kobe, Hyogo Prefecture Nada Ward Morigo cho 2-3-2-103 pa - Kunova Rokkomichi first floor <仲介>国土交通大臣(10)第002608号日本住宅流通(株)六甲店〒657-0028 兵庫県神戸市灘区森後町2-3-2-103 パ-クノヴァ六甲道1階 |