|
|
Kobe-shi, Hyogo Tarumi-ku,
兵庫県神戸市垂水区
|
|
JR Sanyo Line "Tarumi" bus 17 minutes Tsutsujigaoka 2-chome, walk 5 minutes
JR山陽本線「垂水」バス17分つつじが丘2丁目歩5分
|
|
Site about 57 square meters ・ Ken'nobe about 34 square meters. Yang per at the south-facing ・ Ventilation is good. Super is a 5-minute shopping convenient location walk to "Toho".
敷地約57坪・建延約34坪。南向きにて陽当り・通風良好です。スーパー「トーホー」まで徒歩5分買物便利な立地です。
|
Features pickup 特徴ピックアップ | | Land 50 square meters or more / Super close / Facing south / Yang per good / Siemens south road / A quiet residential area / Or more before road 6m / Japanese-style room / garden / Toilet 2 places / 2-story / Nantei / Ventilation good / City gas 土地50坪以上 /スーパーが近い /南向き /陽当り良好 /南側道路面す /閑静な住宅地 /前道6m以上 /和室 /庭 /トイレ2ヶ所 /2階建 /南庭 /通風良好 /都市ガス |
Price 価格 | | 22,800,000 yen 2280万円 |
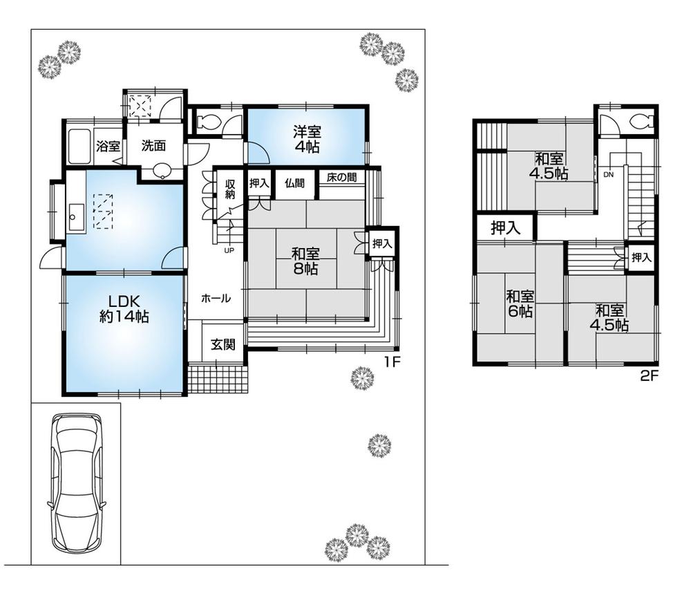
Floor plan 間取り | | 5LDK 5LDK |
Units sold 販売戸数 | | 1 units 1戸 |
Total units 総戸数 | | 1 units 1戸 |
Land area 土地面積 | | 191.59 sq m (registration) 191.59m2(登記) |
Building area 建物面積 | | 115.52 sq m (registration) 115.52m2(登記) |
Driveway burden-road 私道負担・道路 | | Nothing, South 6m width 無、南6m幅 |
Completion date 完成時期(築年月) | | December 1982 1982年12月 |
Address 住所 | | Hyogo Prefecture, Kobe City Tarumi Ward Tsutsujigaoka 1 兵庫県神戸市垂水区つつじが丘1 |
Traffic 交通 | | JR Sanyo Line "Tarumi" bus 17 minutes Tsutsujigaoka 2-chome, walk 5 minutes JR山陽本線「垂水」バス17分つつじが丘2丁目歩5分
|
Related links 関連リンク | | [Related Sites of this company] 【この会社の関連サイト】 |
Contact お問い合せ先 | | TEL: 0800-603-1910 [Toll free] mobile phone ・ Also available from PHS Caller ID is not notified Please contact the "saw SUUMO (Sumo)" If it does not lead, If the real estate company TEL:0800-603-1910【通話料無料】携帯電話・PHSからもご利用いただけます 発信者番号は通知されません 「SUUMO(スーモ)を見た」と問い合わせください つながらない方、不動産会社の方は
|
Building coverage, floor area ratio 建ぺい率・容積率 | | 40% ・ 80% 40%・80% |
Time residents 入居時期 | | Consultation 相談 |
Land of the right form 土地の権利形態 | | Ownership 所有権 |
Structure and method of construction 構造・工法 | | Wooden 2-story 木造2階建 |
Use district 用途地域 | | One low-rise 1種低層 |
Other limitations その他制限事項 | | Residential land development construction regulation area, Site area minimum Yes 宅地造成工事規制区域、敷地面積最低限度有 |
Overview and notices その他概要・特記事項 | | Facilities: Public Water Supply, This sewage, City gas, Parking: Car Port 設備:公営水道、本下水、都市ガス、駐車場:カーポート |
Company profile 会社概要 | | <Mediation> Governor of Hyogo Prefecture (6) No. 009711 (Ltd.) House Corporation Suma shop Yubinbango654-0055 Kobe, Hyogo Prefecture Suma-ku, Sumauradori 5-6-27 <仲介>兵庫県知事(6)第009711号(株)ハウスコーポレーション須磨店〒654-0055 兵庫県神戸市須磨区須磨浦通5-6-27 |