Used Homes » Kansai » Hyogo Prefecture » Kobe Tarumi-ku


Kobe-shi, Hyogo Tarumi-ku,
Sanyo Electric Railway "Teahouse of the waterfall" main line walking 15 minutes
☆ Tarumi-ku [Aoyama first] 2013 June renovation already used detached spec at ☆ The terrain of the east edge, Day ・ You views of the sea from the good and the second floor view.
2-story, Facing south, Interior renovation, Or more before road 6m, Parking two Allowed, Ocean View, 2 along the line more accessible, Yang per good, A quiet residential area, Around traffic fewerese-style room, The window in the bathroom, Ventilation good, Good view, All room 6 tatami mats or more, City gas
Features pickup
Parking two Allowed / 2 along the line more accessible / Ocean View / Interior renovation / Facing south / Yang per good / A quiet residential area / Around traffic fewer / Or more before road 6m / Japanese-style room / 2-story / The window in the bathroom / Ventilation good / Good view / All room 6 tatami mats or more / City gas
Price
15.8 million yen
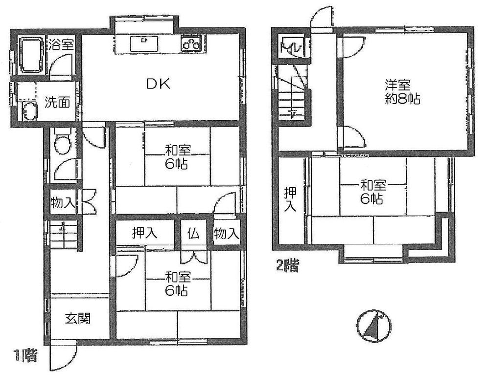
Floor plan
4DK
Units sold
1 units
Land area
114.83 sq m (registration)
Building area
85.45 sq m (measured)
Driveway burden-road
Nothing, West 6m width (contact the road width 13m)
Completion date
April 1982
Address
Hyogo Prefecture, Kobe City Tarumi-ku Aoyama table 1
Traffic
Sanyo Electric Railway "Teahouse of the waterfall" main line walking 15 minutes
JR Sanyo Line "Shioya" walk 17 minutes
Related links
[Related Sites of this company]
Person in charge
Rep Makotofuji Koji Tarumi born of Tarumi grew up. Suggestions of precisely because I love this town. Please let me help you the most in the sale or purchase of your hope. baseball ・ marathon ・ Triathlon, etc., I like that move the body, I will do my best in the light footwork.
Contact
TEL: 0800-603-8561 [Toll free] mobile phone ・ Also available from PHS
Caller ID is not notified
Please contact the "saw SUUMO (Sumo)"
If it does not lead, If the real estate company
Building coverage, floor area ratio
Fifty percent ・ Hundred percent
Time residents
Consultation
Land of the right form
Ownership
Structure and method of construction
Wooden 2-story
Renovation
2013 May interior renovation completed (kitchen ・ bathroom ・ toilet ・ wall ・ floor ・ Ceiling Chokawa)
Use district
One low-rise
Overview and notices
Contact: Makotofuji Koji, Facilities: Public Water Supply, This sewage, City gas, Parking: car space
Company profile
<Mediation> Governor of Hyogo Prefecture (2) Article 011 259 No. Act Kobe Co. Yubinbango655-0027 Kobe City, Hyogo Prefecture Tarumi-ku, Kanda-cho, 2-40 Isobe building first floor


Local appearance photo
Local appearance photo

Living
Living

Bathroom
Bathroom

Floor plan

Floor plan. 15.8 million yen, 4DK, Land area 114.83 sq m , There is a building area of ​​85.45 sq m each room 6 Pledge or more and clear a certain extent. Heisei interior good at 25 June renovation completed
15.8 million yen, 4DK, Land area 114.83 sq m , There is a building area of ​​85.45 sq m each room 6 Pledge or more and clear a certain extent. Heisei interior good at 25 June renovation completed

Kitchen
Kitchen

Non-living room
Non-living room

Parking lot
Parking lot

Shopping centre

Shopping centre. 988m until ion James mountain
988m until ion James mountain

Non-living room
Non-living room

Supermarket

Supermarket. Maruay 735m until Aoyama table shop
Maruay 735m until Aoyama table shop

Drug store

Drug store. 830m until cedar pharmacy Higashitarumi shop
830m until cedar pharmacy Higashitarumi shop

Home center

Home center. 995m to home improvement Konan James mountain shop
995m to home improvement Konan James mountain shop

Junior high school

Junior high school. 758m to Kobe Municipal Shioya junior high school
758m to Kobe Municipal Shioya junior high school

Primary school

Primary school. 1197m to Kobe Municipal Shioya Elementary School
1197m to Kobe Municipal Shioya Elementary School

Hospital

Hospital. Osawa 1029m to the hospital
Osawa 1029m to the hospital



Location