Used Homes » Kansai » Hyogo Prefecture » Kobe Tarumi-ku
 
| | Kobe-shi, Hyogo Tarumi-ku, 兵庫県神戸市垂水区 |
| Subway Seishin ・ Yamanote Line "university city" walk 20 minutes 地下鉄西神・山手線「学園都市」歩20分 |
| ☆ Tarumi-ku [Kozukayama hand] Built in September 2010 at the, Used detached spec with a solar power generation equipment ☆ Breadth of the southwest corner lot that is clear in the site area spacious 157 square meters. ☆垂水区【小束山手】にて平成22年9月築、太陽光発電装置付の中古戸建分譲☆敷地面積広々157坪でゆとりある広さの南西角地。 |
| 2-story, Southwestward, LDK18 tatami mats or more, Corner lot, Or more before road 6m, System kitchen, Immediate Available, Bathroom Dryer, Yang per good, All room storage, A quiet residential areaese-style room, Shaping land, Face-to-face kitchen, Bathroom 1 tsubo or more, South balcony, The window in the bathroom, Ventilation good, Dish washing dryer, Living stairs, City gas, Storeroom, Maintained sidewalk 2階建、南西向き、LDK18畳以上、角地、前道6m以上、システムキッチン、即入居可、浴室乾燥機、陽当り良好、全居室収納、閑静な住宅地、和室、整形地、対面式キッチン、浴室1坪以上、南面バルコニー、浴室に窓、通風良好、食器洗乾燥機、リビング階段、都市ガス、納戸、整備された歩道 |
Features pickup 特徴ピックアップ | | Immediate Available / LDK18 tatami mats or more / System kitchen / Bathroom Dryer / Yang per good / All room storage / A quiet residential area / Or more before road 6m / Corner lot / Japanese-style room / Shaping land / Face-to-face kitchen / Bathroom 1 tsubo or more / 2-story / South balcony / The window in the bathroom / Ventilation good / Southwestward / Dish washing dryer / Living stairs / City gas / Storeroom / Maintained sidewalk 即入居可 /LDK18畳以上 /システムキッチン /浴室乾燥機 /陽当り良好 /全居室収納 /閑静な住宅地 /前道6m以上 /角地 /和室 /整形地 /対面式キッチン /浴室1坪以上 /2階建 /南面バルコニー /浴室に窓 /通風良好 /南西向き /食器洗乾燥機 /リビング階段 /都市ガス /納戸 /整備された歩道 | Price 価格 | | 28.8 million yen 2880万円 | Floor plan 間取り | | 2LDK + S (storeroom) 2LDK+S(納戸) | Units sold 販売戸数 | | 1 units 1戸 | Land area 土地面積 | | 157.72 sq m (47.71 tsubo) (Registration) 157.72m2(47.71坪)(登記) | Building area 建物面積 | | 100.98 sq m (30.54 tsubo) (measured) 100.98m2(30.54坪)(実測) | Driveway burden-road 私道負担・道路 | | Nothing, West 6m width, South 6m width 無、西6m幅、南6m幅 | Completion date 完成時期(築年月) | | September 2010 2010年9月 | Address 住所 | | Hyogo Prefecture, Kobe City Tarumi Ward Kozukayama hand 1 兵庫県神戸市垂水区小束山手1 | Traffic 交通 | | Subway Seishin ・ Yamanote Line "university city" walk 20 minutes Subway Seishin ・ Yamanote Line "university city" bus 4 minutes Kozukayama hand 1-chome, walk 2 minutes 地下鉄西神・山手線「学園都市」歩20分 地下鉄西神・山手線「学園都市」バス4分小束山手1丁目歩2分
| Related links 関連リンク | | [Related Sites of this company] 【この会社の関連サイト】 | Person in charge 担当者より | | Rep Makotofuji Koji Tarumi born of Tarumi grew up. Suggestions of precisely because I love this town. Please let me help you the most in the sale or purchase of your hope. baseball ・ marathon ・ Triathlon, etc., I like that move the body, I will do my best in the light footwork. 担当者眞藤 浩司垂水生まれの垂水育ち。この街が好きだからこそのご提案。お客様のご希望を一番に売却や購入のお手伝いをさせて頂きます。野球・マラソン・トライアスロン等、体を動かす事が好きで、軽いフットワークで頑張ります。 | Contact お問い合せ先 | | TEL: 0800-603-8561 [Toll free] mobile phone ・ Also available from PHS Caller ID is not notified Please contact the "saw SUUMO (Sumo)" If it does not lead, If the real estate company TEL:0800-603-8561【通話料無料】携帯電話・PHSからもご利用いただけます 発信者番号は通知されません 「SUUMO(スーモ)を見た」と問い合わせください つながらない方、不動産会社の方は
| Building coverage, floor area ratio 建ぺい率・容積率 | | Fifty percent ・ Hundred percent 50%・100% | Time residents 入居時期 | | Immediate available 即入居可 | Land of the right form 土地の権利形態 | | Ownership 所有権 | Structure and method of construction 構造・工法 | | Wooden 2-story 木造2階建 | Use district 用途地域 | | One low-rise 1種低層 | Overview and notices その他概要・特記事項 | | Contact: Makotofuji Koji, Facilities: Public Water Supply, This sewage, City gas, Parking: car space 担当者:眞藤 浩司、設備:公営水道、本下水、都市ガス、駐車場:カースペース | Company profile 会社概要 | | <Mediation> Governor of Hyogo Prefecture (2) Article 011 259 No. Act Kobe Co. Yubinbango655-0027 Kobe City, Hyogo Prefecture Tarumi-ku, Kanda-cho, 2-40 Isobe building first floor <仲介>兵庫県知事(2)第011259号アクト神戸(株)〒655-0027 兵庫県神戸市垂水区神田町2-40 磯部ビル1階 |
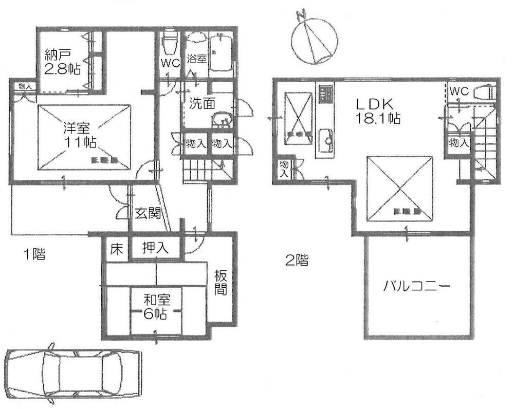
Floor plan間取り図  28.8 million yen, 2LDK + S (storeroom), Land area 157.72 sq m , The LDK of building area 100.98 sq m 18.1 Pledge from the floor plan second floor of the balcony, which was the center, There is a view overlooking the Akashi Strait Bridge and sea.
2880万円、2LDK+S(納戸)、土地面積157.72m2、建物面積100.98m2 18.1帖のLDKを中心とした間取り2階のバルコニーからは、明石海峡大橋や海を望む眺望がございます。
Shopping centreショッピングセンター  898m to Costco Wholesale Kobe warehouse store
コストコホールセール神戸倉庫店まで898m
Home centerホームセンター  Yamada Denki Tecc Land New 738m to Kobe Tarumi head office
ヤマダ電機テックランドNew神戸垂水本店まで738m
Hospital病院  2695m until the medical corporation Association violet Board Myodani hospital
医療法人社団菫会名谷病院まで2695m
Location
|