Used Homes » Kansai » Hyogo Prefecture » Kobe Tarumi-ku
 
| | Kobe-shi, Hyogo Tarumi-ku, 兵庫県神戸市垂水区 |
| JR Sanyo Line "Maiko" bus 10 Bunmai Kosaka 4-chome, walk 4 minutes JR山陽本線「舞子」バス10分舞小坂4丁目歩4分 |
Features pickup 特徴ピックアップ | | Parking two Allowed / Facing south / System kitchen / Bathroom Dryer / Yang per good / Siemens south road / A quiet residential area / Shaping land / Washbasin with shower / Face-to-face kitchen / Security enhancement / 2-story / The window in the bathroom / Leafy residential area / Ventilation good 駐車2台可 /南向き /システムキッチン /浴室乾燥機 /陽当り良好 /南側道路面す /閑静な住宅地 /整形地 /シャワー付洗面台 /対面式キッチン /セキュリティ充実 /2階建 /浴室に窓 /緑豊かな住宅地 /通風良好 | Price 価格 | | 26,800,000 yen 2680万円 | Floor plan 間取り | | 4LDK 4LDK | Units sold 販売戸数 | | 1 units 1戸 | Land area 土地面積 | | 102.03 sq m (registration) 102.03m2(登記) | Building area 建物面積 | | 101.02 sq m (registration) 101.02m2(登記) | Driveway burden-road 私道負担・道路 | | Nothing 無 | Completion date 完成時期(築年月) | | May 2007 2007年5月 | Address 住所 | | Hyogo Prefecture, Kobe City Tarumi Ward Maikozaka 4 兵庫県神戸市垂水区舞子坂4 | Traffic 交通 | | JR Sanyo Line "Maiko" bus 10 Bunmai Kosaka 4-chome, walk 4 minutes JR山陽本線「舞子」バス10分舞小坂4丁目歩4分
| Related links 関連リンク | | [Related Sites of this company] 【この会社の関連サイト】 | Person in charge 担当者より | | Person in charge of real-estate and building Kobayashi Kazuki Age: 20s Tarumi sea, Mountain There is also commercial facilities, etc. is where even livable have been enhanced. Since we wholeheartedly support thank you to the Corporation Act If you are looking for a home in Tarumi. 担当者宅建小林 和樹年齢:20代垂水は海、山もあり商業施設等も充実していて住みやすいところです。誠心誠意サポート致しますので垂水でお家をお探しなら株式会社アクトまでお願いします。 | Contact お問い合せ先 | | TEL: 0800-603-3035 [Toll free] mobile phone ・ Also available from PHS Caller ID is not notified Please contact the "saw SUUMO (Sumo)" If it does not lead, If the real estate company TEL:0800-603-3035【通話料無料】携帯電話・PHSからもご利用いただけます 発信者番号は通知されません 「SUUMO(スーモ)を見た」と問い合わせください つながらない方、不動産会社の方は
| Building coverage, floor area ratio 建ぺい率・容積率 | | 60% ・ 150% 60%・150% | Time residents 入居時期 | | Consultation 相談 | Land of the right form 土地の権利形態 | | Ownership 所有権 | Structure and method of construction 構造・工法 | | Wooden 2-story 木造2階建 | Use district 用途地域 | | One low-rise 1種低層 | Overview and notices その他概要・特記事項 | | Contact: Kobayashi Kazuki, Facilities: This sewage, City gas, Parking: Garage 担当者:小林 和樹、設備:本下水、都市ガス、駐車場:車庫 | Company profile 会社概要 | | <Mediation> Governor of Hyogo Prefecture (4) No. 010337 (Ltd.) Act head office Yubinbango655-0013 Kobe City, Hyogo Prefecture Tarumi-ku, Fukuda 2-4-4 <仲介>兵庫県知事(4)第010337号(株)アクト本店〒655-0013 兵庫県神戸市垂水区福田2-4-4 |
Local appearance photo現地外観写真  Local (11 May 2013) Shooting
現地(2013年11月)撮影
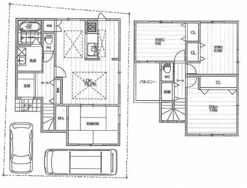
Floor plan間取り図  26,800,000 yen, 4LDK, Land area 102.03 sq m , Building area 101.02 sq m
2680万円、4LDK、土地面積102.03m2、建物面積101.02m2
Supermarketスーパー  Toho store until Hontamon shop 1126m
トーホーストア本多聞店まで1126m
Home centerホームセンター  1733m to Agro Garden Kobe Seiryodai shop
アグロガーデン神戸星陵台店まで1733m
Junior high school中学校  921m to Kobe Maiko junior high school
神戸市立舞子中学校まで921m
Primary school小学校  714m to Kobe Municipal Nishi Maiko Elementary School
神戸市立西舞子小学校まで714m
Location
|