1984March
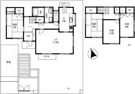
20,140,000 yen, 4LDK, 96.05 sq m
Used Homes » Kansai » Hyogo Prefecture » Kobe Tarumi-ku
 
| | Kobe-shi, Hyogo Tarumi-ku, 兵庫県神戸市垂水区 |
| JR Sanyo Line "Tarumi" 24 minutes Tsutsujigaoka walk 3 minutes by bus JR山陽本線「垂水」バス24分つつじが丘歩3分 |
Price 価格 | | 20,140,000 yen 2014万円 | Floor plan 間取り | | 4LDK 4LDK | Units sold 販売戸数 | | 1 units 1戸 | Land area 土地面積 | | 180.6 sq m (registration) 180.6m2(登記) | Building area 建物面積 | | 96.05 sq m (registration) 96.05m2(登記) | Driveway burden-road 私道負担・道路 | | Nothing, South 6m width 無、南6m幅 | Completion date 完成時期(築年月) | | March 1984 1984年3月 | Address 住所 | | Hyogo Prefecture, Kobe City Tarumi Ward Tsutsujigaoka 5 兵庫県神戸市垂水区つつじが丘5 | Traffic 交通 | | JR Sanyo Line "Tarumi" 24 minutes Tsutsujigaoka walk 3 minutes by bus JR山陽本線「垂水」バス24分つつじが丘歩3分
| Person in charge 担当者より | | Rep Kakihara Reverence 担当者柿原 崇敬 | Contact お問い合せ先 | | Sumitomo Real Estate Sales Co., Ltd. Tarumi business center TEL: 0120-356076 [Toll free] Please contact the "saw SUUMO (Sumo)" 住友不動産販売(株)垂水営業センターTEL:0120-356076【通話料無料】「SUUMO(スーモ)を見た」と問い合わせください | Building coverage, floor area ratio 建ぺい率・容積率 | | Fifty percent ・ Hundred percent 50%・100% | Time residents 入居時期 | | Consultation 相談 | Land of the right form 土地の権利形態 | | Ownership 所有権 | Structure and method of construction 構造・工法 | | Wooden 2-story 木造2階建 | Use district 用途地域 | | One low-rise 1種低層 | Other limitations その他制限事項 | | / Terrain: flat /地勢:平坦 | Overview and notices その他概要・特記事項 | | Contact: Kakihara Reverence, Parking: car space 担当者:柿原 崇敬、駐車場:カースペース | Company profile 会社概要 | | <Mediation> Minister of Land, Infrastructure and Transport (11) No. 002077 (one company) Property distribution management Association (Corporation) metropolitan area real estate Fair Trade Council member Sumitomo Real Estate Sales Co., Ltd. Tarumi business center Yubinbango655-0027 Kobe, Hyogo Prefecture Tarumi-ku, Kanda-cho, 2-40 Isobe building second floor <仲介>国土交通大臣(11)第002077号(一社)不動産流通経営協会会員 (公社)首都圏不動産公正取引協議会加盟住友不動産販売(株)垂水営業センター〒655-0027 兵庫県神戸市垂水区神田町2-40 磯部ビル2階 |
Local appearance photo現地外観写真  Appearance 1
外観1
 Floor plan
間取り図
Location
|