|
|
Nishinomiya, Hyogo Prefecture
兵庫県西宮市
|
|
Hankyū Kōyō Line "KinoeYoen" walk 13 minutes
阪急甲陽線「甲陽園」歩13分
|
Features pickup 特徴ピックアップ | | Parking two Allowed / LDK20 tatami mats or more / Super close / Facing south / System kitchen / Bathroom Dryer / Yang per good / All room storage / Siemens south road / A quiet residential area / Or more before road 6m / Washbasin with shower / Face-to-face kitchen / Security enhancement / Shutter - garage / Barrier-free / Toilet 2 places / 2-story / South balcony / loft / The window in the bathroom / Ventilation good / All living room flooring / Dish washing dryer / A large gap between the neighboring house / Maintained sidewalk / Flat terrain 駐車2台可 /LDK20畳以上 /スーパーが近い /南向き /システムキッチン /浴室乾燥機 /陽当り良好 /全居室収納 /南側道路面す /閑静な住宅地 /前道6m以上 /シャワー付洗面台 /対面式キッチン /セキュリティ充実 /シャッタ-車庫 /バリアフリー /トイレ2ヶ所 /2階建 /南面バルコニー /ロフト /浴室に窓 /通風良好 /全居室フローリング /食器洗乾燥機 /隣家との間隔が大きい /整備された歩道 /平坦地 |
Price 価格 | | 54 million yen 5400万円 |
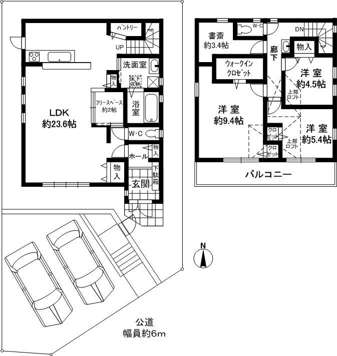
Floor plan 間取り | | 3LDK + 2S (storeroom) 3LDK+2S(納戸) |
Units sold 販売戸数 | | 1 units 1戸 |
Total units 総戸数 | | 1 units 1戸 |
Land area 土地面積 | | 161.8 sq m (registration) 161.8m2(登記) |
Building area 建物面積 | | 117.58 sq m (registration) 117.58m2(登記) |
Driveway burden-road 私道負担・道路 | | Nothing, South 6m width (contact the road width 8.3m) 無、南6m幅(接道幅8.3m) |
Completion date 完成時期(築年月) | | September 2009 2009年9月 |
Address 住所 | | Nishinomiya, Hyogo Prefecture Shinkoyo cho 兵庫県西宮市新甲陽町 |
Traffic 交通 | | Hankyū Kōyō Line "KinoeYoen" walk 13 minutes 阪急甲陽線「甲陽園」歩13分
|
Person in charge 担当者より | | Person in charge of real-estate and building Yamada Tetsuya Age: 40 Daigyokai Experience: 10 years 担当者宅建山田 哲也年齢:40代業界経験:10年 |
Contact お問い合せ先 | | TEL: 0800-603-1253 [Toll free] mobile phone ・ Also available from PHS Caller ID is not notified Please contact the "saw SUUMO (Sumo)" If it does not lead, If the real estate company TEL:0800-603-1253【通話料無料】携帯電話・PHSからもご利用いただけます 発信者番号は通知されません 「SUUMO(スーモ)を見た」と問い合わせください つながらない方、不動産会社の方は
|
Building coverage, floor area ratio 建ぺい率・容積率 | | 40% ・ Hundred percent 40%・100% |
Time residents 入居時期 | | Consultation 相談 |
Land of the right form 土地の権利形態 | | Ownership 所有権 |
Structure and method of construction 構造・工法 | | Wooden 2-story 木造2階建 |
Use district 用途地域 | | One low-rise 1種低層 |
Other limitations その他制限事項 | | Residential land development construction regulation area, Height district, Scenic zone 宅地造成工事規制区域、高度地区、風致地区 |
Overview and notices その他概要・特記事項 | | Contact: Yamada Tetsuya, Facilities: Public Water Supply, This sewage, City gas, Parking: Garage 担当者:山田 哲也、設備:公営水道、本下水、都市ガス、駐車場:車庫 |
Company profile 会社概要 | | <Mediation> Minister of Land, Infrastructure and Transport (11) No. 002287 (one company) Property distribution management Association (Corporation) metropolitan area real estate Fair Trade Council member Co., Ltd. Japan Living Service Co., Ltd. pleasure and pain Gardens office Yubinbango662-0075 Nishinomiya, Hyogo Prefecture Minamikoshikiiwa cho 5-18 <仲介>国土交通大臣(11)第002287号(一社)不動産流通経営協会会員 (公社)首都圏不動産公正取引協議会加盟(株)日住サービス苦楽園営業所〒662-0075 兵庫県西宮市南越木岩町5-18 |