1980
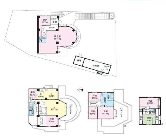
69 million yen, 7LDK, 357.81 sq m
Used Homes » Kansai » Hyogo Prefecture » Nishinomiya
 
| | Nishinomiya, Hyogo Prefecture 兵庫県西宮市 |
| Hankyu Kobe Line "Shukugawa" 10 minutes KashiwaDo cho, walk 4 minutes by bus 阪急神戸線「夙川」バス10分柏堂町歩4分 |
| Day ・ Good view! Study, Exhibition room, Yes workshop! 日当たり・眺望良好!書斎、展示室、作業場あり! |
Features pickup 特徴ピックアップ | | Yang per good / Japanese-style room / garden / Walk-in closet 陽当り良好 /和室 /庭 /ウォークインクロゼット | Price 価格 | | 69 million yen 6900万円 | Floor plan 間取り | | 7LDK 7LDK | Units sold 販売戸数 | | 1 units 1戸 | Land area 土地面積 | | 541 sq m 541m2 | Building area 建物面積 | | 357.81 sq m 357.81m2 | Driveway burden-road 私道負担・道路 | | Nothing 無 | Completion date 完成時期(築年月) | | 1980 February 1980年2月 | Address 住所 | | Nishinomiya, Hyogo Prefecture Kendani cho 兵庫県西宮市剣谷町 | Traffic 交通 | | Hankyu Kobe Line "Shukugawa" 10 minutes KashiwaDo cho, walk 4 minutes by bus 阪急神戸線「夙川」バス10分柏堂町歩4分
| Related links 関連リンク | | [Related Sites of this company] 【この会社の関連サイト】 | Person in charge 担当者より | | Person in charge of real-estate and building FP Akita Hiroyuki Age: 30s 担当者宅建FP秋田 宏之年齢:30代 | Contact お問い合せ先 | | TEL: 0800-603-1620 [Toll free] mobile phone ・ Also available from PHS Caller ID is not notified Please contact the "saw SUUMO (Sumo)" If it does not lead, If the real estate company TEL:0800-603-1620【通話料無料】携帯電話・PHSからもご利用いただけます 発信者番号は通知されません 「SUUMO(スーモ)を見た」と問い合わせください つながらない方、不動産会社の方は
| Building coverage, floor area ratio 建ぺい率・容積率 | | 40% ・ Hundred percent 40%・100% | Time residents 入居時期 | | Consultation 相談 | Land of the right form 土地の権利形態 | | Ownership 所有権 | Structure and method of construction 構造・工法 | | RC4 story RC4階建 | Overview and notices その他概要・特記事項 | | Contact: Akita Hiroyuki, Facilities: city gas 担当者:秋田 宏之、設備:都市ガス | Company profile 会社概要 | | <Mediation> Minister of Land, Infrastructure and Transport (14) No. 000395 Hankyu Realty Co., Hankyu housing Plaza Nishinomiya Yubinbango662-0832 Nishinomiya, Hyogo Prefecture Kofuen 1-2-1 Hankyu Nishinomiya-Kitaguchi Station Kofuen Hankyu Building <仲介>国土交通大臣(14)第000395号阪急不動産(株)阪急ハウジングプラザ西宮〒662-0832 兵庫県西宮市甲風園1-2-1 阪急西宮北口駅甲風園阪急ビル |
Floor plan間取り図  69 million yen, 7LDK, Land area 541 sq m , Building area 357.81 sq m
6900万円、7LDK、土地面積541m2、建物面積357.81m2
 Local appearance photo
現地外観写真
 Living
リビング
 Garden
庭
Otherその他  Exhibition room
展示室
 Working chamber
作業室
Location
|