|
|
Nishinomiya, Hyogo Prefecture
兵庫県西宮市
|
|
Hanshin "Kohazeen" walk 15 minutes
阪神本線「香櫨園」歩15分
|
|
Parking two Allowed, Facing south, Yang per good, Flat to the station, Shaping land, South balcony, Three-story or more, roof balcony
駐車2台可、南向き、陽当り良好、駅まで平坦、整形地、南面バルコニー、3階建以上、ルーフバルコニー
|
|
■ February 2010 Built ■ Facing south ・ Good per sun ■ Parking two possible ■ Rooftop roof balcony ■ Electric opening and closing garage
■平成22年2月築■南向き・陽当たり良好■駐車2台可能■屋上ルーフバルコニー付■電動開閉ガレージ
|
Features pickup 特徴ピックアップ | | Parking two Allowed / Facing south / Yang per good / Flat to the station / Shaping land / South balcony / Three-story or more / roof balcony 駐車2台可 /南向き /陽当り良好 /駅まで平坦 /整形地 /南面バルコニー /3階建以上 /ルーフバルコニー |
Price 価格 | | 32,800,000 yen 3280万円 |
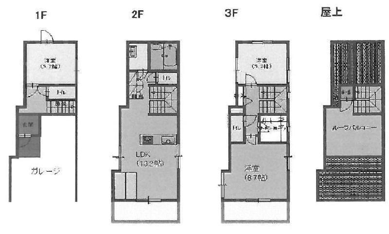
Floor plan 間取り | | 3LDK 3LDK |
Units sold 販売戸数 | | 1 units 1戸 |
Total units 総戸数 | | 1 units 1戸 |
Land area 土地面積 | | 65.09 sq m (registration) 65.09m2(登記) |
Building area 建物面積 | | 86.33 sq m (registration) 86.33m2(登記) |
Driveway burden-road 私道負担・道路 | | Nothing, South 8.3m width 無、南8.3m幅 |
Completion date 完成時期(築年月) | | February 2010 2010年2月 |
Address 住所 | | Nishinomiya, Hyogo Prefecture Izumi-cho 兵庫県西宮市泉町 |
Traffic 交通 | | Hanshin "Kohazeen" walk 15 minutes JR Tokaido Line "Sakura Shukugawa" walk 19 minutes 阪神本線「香櫨園」歩15分 JR東海道本線「さくら夙川」歩19分
|
Related links 関連リンク | | [Related Sites of this company] 【この会社の関連サイト】 |
Person in charge 担当者より | | Person in charge of real-estate and building Sano Yuji Age: 30 Daigyokai Experience: 10 years Nishinomiya ・ Dongtan ・ Nada ・ Chuo-ku ・ To Akashi, It also corresponds to which real estate. It can also support such as adult guardianship or any sale. I also feel that there is something strange to say the same edge as the person meeting with real estate. Your purchase also your sale Please leave. 担当者宅建佐野 雄司年齢:30代業界経験:10年西宮・東灘・灘・中央区・明石まで、どの不動産にも対応します。成年後見や任意売却なども対応できます。不動産との出会いも人と同じく縁と言う不思議なものがある気がします。ご購入もご売却もお任せください。 |
Contact お問い合せ先 | | TEL: 0800-603-1251 [Toll free] mobile phone ・ Also available from PHS Caller ID is not notified Please contact the "saw SUUMO (Sumo)" If it does not lead, If the real estate company TEL:0800-603-1251【通話料無料】携帯電話・PHSからもご利用いただけます 発信者番号は通知されません 「SUUMO(スーモ)を見た」と問い合わせください つながらない方、不動産会社の方は
|
Building coverage, floor area ratio 建ぺい率・容積率 | | 60% ・ 200% 60%・200% |
Time residents 入居時期 | | Consultation 相談 |
Land of the right form 土地の権利形態 | | Ownership 所有権 |
Structure and method of construction 構造・工法 | | Wooden three-story 木造3階建 |
Use district 用途地域 | | Semi-industrial 準工業 |
Overview and notices その他概要・特記事項 | | Contact: Sano Yuji, Facilities: Public Water Supply, This sewage, City gas, Parking: Garage 担当者:佐野 雄司、設備:公営水道、本下水、都市ガス、駐車場:車庫 |
Company profile 会社概要 | | <Mediation> Minister of Land, Infrastructure and Transport (11) No. 002287 (one company) Real Estate Association (Corporation) metropolitan area real estate Fair Trade Council member Co., Ltd. Japan Living Service Co., Ltd. Shukugawa office Yubinbango662-0051 Nishinomiya, Hyogo Prefecture robe-cho 5-16 <仲介>国土交通大臣(11)第002287号(一社)不動産協会会員 (公社)首都圏不動産公正取引協議会加盟(株)日住サービス夙川営業所〒662-0051 兵庫県西宮市羽衣町5-16 |