2000February
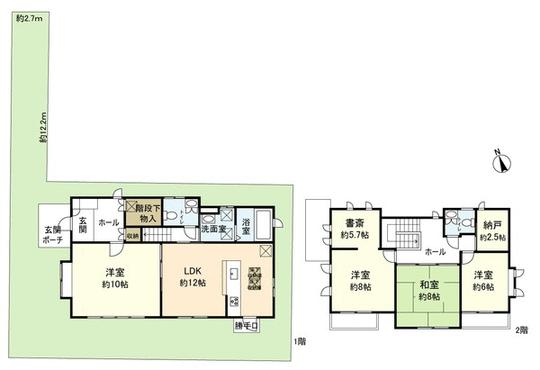
59,800,000 yen, 4LDK + S (storeroom), 118.41 sq m
Used Homes » Kansai » Hyogo Prefecture » Nishinomiya
 
| | Nishinomiya, Hyogo Prefecture 兵庫県西宮市 |
| Hanshin "Naruo" walk 4 minutes 阪神本線「鳴尾」歩4分 |
Price 価格 | | 59,800,000 yen 5980万円 | Floor plan 間取り | | 4LDK + S (storeroom) 4LDK+S(納戸) | Units sold 販売戸数 | | 1 units 1戸 | Land area 土地面積 | | 188.95 sq m (registration) 188.95m2(登記) | Building area 建物面積 | | 118.41 sq m (registration) 118.41m2(登記) | Driveway burden-road 私道負担・道路 | | Nothing, North 5.8m width (contact the road width 2.7m) 無、北5.8m幅(接道幅2.7m) | Completion date 完成時期(築年月) | | February 2000 2000年2月 | Address 住所 | | Nishinomiya, Hyogo Prefecture satonaka cho 2 兵庫県西宮市里中町2 | Traffic 交通 | | Hanshin "Naruo" walk 4 minutes Hanshin "Koshien" walk 15 minutes 阪神本線「鳴尾」歩4分 阪神本線「甲子園」歩15分
| Person in charge 担当者より | | Rep Shigeo Miyamoto 担当者宮本茂雄 | Contact お問い合せ先 | | Mitsui Rehouse Koshien shop Mitsui Fudosan Realty (Ltd.) TEL: 0120-321867 [Toll free] Please contact the "saw SUUMO (Sumo)" 三井のリハウス甲子園店三井不動産リアルティ(株)TEL:0120-321867【通話料無料】「SUUMO(スーモ)を見た」と問い合わせください | Building coverage, floor area ratio 建ぺい率・容積率 | | 60% ・ 200% 60%・200% | Time residents 入居時期 | | Immediate available 即入居可 | Land of the right form 土地の権利形態 | | Ownership 所有権 | Structure and method of construction 構造・工法 | | Wooden 2-story 木造2階建 | Use district 用途地域 | | One dwelling 1種住居 | Overview and notices その他概要・特記事項 | | Contact: Shigeo Miyamoto, Parking: car space 担当者:宮本茂雄、駐車場:カースペース | Company profile 会社概要 | | <Mediation> Minister of Land, Infrastructure and Transport (13) No. 000777 (one company) Property distribution management Association (Corporation) metropolitan area real estate Fair Trade Council member Mitsui Rehouse Koshien shop Mitsui Fudosan Realty Co. Yubinbango663-8176 Nishinomiya, Hyogo Prefecture Koshienrokuban cho 15-19 Edagawa Heights first floor <仲介>国土交通大臣(13)第000777号(一社)不動産流通経営協会会員 (公社)首都圏不動産公正取引協議会加盟三井のリハウス甲子園店三井不動産リアルティ(株)〒663-8176 兵庫県西宮市甲子園六番町15-19 枝川ハイツ1階 |
 Local appearance photo
現地外観写真
 Floor plan
間取り図
Location
|