Used Homes » Kansai » Hyogo Prefecture » Nishinomiya
 
| | Nishinomiya, Hyogo Prefecture 兵庫県西宮市 |
| Hankyu Kobe Line "Shukugawa" walk 6 minutes 阪急神戸線「夙川」歩6分 |
| 2 along the line more accessible, Flat to the station, Flat terrain, 2-story, Around traffic fewer, City gas 2沿線以上利用可、駅まで平坦、平坦地、2階建、周辺交通量少なめ、都市ガス |
Features pickup 特徴ピックアップ | | 2 along the line more accessible / Flat to the station / Around traffic fewer / 2-story / City gas / Flat terrain 2沿線以上利用可 /駅まで平坦 /周辺交通量少なめ /2階建 /都市ガス /平坦地 | Price 価格 | | 39,800,000 yen 3980万円 | Floor plan 間取り | | 4LDK + 2S (storeroom) 4LDK+2S(納戸) | Units sold 販売戸数 | | 1 units 1戸 | Total units 総戸数 | | 1 units 1戸 | Land area 土地面積 | | 98.32 sq m (registration) 98.32m2(登記) | Building area 建物面積 | | 103.67 sq m (registration) 103.67m2(登記) | Driveway burden-road 私道負担・道路 | | Share equity 65 sq m × (1 / 4), West 2.9m width 共有持分65m2×(1/4)、西2.9m幅 | Completion date 完成時期(築年月) | | October 1984 1984年10月 | Address 住所 | | Hyogo Prefecture Nishinomiya Shikotobuki cho 兵庫県西宮市寿町 | Traffic 交通 | | Hankyu Kobe Line "Shukugawa" walk 6 minutes JR Tokaido Line "Sakura Shukugawa" walk 5 minutes 阪急神戸線「夙川」歩6分 JR東海道本線「さくら夙川」歩5分
| Related links 関連リンク | | [Related Sites of this company] 【この会社の関連サイト】 | Person in charge 担当者より | | Person in charge of real-estate and building Sano Yuji Age: 30 Daigyokai Experience: 10 years Nishinomiya ・ Dongtan ・ Nada ・ Chuo-ku ・ To Akashi, It also corresponds to which real estate. It can also support such as adult guardianship or any sale. I also feel that there is something strange to say the same edge as the person meeting with real estate. Your purchase also your sale Please leave. 担当者宅建佐野 雄司年齢:30代業界経験:10年西宮・東灘・灘・中央区・明石まで、どの不動産にも対応します。成年後見や任意売却なども対応できます。不動産との出会いも人と同じく縁と言う不思議なものがある気がします。ご購入もご売却もお任せください。 | Contact お問い合せ先 | | TEL: 0800-603-1251 [Toll free] mobile phone ・ Also available from PHS Caller ID is not notified Please contact the "saw SUUMO (Sumo)" If it does not lead, If the real estate company TEL:0800-603-1251【通話料無料】携帯電話・PHSからもご利用いただけます 発信者番号は通知されません 「SUUMO(スーモ)を見た」と問い合わせください つながらない方、不動産会社の方は
| Building coverage, floor area ratio 建ぺい率・容積率 | | 60% ・ 200% 60%・200% | Time residents 入居時期 | | Consultation 相談 | Land of the right form 土地の権利形態 | | Ownership 所有権 | Structure and method of construction 構造・工法 | | Wooden 2-story 木造2階建 | Use district 用途地域 | | One middle and high 1種中高 | Other limitations その他制限事項 | | Setback: upon 3.9 sq m , Regulations have by the Landscape Act, Regulations have by the Aviation Law, Height district, Shade limit Yes, Setback Yes, Front road 42, paragraph 2 road. Retreat method Yosu to confirm Building Guidance Division. セットバック:要3.9m2、景観法による規制有、航空法による規制有、高度地区、日影制限有、壁面後退有、前面道路42条2項道路。後退方法は建築指導課にて確認を要す。 | Overview and notices その他概要・特記事項 | | Contact: Sano Yuji, Facilities: private water, This sewage, City gas, Parking: No 担当者:佐野 雄司、設備:私設水道、本下水、都市ガス、駐車場:無 | Company profile 会社概要 | | <Mediation> Minister of Land, Infrastructure and Transport (11) No. 002287 (one company) Real Estate Association (Corporation) metropolitan area real estate Fair Trade Council member Co., Ltd. Japan Living Service Co., Ltd. Shukugawa office Yubinbango662-0051 Nishinomiya, Hyogo Prefecture robe-cho 5-16 <仲介>国土交通大臣(11)第002287号(一社)不動産協会会員 (公社)首都圏不動産公正取引協議会加盟(株)日住サービス夙川営業所〒662-0051 兵庫県西宮市羽衣町5-16 |
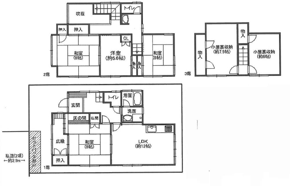
Floor plan間取り図  39,800,000 yen, 4LDK + 2S (storeroom), Land area 98.32 sq m , Building area 103.67 sq m
3980万円、4LDK+2S(納戸)、土地面積98.32m2、建物面積103.67m2
Local appearance photo現地外観写真  Local (11 May 2013) Shooting
現地(2013年11月)撮影
Local photos, including front road前面道路含む現地写真  Local (11 May 2013) Shooting
現地(2013年11月)撮影
 Local (11 May 2013) Shooting
現地(2013年11月)撮影
Other localその他現地  Local (11 May 2013) Shooting
現地(2013年11月)撮影
Location
|