1990October
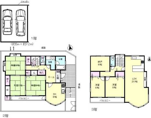
108 million yen, 5LDK + S (storeroom), 202.7 sq m
Used Homes » Kansai » Hyogo Prefecture » Nishinomiya
 
| | Nishinomiya, Hyogo Prefecture 兵庫県西宮市 |
| JR Tokaido Line "Koshienguchi" walk 4 minutes JR東海道本線「甲子園口」歩4分 |
Price 価格 | | 108 million yen 1億800万円 | Floor plan 間取り | | 5LDK + S (storeroom) 5LDK+S(納戸) | Units sold 販売戸数 | | 1 units 1戸 | Land area 土地面積 | | 146.14 sq m (registration) 146.14m2(登記) | Building area 建物面積 | | 202.7 sq m (registration) 202.7m2(登記) | Driveway burden-road 私道負担・道路 | | 25 sq m , East 5m width (contact the road width 14m), North 4m width 25m2、東5m幅(接道幅14m)、北4m幅 | Completion date 完成時期(築年月) | | October 1990 1990年10月 | Address 住所 | | Nishinomiya, Hyogo Prefecture Koshienguchikita cho 兵庫県西宮市甲子園口北町 | Traffic 交通 | | JR Tokaido Line "Koshienguchi" walk 4 minutes JR東海道本線「甲子園口」歩4分
| Person in charge 担当者より | | Rep Konishi Eiichiro 担当者小西 英一郎 | Contact お問い合せ先 | | Sumitomo Real Estate Sales Co., Ltd. Koshien business center TEL: 0120-373587 [Toll free] Please contact the "saw SUUMO (Sumo)" 住友不動産販売(株)甲子園営業センターTEL:0120-373587【通話料無料】「SUUMO(スーモ)を見た」と問い合わせください | Building coverage, floor area ratio 建ぺい率・容積率 | | 60% ・ 200% 60%・200% | Time residents 入居時期 | | Consultation 相談 | Land of the right form 土地の権利形態 | | Ownership 所有権 | Structure and method of construction 構造・工法 | | Wooden three-story 木造3階建 | Use district 用途地域 | | One middle and high 1種中高 | Other limitations その他制限事項 | | / Terrain: flat /地勢:平坦 | Overview and notices その他概要・特記事項 | | Contact: Konishi Eiichiro, Parking: car space 担当者:小西 英一郎、駐車場:カースペース | Company profile 会社概要 | | <Mediation> Minister of Land, Infrastructure and Transport (11) No. 002077 (one company) Property distribution management Association (Corporation) metropolitan area real estate Fair Trade Council member Sumitomo Real Estate Sales Co., Ltd. Koshien business center Yubinbango663-8175 Nishinomiya, Hyogo Prefecture Koshiengoban cho 13-23 Ueda building first floor first floor <仲介>国土交通大臣(11)第002077号(一社)不動産流通経営協会会員 (公社)首都圏不動産公正取引協議会加盟住友不動産販売(株)甲子園営業センター〒663-8175 兵庫県西宮市甲子園五番町13-23 上田ビル1階1階 |
Local appearance photo現地外観写真  Exterior Photos
外観写真
 Floor plan
間取り図
Location
|