2007May
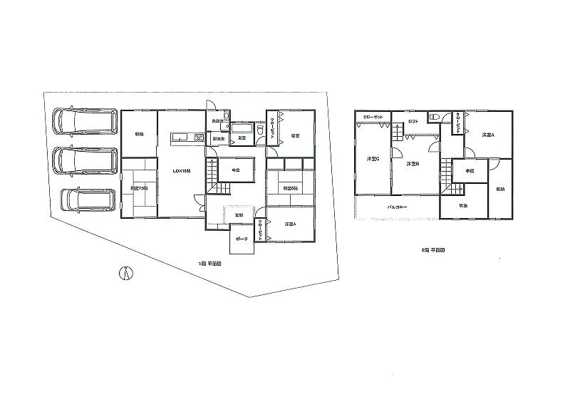
26,800,000 yen, 8LDK + S (storeroom), 233 sq m
Used Homes » Kansai » Hyogo Prefecture » Nishiwaki

| | Hyogo Prefecture Nishiwaki 兵庫県西脇市 |
| JR kakogawa line "New Nishiwaki" walk 16 minutes JR加古川線「新西脇」歩16分 |
Features pickup 特徴ピックアップ | | Land more than 100 square meters / LDK18 tatami mats or more / Bathroom Dryer / Yang per good / Face-to-face kitchen / Toilet 2 places / Bathroom 1 tsubo or more / 2-story / loft / The window in the bathroom / Atrium / Ventilation good / All room 6 tatami mats or more 土地100坪以上 /LDK18畳以上 /浴室乾燥機 /陽当り良好 /対面式キッチン /トイレ2ヶ所 /浴室1坪以上 /2階建 /ロフト /浴室に窓 /吹抜け /通風良好 /全居室6畳以上 | Price 価格 | | 26,800,000 yen 2680万円 | Floor plan 間取り | | 8LDK + S (storeroom) 8LDK+S(納戸) | Units sold 販売戸数 | | 1 units 1戸 | Land area 土地面積 | | 349.64 sq m (registration) 349.64m2(登記) | Building area 建物面積 | | 233 sq m (registration) 233m2(登記) | Driveway burden-road 私道負担・道路 | | Nothing, West 6m width 無、西6m幅 | Completion date 完成時期(築年月) | | May 2007 2007年5月 | Address 住所 | | Hyogo Prefecture Nishiwaki Ueno 兵庫県西脇市上野 | Traffic 交通 | | JR kakogawa line "New Nishiwaki" walk 16 minutes JR加古川線「新西脇」歩16分
| Related links 関連リンク | | [Related Sites of this company] 【この会社の関連サイト】 | Contact お問い合せ先 | | Ones real estate (Ltd.) TEL: 0120-057313 [Toll free] Please contact the "saw SUUMO (Sumo)" ワンズ不動産(株)TEL:0120-057313【通話料無料】「SUUMO(スーモ)を見た」と問い合わせください | Building coverage, floor area ratio 建ぺい率・容積率 | | 60% ・ 200% 60%・200% | Time residents 入居時期 | | Consultation 相談 | Land of the right form 土地の権利形態 | | Ownership 所有権 | Structure and method of construction 構造・工法 | | Wooden 2-story 木造2階建 | Use district 用途地域 | | Two mid-high 2種中高 | Overview and notices その他概要・特記事項 | | Facilities: Public Water Supply, This sewage, Parking: Garage 設備:公営水道、本下水、駐車場:車庫 | Company profile 会社概要 | | <Mediation> governor of Osaka Prefecture (1) the first 054,905 No. Ones Real Estate Co., Ltd. Yubinbango530-0047 Osaka-shi, Osaka, Kita-ku, Nishitenma 5-14-7 Wako building 7th floor <仲介>大阪府知事(1)第054905号ワンズ不動産(株)〒530-0047 大阪府大阪市北区西天満5-14-7 和光ビル7階 |
Floor plan間取り図  26,800,000 yen, 8LDK + S (storeroom), Land area 349.64 sq m , Building area 233 sq m
2680万円、8LDK+S(納戸)、土地面積349.64m2、建物面積233m2
Location
|