|
|
Hyogo Prefecture Sanda
兵庫県三田市
|
|
Shintetsu Kōen-Toshi Line "Woody Town Chūō Station" walk 7 minutes
神戸電鉄公園都市線「ウッディタウン中央」歩7分
|
|
2013 October Indoor renovated! ● exchange cross all MuroCho, Entrance door exchange ● flooring over the entire surface overlay ● tatami had made, Sliding door ・ Exchange Shoji Zhang ● system Kitchen exchange ● toilet exchange, Washbasin exchange, Bath door exchange etc
平成25年10月室内改装済み!●クロス全室張替、玄関ドア交換●フローリング全面上張り●畳新調、襖・障子張替●システムキッチン交換●トイレ交換、洗面台交換、風呂扉交換 等
|
Features pickup 特徴ピックアップ | | Parking two Allowed / Immediate Available / LDK20 tatami mats or more / Interior renovation / System kitchen / Flat to the station / A quiet residential area / Or more before road 6m / Japanese-style room / Shaping land / Toilet 2 places / Bathroom 1 tsubo or more / 2-story / The window in the bathroom / Leafy residential area / Dish washing dryer / All room 6 tatami mats or more / Flat terrain 駐車2台可 /即入居可 /LDK20畳以上 /内装リフォーム /システムキッチン /駅まで平坦 /閑静な住宅地 /前道6m以上 /和室 /整形地 /トイレ2ヶ所 /浴室1坪以上 /2階建 /浴室に窓 /緑豊かな住宅地 /食器洗乾燥機 /全居室6畳以上 /平坦地 |
Price 価格 | | 31,800,000 yen 3180万円 |
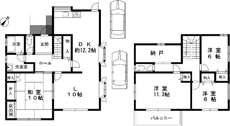
Floor plan 間取り | | 4LDK + S (storeroom) 4LDK+S(納戸) |
Units sold 販売戸数 | | 1 units 1戸 |
Total units 総戸数 | | 1 units 1戸 |
Land area 土地面積 | | 241.17 sq m (registration) 241.17m2(登記) |
Building area 建物面積 | | 142.83 sq m (registration) 142.83m2(登記) |
Driveway burden-road 私道負担・道路 | | Nothing, Northwest 6m width 無、北西6m幅 |
Completion date 完成時期(築年月) | | July 1993 1993年7月 |
Address 住所 | | Hyogo Prefecture Sanda Keyakidai 5 兵庫県三田市けやき台5 |
Traffic 交通 | | Shintetsu Kōen-Toshi Line "Woody Town Chūō Station" walk 7 minutes 神戸電鉄公園都市線「ウッディタウン中央」歩7分
|
Person in charge 担当者より | | [Regarding this property.] 2013 October Indoor renovated! 【この物件について】平成25年10月室内改装済み! |
Contact お問い合せ先 | | TEL: 0800-603-1272 [Toll free] mobile phone ・ Also available from PHS Caller ID is not notified Please contact the "saw SUUMO (Sumo)" If it does not lead, If the real estate company TEL:0800-603-1272【通話料無料】携帯電話・PHSからもご利用いただけます 発信者番号は通知されません 「SUUMO(スーモ)を見た」と問い合わせください つながらない方、不動産会社の方は
|
Building coverage, floor area ratio 建ぺい率・容積率 | | Fifty percent ・ Hundred percent 50%・100% |
Time residents 入居時期 | | Immediate available 即入居可 |
Land of the right form 土地の権利形態 | | Ownership 所有権 |
Structure and method of construction 構造・工法 | | Wooden 2-story 木造2階建 |
Renovation リフォーム | | October 2013 interior renovation completed (kitchen ・ toilet ・ wall ・ floor) 2013年10月内装リフォーム済(キッチン・トイレ・壁・床) |
Use district 用途地域 | | One low-rise 1種低層 |
Overview and notices その他概要・特記事項 | | Facilities: Public Water Supply, This sewage, City gas, Parking: Car Port 設備:公営水道、本下水、都市ガス、駐車場:カーポート |
Company profile 会社概要 | | <Mediation> Minister of Land, Infrastructure and Transport (11) No. 002287 (Corporation) Japan Living Service Co., Ltd. Mita office Yubinbango669-1529 Sanda City center-cho, 10-1 (Mita Central Casa first floor) <仲介>国土交通大臣(11)第002287号(株)日住サービス三田営業所〒669-1529 兵庫県三田市中央町10-1 (三田セントラルカーサ1階) |