Used Homes » Kansai » Hyogo Prefecture » Sanda
 
| | Hyogo Prefecture Sanda 兵庫県三田市 |
| Shintetsu Kōen-Toshi Line "Flower Town" walk 10 minutes 神戸電鉄公園都市線「フラワータウン」歩10分 |
Features pickup 特徴ピックアップ | | Parking two Allowed / Immediate Available / Land 50 square meters or more / Yang per good / Or more before road 6m / Shaping land / Garden more than 10 square meters / Zenshitsuminami direction / Ventilation good 駐車2台可 /即入居可 /土地50坪以上 /陽当り良好 /前道6m以上 /整形地 /庭10坪以上 /全室南向き /通風良好 | Price 価格 | | 18.3 million yen 1830万円 | Floor plan 間取り | | 4LDK 4LDK | Units sold 販売戸数 | | 1 units 1戸 | Total units 総戸数 | | 1 units 1戸 | Land area 土地面積 | | 263.75 sq m (registration) 263.75m2(登記) | Building area 建物面積 | | 102.86 sq m (registration) 102.86m2(登記) | Driveway burden-road 私道負担・道路 | | Nothing, Northwest 9.5m width (contact the road width 15.5m) 無、北西9.5m幅(接道幅15.5m) | Completion date 完成時期(築年月) | | September 1984 1984年9月 | Address 住所 | | Hyogo Prefecture Sanda Hazamagaoka 3 兵庫県三田市狭間が丘3 | Traffic 交通 | | Shintetsu Kōen-Toshi Line "Flower Town" walk 10 minutes 神戸電鉄公園都市線「フラワータウン」歩10分
| Person in charge 担当者より | | [Regarding this property.] Site: about 79 square meters Road and no difference in height Building meter module House Studio Building 【この物件について】敷地:約79坪 道路と高低差無し 建物はメーターモジュール ハウスメーカー建築 | Contact お問い合せ先 | | TEL: 0800-603-1272 [Toll free] mobile phone ・ Also available from PHS Caller ID is not notified Please contact the "saw SUUMO (Sumo)" If it does not lead, If the real estate company TEL:0800-603-1272【通話料無料】携帯電話・PHSからもご利用いただけます 発信者番号は通知されません 「SUUMO(スーモ)を見た」と問い合わせください つながらない方、不動産会社の方は
| Building coverage, floor area ratio 建ぺい率・容積率 | | Fifty percent ・ Hundred percent 50%・100% | Time residents 入居時期 | | Immediate available 即入居可 | Land of the right form 土地の権利形態 | | Ownership 所有権 | Structure and method of construction 構造・工法 | | Light-gauge steel 2-story 軽量鉄骨2階建 | Construction 施工 | | Sekisui House Ltd. 積水ハウス(株) | Use district 用途地域 | | One low-rise 1種低層 | Other limitations その他制限事項 | | Regulations have by the Landscape Act 景観法による規制有 | Overview and notices その他概要・特記事項 | | Facilities: Public Water Supply, This sewage, City gas, Parking: Garage 設備:公営水道、本下水、都市ガス、駐車場:車庫 | Company profile 会社概要 | | <Mediation> Minister of Land, Infrastructure and Transport (11) No. 002287 (Corporation) Japan Living Service Co., Ltd. Mita office Yubinbango669-1529 Sanda City center-cho, 10-1 (Mita Central Casa first floor) <仲介>国土交通大臣(11)第002287号(株)日住サービス三田営業所〒669-1529 兵庫県三田市中央町10-1 (三田セントラルカーサ1階) |
Local appearance photo現地外観写真  Local (12 May 2013) Shooting
現地(2013年12月)撮影
Bathroom浴室  Indoor (12 May 2013) Shooting
室内(2013年12月)撮影
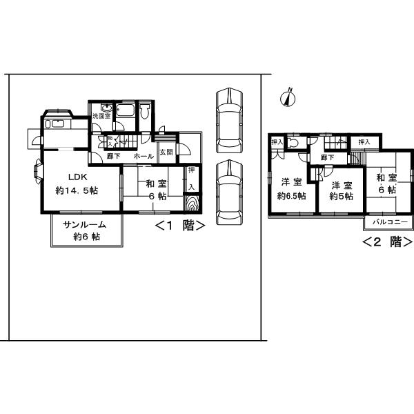
Floor plan間取り図  18.3 million yen, 4LDK, Land area 263.75 sq m , Building area 102.86 sq m
1830万円、4LDK、土地面積263.75m2、建物面積102.86m2
Livingリビング  Indoor (12 May 2013) Shooting
室内(2013年12月)撮影
Kitchenキッチン  Indoor (12 May 2013) Shooting
室内(2013年12月)撮影
Non-living roomリビング以外の居室  Indoor (12 May 2013) Shooting
室内(2013年12月)撮影
Entrance玄関  Indoor (12 May 2013) Shooting
室内(2013年12月)撮影
Wash basin, toilet洗面台・洗面所  Indoor (12 May 2013) Shooting
室内(2013年12月)撮影
Toiletトイレ  Indoor (12 May 2013) Shooting
室内(2013年12月)撮影
Local photos, including front road前面道路含む現地写真  Indoor (12 May 2013) Shooting
室内(2013年12月)撮影
Garden庭  Indoor (12 May 2013) Shooting
室内(2013年12月)撮影
View photos from the dwelling unit住戸からの眺望写真  Indoor (12 May 2013) Shooting
室内(2013年12月)撮影
Livingリビング  Indoor (12 May 2013) Shooting
室内(2013年12月)撮影
Kitchenキッチン  Indoor (12 May 2013) Shooting
室内(2013年12月)撮影
Non-living roomリビング以外の居室  Indoor (12 May 2013) Shooting
室内(2013年12月)撮影
Garden庭  Indoor (12 May 2013) Shooting
室内(2013年12月)撮影
Livingリビング  Indoor (12 May 2013) Shooting
室内(2013年12月)撮影
Non-living roomリビング以外の居室  Indoor (12 May 2013) Shooting
室内(2013年12月)撮影
Location
|