1983January
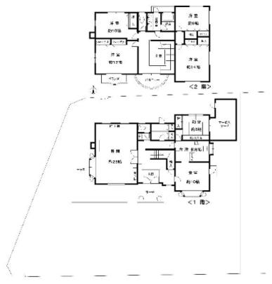
115 million yen, 5LDK, 280.16 sq m
Used Homes » Kansai » Hyogo Prefecture » Takarazuka
 
| | Takarazuka, Hyogo 兵庫県宝塚市 |
| Hankyu Imazu Line "Sakasegawa" bus 14 minutes Garden of Eden walk 2 minutes 阪急今津線「逆瀬川」バス14分エデンの園歩2分 |
Price 価格 | | 115 million yen 1億1500万円 | Floor plan 間取り | | 5LDK 5LDK | Units sold 販売戸数 | | 1 units 1戸 | Land area 土地面積 | | 688.71 sq m (registration) 688.71m2(登記) | Building area 建物面積 | | 280.16 sq m (registration) 280.16m2(登記) | Driveway burden-road 私道負担・道路 | | Nothing, South 5.8m width 無、南5.8m幅 | Completion date 完成時期(築年月) | | January 1983 1983年1月 | Address 住所 | | Takarazuka, Hyogo Yuzurihadai 2 兵庫県宝塚市ゆずり葉台2 | Traffic 交通 | | Hankyu Imazu Line "Sakasegawa" bus 14 minutes Garden of Eden walk 2 minutes 阪急今津線「逆瀬川」バス14分エデンの園歩2分
| Person in charge 担当者より | | Rep Shinichi Iwasaki 担当者岩崎伸一 | Contact お問い合せ先 | | TEL: 0800-603-1248 [Toll free] mobile phone ・ Also available from PHS Caller ID is not notified Please contact the "saw SUUMO (Sumo)" If it does not lead, If the real estate company TEL:0800-603-1248【通話料無料】携帯電話・PHSからもご利用いただけます 発信者番号は通知されません 「SUUMO(スーモ)を見た」と問い合わせください つながらない方、不動産会社の方は
| Building coverage, floor area ratio 建ぺい率・容積率 | | 40% ・ 80% 40%・80% | Time residents 入居時期 | | Consultation 相談 | Land of the right form 土地の権利形態 | | Ownership 所有権 | Structure and method of construction 構造・工法 | | RC2 story RC2階建 | Use district 用途地域 | | One low-rise 1種低層 | Overview and notices その他概要・特記事項 | | Contact: Shinichi Iwasaki, Parking: car space 担当者:岩崎伸一、駐車場:カースペース | Company profile 会社概要 | | <Mediation> Minister of Land, Infrastructure and Transport (11) No. 002287 (one company) Property distribution management Association (Corporation) metropolitan area real estate Fair Trade Council member Co., Ltd. Japan Living Service Co., Ltd. Sakasegawa office Yubinbango665-0021 Takarazuka, Hyogo sandbar 1-2-24-102 <仲介>国土交通大臣(11)第002287号(一社)不動産流通経営協会会員 (公社)首都圏不動産公正取引協議会加盟(株)日住サービス逆瀬川営業所〒665-0021 兵庫県宝塚市中州1-2-24-102 |
 Local appearance photo
現地外観写真
 Floor plan
間取り図
Location
|