2004October
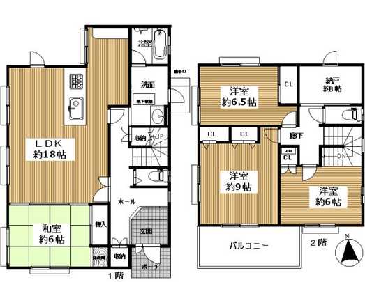
36,800,000 yen, 4LDK + S (storeroom), 127.2 sq m
Used Homes » Kansai » Hyogo Prefecture » Takarazuka
 
| | Takarazuka, Hyogo 兵庫県宝塚市 |
| Hankyu Takarazuka Line "Nakayama Kannon" 10 minutes center before walk 3 minutes by bus 阪急宝塚線「中山観音」バス10分センター前歩3分 |
Price 価格 | | 36,800,000 yen 3680万円 | Floor plan 間取り | | 4LDK + S (storeroom) 4LDK+S(納戸) | Units sold 販売戸数 | | 1 units 1戸 | Land area 土地面積 | | 220.67 sq m (registration) 220.67m2(登記) | Building area 建物面積 | | 127.2 sq m (registration) 127.2m2(登記) | Driveway burden-road 私道負担・道路 | | Nothing, West 5.6m width (contact the road width 4m), North 12m width 無、西5.6m幅(接道幅4m)、北12m幅 | Completion date 完成時期(築年月) | | October 2004 2004年10月 | Address 住所 | | Takarazuka, Hyogo Nakayamasakuradai 1 兵庫県宝塚市中山桜台1 | Traffic 交通 | | Hankyu Takarazuka Line "Nakayama Kannon" 10 minutes center before walk 3 minutes by bus 阪急宝塚線「中山観音」バス10分センター前歩3分
| Person in charge 担当者より | | Rep Yamamoto Takeshi 担当者山本 武司 | Contact お問い合せ先 | | Sumitomo Real Estate Sales Co., Ltd. Kawanishi Sales Center TEL: 0120-180681 [Toll free] Please contact the "saw SUUMO (Sumo)" 住友不動産販売(株)川西営業センターTEL:0120-180681【通話料無料】「SUUMO(スーモ)を見た」と問い合わせください | Building coverage, floor area ratio 建ぺい率・容積率 | | Fifty percent ・ Hundred percent 50%・100% | Time residents 入居時期 | | Consultation 相談 | Land of the right form 土地の権利形態 | | Ownership 所有権 | Structure and method of construction 構造・工法 | | Light-gauge steel 2-story 軽量鉄骨2階建 | Use district 用途地域 | | One low-rise 1種低層 | Other limitations その他制限事項 | | / Terrain: flat /地勢:平坦 | Overview and notices その他概要・特記事項 | | Contact: Yamamoto Takeshi, Parking: car space 担当者:山本 武司、駐車場:カースペース | Company profile 会社概要 | | <Mediation> Minister of Land, Infrastructure and Transport (11) No. 002077 (one company) Property distribution management Association (Corporation) metropolitan area real estate Fair Trade Council member Sumitomo Real Estate Sales Co., Ltd. Kawanishi business center Yubinbango666-0033 Hyogo Prefecture Kawanishi Sakaemachi 11-1-18 Parti K2 2 floor <仲介>国土交通大臣(11)第002077号(一社)不動産流通経営協会会員 (公社)首都圏不動産公正取引協議会加盟住友不動産販売(株)川西営業センター〒666-0033 兵庫県川西市栄町11-1-18 パルティK2 2階 |
Local appearance photo現地外観写真  Taken from the property southwest side
本物件南西側から撮影
 Floor plan
間取り図
Location
|