Used Homes » Kansai » Hyogo Prefecture » Takarazuka
 
| | Takarazuka, Hyogo 兵庫県宝塚市 |
| Hankyu Imazu Line "Inchon" 8 minutes east brewers walk 2 minutes by bus 阪急今津線「仁川」バス8分東蔵人歩2分 |
| Corner lot, LDK18 tatami mats or more, roof balcony, Or more before road 6m, Dish washing dryer, Bathroom Dryer, System kitchen, Face-to-face kitchen, Toilet 2 places, The window in the bathroom, All room 6 tatami mats or more, Three-story or more, 角地、LDK18畳以上、ルーフバルコニー、前道6m以上、食器洗乾燥機、浴室乾燥機、システムキッチン、対面式キッチン、トイレ2ヶ所、浴室に窓、全居室6畳以上、3階建以上、 |
Features pickup 特徴ピックアップ | | LDK18 tatami mats or more / System kitchen / Bathroom Dryer / Or more before road 6m / Corner lot / Face-to-face kitchen / Toilet 2 places / The window in the bathroom / Dish washing dryer / All room 6 tatami mats or more / Three-story or more / Storeroom / roof balcony LDK18畳以上 /システムキッチン /浴室乾燥機 /前道6m以上 /角地 /対面式キッチン /トイレ2ヶ所 /浴室に窓 /食器洗乾燥機 /全居室6畳以上 /3階建以上 /納戸 /ルーフバルコニー | Price 価格 | | 24.5 million yen 2450万円 | Floor plan 間取り | | 3LDK + S (storeroom) 3LDK+S(納戸) | Units sold 販売戸数 | | 1 units 1戸 | Total units 総戸数 | | 1 units 1戸 | Land area 土地面積 | | 100.88 sq m (registration) 100.88m2(登記) | Building area 建物面積 | | 117.57 sq m (registration) 117.57m2(登記) | Driveway burden-road 私道負担・道路 | | Nothing, East 6.3m width (contact the road width 8.1m), North 6.3m width (contact the road width 12.4m) 無、東6.3m幅(接道幅8.1m)、北6.3m幅(接道幅12.4m) | Completion date 完成時期(築年月) | | October 2004 2004年10月 | Address 住所 | | Takarazuka, Hyogo Takashi 5 兵庫県宝塚市高司5 | Traffic 交通 | | Hankyu Imazu Line "Inchon" 8 minutes east brewers walk 2 minutes by bus 阪急今津線「仁川」バス8分東蔵人歩2分
| Person in charge 担当者より | | Between the responsible Shataku Kenmi Yasushi high Age: 30 Daigyokai experience: He joined 10 years 2002, It will be the 10-year milestone this year. Because we have been operating around the Hankyu Imazu Line wayside, Ashiya not only the city, Nishinomiya ・ Also there is a confidence in the property looking for in Takarazuka. 担当者宅建味間 康高年齢:30代業界経験:10年平成14年に入社し、今年で10年目の節目となります。阪急今津線沿線を中心に営業しておりましたので、芦屋市内だけでなく、西宮市・宝塚市での物件探しにも自信がございます。 | Contact お問い合せ先 | | TEL: 0800-603-1245 [Toll free] mobile phone ・ Also available from PHS Caller ID is not notified Please contact the "saw SUUMO (Sumo)" If it does not lead, If the real estate company TEL:0800-603-1245【通話料無料】携帯電話・PHSからもご利用いただけます 発信者番号は通知されません 「SUUMO(スーモ)を見た」と問い合わせください つながらない方、不動産会社の方は
| Building coverage, floor area ratio 建ぺい率・容積率 | | 60% ・ 200% 60%・200% | Time residents 入居時期 | | Consultation 相談 | Land of the right form 土地の権利形態 | | Ownership 所有権 | Structure and method of construction 構造・工法 | | Wooden three-story 木造3階建 | Use district 用途地域 | | One dwelling 1種住居 | Other limitations その他制限事項 | | Regulations have by the Aviation Law, Height district 航空法による規制有、高度地区 | Overview and notices その他概要・特記事項 | | Between the taste: the person in charge Yasushidaka, Facilities: Public Water Supply, This sewage, City gas, Building confirmation number: BanKendai No. 16-0029, Parking: car space 担当者:味間 康高、設備:公営水道、本下水、都市ガス、建築確認番号:阪建第16-0029号、駐車場:カースペース | Company profile 会社概要 | | <Mediation> Minister of Land, Infrastructure and Transport (11) No. 002287 (one company) Real Estate Association (Corporation) metropolitan area real estate Fair Trade Council member Co., Ltd. Japan Living Service Co., Ltd. Ashiya office Yubinbango659-0093 Hyogo Prefecture Ashiya Funato-cho 5-5 Eben ・ Ezer Ashiya first floor <仲介>国土交通大臣(11)第002287号(一社)不動産協会会員 (公社)首都圏不動産公正取引協議会加盟(株)日住サービス芦屋営業所〒659-0093 兵庫県芦屋市船戸町5-5 エベン・エゼル芦屋1階 |
Local appearance photo現地外観写真  Local (11 May 2013) Shooting
現地(2013年11月)撮影
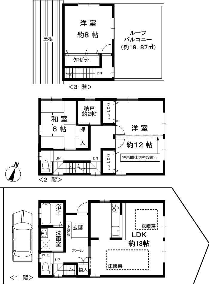
Floor plan間取り図  24.5 million yen, 3LDK + S (storeroom), Land area 100.88 sq m , Building area 117.57 sq m
2450万円、3LDK+S(納戸)、土地面積100.88m2、建物面積117.57m2
Livingリビング  Indoor (11 May 2013) Shooting
室内(2013年11月)撮影
Bathroom浴室  Indoor (11 May 2013) Shooting
室内(2013年11月)撮影
Kitchenキッチン  Indoor (11 May 2013) Shooting
室内(2013年11月)撮影
Entrance玄関  Local (11 May 2013) Shooting
現地(2013年11月)撮影
Wash basin, toilet洗面台・洗面所  Indoor (11 May 2013) Shooting
室内(2013年11月)撮影
Toiletトイレ  Indoor (11 May 2013) Shooting
室内(2013年11月)撮影
Balconyバルコニー  Local (11 May 2013) Shooting
現地(2013年11月)撮影
Otherその他  Japanese style room
和室
Location
|