1995April
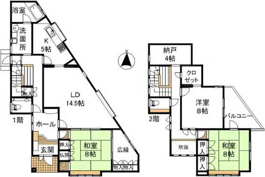
58,800,000 yen, 3LDK + S (storeroom), 145.16 sq m
Used Homes » Kansai » Hyogo Prefecture » Takarazuka
 
| | Takarazuka, Hyogo 兵庫県宝塚市 |
| Hankyu Imazu Line "Takaradzukaminamiguchi" walk 7 minutes 阪急今津線「宝塚南口」歩7分 |
Price 価格 | | 58,800,000 yen 5880万円 | Floor plan 間取り | | 3LDK + S (storeroom) 3LDK+S(納戸) | Units sold 販売戸数 | | 1 units 1戸 | Land area 土地面積 | | 199.67 sq m (registration) 199.67m2(登記) | Building area 建物面積 | | 145.16 sq m (registration) 145.16m2(登記) | Driveway burden-road 私道負担・道路 | | Nothing, South 6.3m width, Northeast 6.3m width 無、南6.3m幅、北東6.3m幅 | Completion date 完成時期(築年月) | | April 1995 1995年4月 | Address 住所 | | Takarazuka, Hyogo Jurakuso 兵庫県宝塚市寿楽荘 | Traffic 交通 | | Hankyu Imazu Line "Takaradzukaminamiguchi" walk 7 minutes 阪急今津線「宝塚南口」歩7分
| Person in charge 担当者より | | Rep Maeda Masato 担当者前田 正人 | Contact お問い合せ先 | | Sumitomo Real Estate Sales Co., Ltd. Sakasegawa business center TEL: 0120-552036 [Toll free] Please contact the "saw SUUMO (Sumo)" 住友不動産販売(株)逆瀬川営業センターTEL:0120-552036【通話料無料】「SUUMO(スーモ)を見た」と問い合わせください | Building coverage, floor area ratio 建ぺい率・容積率 | | Fifty percent ・ Hundred percent 50%・100% | Time residents 入居時期 | | Immediate available 即入居可 | Land of the right form 土地の権利形態 | | Ownership 所有権 | Structure and method of construction 構造・工法 | | Wooden 2-story 木造2階建 | Use district 用途地域 | | One low-rise 1種低層 | Other limitations その他制限事項 | | / Terrain: flat /地勢:平坦 | Overview and notices その他概要・特記事項 | | Contact: Maeda Masato, Parking: car space 担当者:前田 正人、駐車場:カースペース | Company profile 会社概要 | | <Mediation> Minister of Land, Infrastructure and Transport (11) No. 002077 (one company) Property distribution management Association (Corporation) metropolitan area real estate Fair Trade Council member Sumitomo Real Estate Sales Co., Ltd. Sakasegawa business center Yubinbango665-0035 Takarazuka, Hyogo Sakasegawa 1-1-1 Ito - peer Sankanekan first floor <仲介>国土交通大臣(11)第002077号(一社)不動産流通経営協会会員 (公社)首都圏不動産公正取引協議会加盟住友不動産販売(株)逆瀬川営業センター〒665-0035 兵庫県宝塚市逆瀬川1-1-1イト-ピア参鐘館1階 |
Local appearance photo現地外観写真  Property Appearance (1)
物件外観(1)
 Floor plan
間取り図
Location
|