Used Homes » Kansai » Hyogo Prefecture » Tamba
 
| | Hyogo Prefecture Tamba 兵庫県丹波市 |
| JR Fukuchiyama Line "iso" car 17km JR福知山線「石生」車17km |
| ☆ JR Fukuchiyama Line Isō Station About 17km from, North Kinki motorway Aogaki Inter About 3.3km in a more car! ☆ [Site breakdown] Residential land 121.99 square meters, Field 78.95 tsubo, Forest 4.84 square meters, Department of 2.99 square meters. ☆JR福知山線 石生駅 より約17km、北近畿自動車道 青垣インター より車で約3.3km!☆【敷地内訳】宅地121.99坪、畑78.95坪、山林4.84坪、田2.99坪。 |
| ■ Tamba Aogaki wrapped in rich natural! ■ Japanese House of rural development that the cherry trees are views! ! ■ Super 2.7km, City Branch 2.1km, Clinic 2.4km ■ All-electric! ■豊かな自然につつまれた丹波市青垣町!■桜並木が眺められる田舎づくりの和風邸!!■スーパー2.7km、市 支所2.1km、診療所2.4km■オール電化! |
Features pickup 特徴ピックアップ | | Immediate Available / Land more than 100 square meters / Riverside / See the mountain / It is close to golf course / Facing south / Yang per good / Siemens south road / LDK15 tatami mats or more / Around traffic fewer / Corner lot / Japanese-style room / Garden more than 10 square meters / Idyll / Home garden / 3 face lighting / Bathroom 1 tsubo or more / 2-story / Warm water washing toilet seat / Nantei / The window in the bathroom / High-function toilet / Ventilation good / Good view / IH cooking heater / Or more ceiling height 2.5m / All room 6 tatami mats or more / Storeroom / A large gap between the neighboring house / Flat terrain / 2 family house / Attic storage / terrace / field / Old houses wind 即入居可 /土地100坪以上 /リバーサイド /山が見える /ゴルフ場が近い /南向き /陽当り良好 /南側道路面す /LDK15畳以上 /周辺交通量少なめ /角地 /和室 /庭10坪以上 /田園風景 /家庭菜園 /3面採光 /浴室1坪以上 /2階建 /温水洗浄便座 /南庭 /浴室に窓 /高機能トイレ /通風良好 /眺望良好 /IHクッキングヒーター /天井高2.5m以上 /全居室6畳以上 /納戸 /隣家との間隔が大きい /平坦地 /2世帯住宅 /屋根裏収納 /テラス /畑 /古民家風 | Price 価格 | | 10 million yen 1000万円 | Floor plan 間取り | | 7LDK + S (storeroom) 7LDK+S(納戸) | Units sold 販売戸数 | | 1 units 1戸 | Total units 総戸数 | | 1 units 1戸 | Land area 土地面積 | | 690.2 sq m (registration) 690.2m2(登記) | Building area 建物面積 | | 236.53 sq m (registration) 236.53m2(登記) | Driveway burden-road 私道負担・道路 | | Nothing, South 3m width 無、南3m幅 | Completion date 完成時期(築年月) | | December 1969 1969年12月 | Address 住所 | | Hyogo Prefecture Tamba Aogaki Nakasaji 兵庫県丹波市青垣町中佐治 | Traffic 交通 | | JR Fukuchiyama Line "iso" car 17km JR福知山線「石生」車17km
| Related links 関連リンク | | [Related Sites of this company] 【この会社の関連サイト】 | Person in charge 担当者より | | [Regarding this property.] JR Fukuchiyama Line Isō Station About 17km from! North Kinki motorway Aogaki Inter About 3.3km in a more car! ! 【この物件について】JR福知山線 石生駅 より約17km! 北近畿自動車道 青垣インター より車で約3.3km!! | Contact お問い合せ先 | | Kitano (Ltd.) TEL: 0120-172462 [Toll free] Please contact the "saw SUUMO (Sumo)" キタノ(株)TEL:0120-172462【通話料無料】「SUUMO(スーモ)を見た」と問い合わせください | Time residents 入居時期 | | Immediate available 即入居可 | Land of the right form 土地の権利形態 | | Ownership 所有権 | Structure and method of construction 構造・工法 | | Wooden 2-story 木造2階建 | Use district 用途地域 | | Unspecified 無指定 | Overview and notices その他概要・特記事項 | | Facilities: Public Water Supply, Individual septic tank, Parking: car space 設備:公営水道、個別浄化槽、駐車場:カースペース | Company profile 会社概要 | | <Mediation> governor of Osaka (6) No. 040003 Kitano (Ltd.) Yubinbango540-0028, Chuo-ku, Osaka-shi Tokiwa-cho 2-2-30 first floor <仲介>大阪府知事(6)第040003号キタノ(株)〒540-0028 大阪府大阪市中央区常盤町2-2-30 1階 |
Local appearance photo現地外観写真  Tamba Aogaki wrapped in rich natural.
豊かな自然につつまれた丹波市青垣町。
Non-living roomリビング以外の居室  Appearance between the Japanese-style More
和室続き間の様子
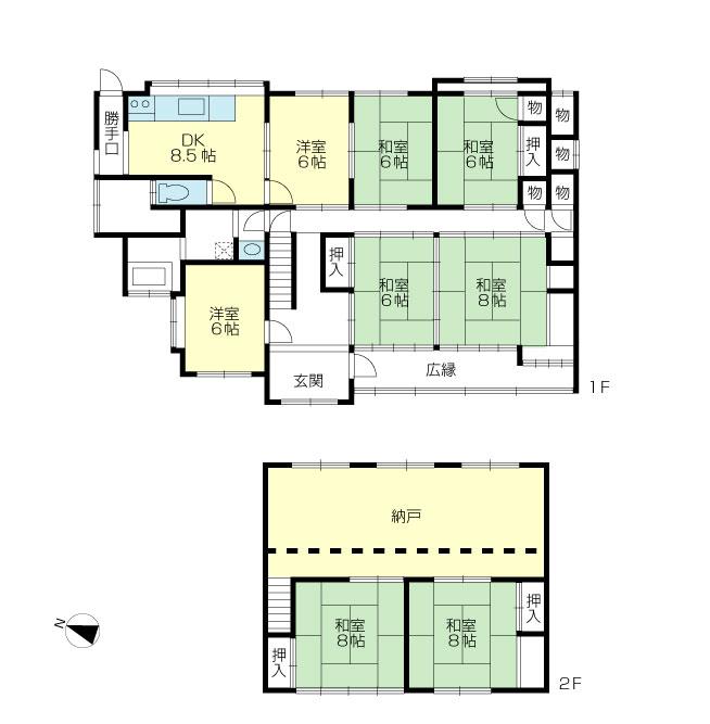
Floor plan間取り図  10 million yen, 7LDK + S (storeroom), Land area 690.2 sq m ese House of rural development that building area 236.53 sq m cherry trees are views.
1000万円、7LDK+S(納戸)、土地面積690.2m2、建物面積236.53m2 桜並木が眺められる田舎づくりの和風邸。
Bathroom浴室  Bathroom requires reform
浴室はリフォームが必要です
Kitchenキッチン  State of the kitchen
キッチンの様子
Non-living roomリビング以外の居室  Entrance next to Western-style can also be used in the reception
応接にも使える玄関横洋室
Entrance玄関  State of the entrance hall
玄関ホールの様子
Wash basin, toilet洗面台・洗面所  State of the wash basin
洗面台の様子
Toiletトイレ  State of the toilet
トイレの様子
Garden庭  Sunny Hiroen
日当たりの良い広縁です
Other introspectionその他内観  Appearance of fine Enketa
立派な縁桁の様子
Otherその他  The first floor is the barn, The second floor is available as a room
1階は納屋、2階は居室として利用可能です
Kitchenキッチン  Kitchen is the IH cooking heater
キッチンはIHクッキングヒーターです
Non-living roomリビング以外の居室  Alcove of state
床の間の様子
Entrance玄関  Situation in the foyer
玄関内の様子
Garden庭  There is a nice garden in front of the veranda
縁側の前には素敵な庭園がございます
Other introspectionその他内観  State of the second floor storeroom and a Japanese-style room partition
2階物置と和室間仕切りの様子
Otherその他  layout drawing
配置図
Non-living roomリビング以外の居室  Shoin state of
書院の様子
 Second floor alcove of state
2階床の間の様子
Location
|