|
|
Kyoto Prefecture Kameoka
京都府亀岡市
|
|
JR San-in Main Line "Kameoka" 40 minutes Green Town walk 2 minutes by bus
JR山陰本線「亀岡」バス40分グリーンタウン歩2分
|
|
■ Before road 6M ■ Parking two possible ■ 2012. May all refurbished
■前道6M ■駐車2台可能■平成24年5月全改装済
|
Features pickup 特徴ピックアップ | | Parking two Allowed / Land 50 square meters or more / Fiscal year Available / Or more before road 6m / 2-story 駐車2台可 /土地50坪以上 /年度内入居可 /前道6m以上 /2階建 |
Price 価格 | | 11.8 million yen 1180万円 |
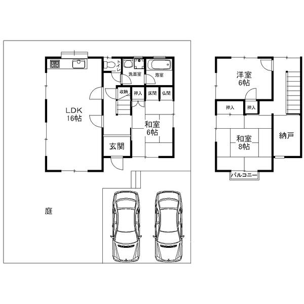
Floor plan 間取り | | 3LDK + S (storeroom) 3LDK+S(納戸) |
Units sold 販売戸数 | | 1 units 1戸 |
Land area 土地面積 | | 182.98 sq m (registration) 182.98m2(登記) |
Building area 建物面積 | | 93.57 sq m 93.57m2 |
Driveway burden-road 私道負担・道路 | | Nothing, Southeast 6m width (contact the road width 12.7m) 無、南東6m幅(接道幅12.7m) |
Completion date 完成時期(築年月) | | April 1986 1986年4月 |
Address 住所 | | Kyoto Prefecture Kameoka Honmechohiramatsu eight hundred minutes 京都府亀岡市本梅町平松八百分 |
Traffic 交通 | | JR San-in Main Line "Kameoka" 40 minutes Green Town walk 2 minutes by bus JR山陰本線「亀岡」バス40分グリーンタウン歩2分
|
Related links 関連リンク | | [Related Sites of this company] 【この会社の関連サイト】 |
Contact お問い合せ先 | | Century 21 (Ltd.) Meisei housing TEL: 0800-603-6407 [Toll free] mobile phone ・ Also available from PHS Caller ID is not notified Please contact the "saw SUUMO (Sumo)" If it does not lead, If the real estate company センチュリー21(株)明成ハウジングTEL:0800-603-6407【通話料無料】携帯電話・PHSからもご利用いただけます 発信者番号は通知されません 「SUUMO(スーモ)を見た」と問い合わせください つながらない方、不動産会社の方は
|
Time residents 入居時期 | | February 2014 schedule 2014年2月予定 |
Land of the right form 土地の権利形態 | | Ownership 所有権 |
Structure and method of construction 構造・工法 | | Wooden 2-story 木造2階建 |
Use district 用途地域 | | City planning area outside 都市計画区域外 |
Overview and notices その他概要・特記事項 | | Facilities: Public Water Supply, This sewage, Individual LPG 設備:公営水道、本下水、個別LPG |
Company profile 会社概要 | | <Mediation> Governor of Kyoto Prefecture (2) the first 011,664 No. Century 21 (Ltd.) Meisei housing Yubinbango615-0901 Kyoto, Kyoto Prefecture Ukyo-ku, Umezuminamihiro-cho, 25 <仲介>京都府知事(2)第011664号センチュリー21(株)明成ハウジング〒615-0901 京都府京都市右京区梅津南広町25 |