|
|
Kyoto Kyotanabe
京都府京田辺市
|
|
JR katamachi line "Matsuiyamate" walk 6 minutes
JR片町線「松井山手」歩6分
|
|
☆ JR Matsuiyamate 6-minute walk ☆ Between a population of about 17.9m ☆ Front road about 6m ☆ A quiet residential area
☆JR松井山手駅徒歩6分 ☆間口約17.9m ☆前面道路約6m ☆閑静な住宅街
|
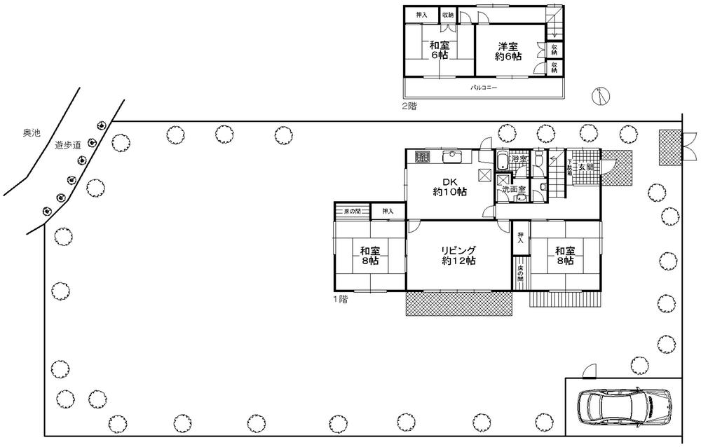
Features pickup 特徴ピックアップ | | Land more than 100 square meters / A quiet residential area / Or more before road 6m / Japanese-style room / 2-story / The window in the bathroom / All room 6 tatami mats or more / City gas 土地100坪以上 /閑静な住宅地 /前道6m以上 /和室 /2階建 /浴室に窓 /全居室6畳以上 /都市ガス |
Price 価格 | | 82 million yen 8200万円 |
Floor plan 間取り | | 4LDK 4LDK |
Units sold 販売戸数 | | 1 units 1戸 |
Land area 土地面積 | | 631.92 sq m (191.15 tsubo) (Registration) 631.92m2(191.15坪)(登記) |
Building area 建物面積 | | 128.58 sq m (38.89 tsubo) (Registration) 128.58m2(38.89坪)(登記) |
Driveway burden-road 私道負担・道路 | | Nothing, East 6m width 無、東6m幅 |
Completion date 完成時期(築年月) | | September 1975 1975年9月 |
Address 住所 | | Kyoto Kyotanabe Matsuigaoka 3 京都府京田辺市松井ケ丘3 |
Traffic 交通 | | JR katamachi line "Matsuiyamate" walk 6 minutes JR片町線「松井山手」歩6分
|
Related links 関連リンク | | [Related Sites of this company] 【この会社の関連サイト】 |
Person in charge 担当者より | | Person in charge of real-estate and building Yamanouchi Shingo Age: 30 Daigyokai experience: Regardless of the eight-year good area, If it relates to real estate, Also please contact us with any thing. We will surely respond to your request of everyone in the motivation and patience. 担当者宅建山之内 伸吾年齢:30代業界経験:8年得意エリアに関わらず、不動産に関することならば、どんなことでもご相談くださいませ。やる気と根気できっと皆様のご要望にお応えいたします。 |
Contact お問い合せ先 | | TEL: 0800-603-2868 [Toll free] mobile phone ・ Also available from PHS Caller ID is not notified Please contact the "saw SUUMO (Sumo)" If it does not lead, If the real estate company TEL:0800-603-2868【通話料無料】携帯電話・PHSからもご利用いただけます 発信者番号は通知されません 「SUUMO(スーモ)を見た」と問い合わせください つながらない方、不動産会社の方は
|
Building coverage, floor area ratio 建ぺい率・容積率 | | Fifty percent ・ 80% 50%・80% |
Time residents 入居時期 | | Consultation 相談 |
Land of the right form 土地の権利形態 | | Ownership 所有権 |
Structure and method of construction 構造・工法 | | Light-gauge steel 2-story 軽量鉄骨2階建 |
Use district 用途地域 | | One low-rise 1種低層 |
Overview and notices その他概要・特記事項 | | Contact: Yamanouchi Shingo, Facilities: Public Water Supply, This sewage, City gas, Parking: car space 担当者:山之内 伸吾、設備:公営水道、本下水、都市ガス、駐車場:カースペース |
Company profile 会社概要 | | <Mediation> Minister of Land, Infrastructure and Transport (3) The 006,056 No. Keihan Electric Railway Real Estate Co., Ltd. Keihan east Rose Town office Yubinbango610-0356 Kyoto Kyotanabe Yamate center 3 Station Town Plaza <仲介>国土交通大臣(3)第006056号京阪電鉄不動産(株)京阪東ローズタウン営業所〒610-0356 京都府京田辺市山手中央3駅前タウンプラザ内 |