Used Homes » Kansai » Kyoto » Kyotanabe


Kyoto Kyotanabe
JR katamachi line "Osumi" walk 7 minutes
Ōsumi Station walk about 7 minutes of the northeast corner lot of housing Floor plan with a garage in 4DK. It also recommended as rebuilding site.
Ōsumi Station walk about 7 minutes of the house located in the quiet residential area Taoyuan Elementary School ・ Osumi junior high school has become the school of the nearest
Features pickup
All room storage / A quiet residential area / LDK15 tatami mats or more / Corner lot / Japanese-style room / Shutter - garage / 2-story / Nantei / Atrium / Leafy residential area / All room 6 tatami mats or more / Located on a hill
Event information
Open House (Please make a reservation beforehand) schedule / During the public time / 10:00 ~ 17:00 now, Because it is vacant. But it has become a possible preview at any time, In advance will contact us please.
Price
17.5 million yen
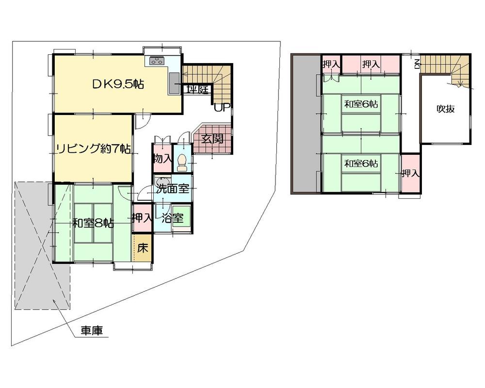
Floor plan
3LDK
Units sold
1 units
Total units
1 units
Land area
126.88 sq m (38.38 tsubo) (Registration)
Building area
115.14 sq m (34.82 tsubo) (Registration), Of underground garage 14.5 sq m
Driveway burden-road
Nothing, Northeast 5m width, Northwest 4.8m width
Completion date
August 1981
Address
Kyoto Kyotanabe Osumi Pinggu
Traffic
JR katamachi line "Osumi" walk 7 minutes
Related links
[Related Sites of this company]
Contact
(Ltd.) field builders TEL: 0120-199334 [Toll free] Please contact the "saw SUUMO (Sumo)"
Building coverage, floor area ratio
60% ・ 200%
Time residents
Consultation
Land of the right form
Ownership
Structure and method of construction
Wooden 2-story (framing method) some RC
Use district
One middle and high
Other limitations
Residential land development construction regulation area, Height district
Overview and notices
Facilities: Public Water Supply, This sewage, Individual LPG, Parking: underground garage
Company profile
<Mediation> governor of Osaka (2) No. 051885 (Ltd.) field builders Yubinbango576-0064 Osaka Katano Teraminamino 8-2


Local appearance photo

Local appearance photo. Location of Ōsumi Station walk about 7 minutes
Location of Ōsumi Station walk about 7 minutes

Floor plan

Floor plan. 17.5 million yen, 3LDK, Land area 126.88 sq m , Floor plan of the building area 115.14 sq m 4DK + with garage Balcony spread
17.5 million yen, 3LDK, Land area 126.88 sq m , Floor plan of the building area 115.14 sq m 4DK + with garage Balcony spread

Entrance

Entrance. Blow-by, Entrance hall with a Tsuboniwa
Blow-by, Entrance hall with a Tsuboniwa

Living

Living. DK and Western-style room and a Japanese-style room and the first floor is becoming Tsuzukiai.
DK and Western-style room and a Japanese-style room and the first floor is becoming Tsuzukiai.

Bathroom

Bathroom. But is the bathroom of the conventional type, Bright is.
But is the bathroom of the conventional type, Bright is.

Non-living room

Non-living room. Japanese-style room between the second floor More With storage
Japanese-style room between the second floor More With storage



Location