|
|
Kyoto Kyotanabe
京都府京田辺市
|
|
Kintetsu Kyoto Line "Kodo" walk 3 minutes
近鉄京都線「興戸」歩3分
|
|
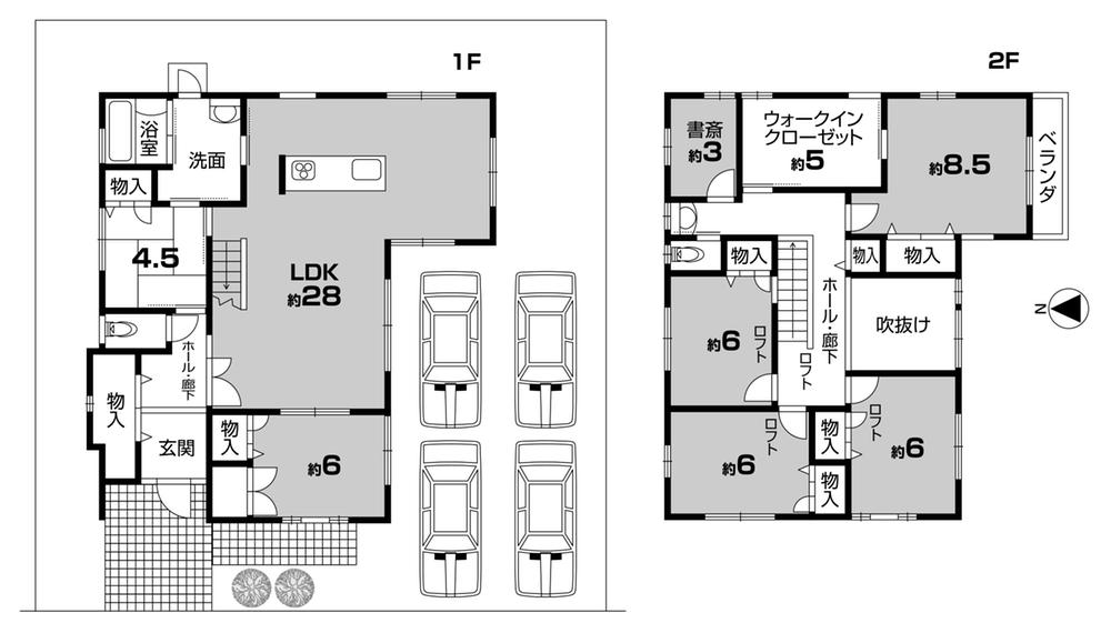
☆ Esubaieru of order architecture house ☆ Kintetsu Kyoto Line Kōdo Station 3-minute walk, JR Dōshishamae Station 8-minute walk ☆ Floor 6SLDK + walk-in closet ☆ Floor heating to LDK
☆エスバイエルの注文建築の家 ☆近鉄京都線興戸駅徒歩3分、JR同志社前駅徒歩8分☆間取り6SLDK+ウォークインクロゼット ☆LDKに床暖房
|
|
☆ There is one floor electric shutter ☆ Western-style 3 with a loft in the room ☆ There are four cars parking space ☆ Land area of about 60.0 square meters ☆ Building area of about 50.3 square meters
☆1階電動シャッターあり ☆洋室3部屋にロフト付き ☆駐車スペース4台あり ☆土地面積約60.0坪 ☆建物面積約50.3坪
|
Features pickup 特徴ピックアップ | | Parking three or more possible / LDK20 tatami mats or more / Land 50 square meters or more / System kitchen / All room storage / Japanese-style room / Toilet 2 places / Bathroom 1 tsubo or more / 2-story / South balcony / The window in the bathroom / Walk-in closet / Floor heating 駐車3台以上可 /LDK20畳以上 /土地50坪以上 /システムキッチン /全居室収納 /和室 /トイレ2ヶ所 /浴室1坪以上 /2階建 /南面バルコニー /浴室に窓 /ウォークインクロゼット /床暖房 |
Price 価格 | | 42,800,000 yen 4280万円 |
Floor plan 間取り | | 6LDK + S (storeroom) 6LDK+S(納戸) |
Units sold 販売戸数 | | 1 units 1戸 |
Land area 土地面積 | | 198.38 sq m (registration) 198.38m2(登記) |
Building area 建物面積 | | 166.34 sq m (registration) 166.34m2(登記) |
Driveway burden-road 私道負担・道路 | | Nothing, West 4m width 無、西4m幅 |
Completion date 完成時期(築年月) | | March 2004 2004年3月 |
Address 住所 | | Kyoto Kyotanabe Kusanai Yamashina 京都府京田辺市草内山科 |
Traffic 交通 | | Kintetsu Kyoto Line "Kodo" walk 3 minutes JR katamachi line "Doshishamae" walk 8 minutes 近鉄京都線「興戸」歩3分 JR片町線「同志社前」歩8分
|
Related links 関連リンク | | [Related Sites of this company] 【この会社の関連サイト】 |
Person in charge 担当者より | | Person in charge of real-estate and building Yamanouchi Shingo Age: 30 Daigyokai experience: Regardless of the eight-year good area, If it relates to real estate, Also please contact us with any thing. We will surely respond to your request of everyone in the motivation and patience. 担当者宅建山之内 伸吾年齢:30代業界経験:8年得意エリアに関わらず、不動産に関することならば、どんなことでもご相談くださいませ。やる気と根気できっと皆様のご要望にお応えいたします。 |
Contact お問い合せ先 | | TEL: 0800-603-2868 [Toll free] mobile phone ・ Also available from PHS Caller ID is not notified Please contact the "saw SUUMO (Sumo)" If it does not lead, If the real estate company TEL:0800-603-2868【通話料無料】携帯電話・PHSからもご利用いただけます 発信者番号は通知されません 「SUUMO(スーモ)を見た」と問い合わせください つながらない方、不動産会社の方は
|
Building coverage, floor area ratio 建ぺい率・容積率 | | 60% ・ Hundred percent 60%・100% |
Time residents 入居時期 | | Consultation 相談 |
Land of the right form 土地の権利形態 | | Ownership 所有権 |
Structure and method of construction 構造・工法 | | Wooden 2-story 木造2階建 |
Use district 用途地域 | | One low-rise 1種低層 |
Overview and notices その他概要・特記事項 | | Contact: Yamanouchi Shingo, Facilities: Public Water Supply, This sewage, Individual LPG, Parking: Garage 担当者:山之内 伸吾、設備:公営水道、本下水、個別LPG、駐車場:車庫 |
Company profile 会社概要 | | <Mediation> Minister of Land, Infrastructure and Transport (3) The 006,056 No. Keihan Electric Railway Real Estate Co., Ltd. Keihan east Rose Town office Yubinbango610-0356 Kyoto Kyotanabe Yamate center 3 Station Town Plaza <仲介>国土交通大臣(3)第006056号京阪電鉄不動産(株)京阪東ローズタウン営業所〒610-0356 京都府京田辺市山手中央3駅前タウンプラザ内 |