1989August
70 million yen, 4LDK, 182.01 sq m
Used Homes » Kansai » Kyoto » Kyotanabe
 
| | Kyoto Kyotanabe 京都府京田辺市 |
| JR katamachi line "Matsuiyamate" walk 7 minutes JR片町線「松井山手」歩7分 |
Price 価格 | | 70 million yen 7000万円 | Floor plan 間取り | | 4LDK 4LDK | Units sold 販売戸数 | | 1 units 1戸 | Land area 土地面積 | | 330.74 sq m (registration) 330.74m2(登記) | Building area 建物面積 | | 182.01 sq m (registration) 182.01m2(登記) | Driveway burden-road 私道負担・道路 | | Nothing 無 | Completion date 完成時期(築年月) | | August 1989 1989年8月 | Address 住所 | | Kyoto Kyotanabe Matsuigaoka 3 京都府京田辺市松井ケ丘3 | Traffic 交通 | | JR katamachi line "Matsuiyamate" walk 7 minutes JR片町線「松井山手」歩7分
| Person in charge 担当者より | | Rep Tamada Saburo 担当者玉田 三郎 | Contact お問い合せ先 | | Sumitomo Real Estate Sales Co., Ltd. Kuzuha business center TEL: 072-867-3300 Please inquire as "saw SUUMO (Sumo)" 住友不動産販売(株)くずは営業センターTEL:072-867-3300「SUUMO(スーモ)を見た」と問い合わせください | Building coverage, floor area ratio 建ぺい率・容積率 | | Fifty percent ・ 80% 50%・80% | Time residents 入居時期 | | Consultation 相談 | Land of the right form 土地の権利形態 | | Ownership 所有権 | Structure and method of construction 構造・工法 | | Wooden 2-story 木造2階建 | Use district 用途地域 | | One low-rise 1種低層 | Other limitations その他制限事項 | | / Terrain: flat /地勢:平坦 | Overview and notices その他概要・特記事項 | | Contact: Tamada Saburo, Parking: car space 担当者:玉田 三郎、駐車場:カースペース | Company profile 会社概要 | | <Mediation> Minister of Land, Infrastructure and Transport (11) No. 002077 (one company) Property distribution management Association (Corporation) metropolitan area real estate Fair Trade Council member Sumitomo Real Estate Sales Co., Ltd. Kuzuha business center Yubinbango573-1106 Hirakata, Osaka Machikuzuha 1-5-1 Fukiya building second floor <仲介>国土交通大臣(11)第002077号(一社)不動産流通経営協会会員 (公社)首都圏不動産公正取引協議会加盟住友不動産販売(株)くずは営業センター〒573-1106 大阪府枚方市町楠葉1-5-1 婦喜屋ビル2階 |
Local appearance photo現地外観写真  Entrance photo Pillar ・ Liang ・ All flooring and joinery, etc. have been using solid wood.
玄関写真 柱・梁・床材や建具等全て無垢材を使用されています。
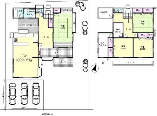
 Floor plan
間取り図
Location
|