|
|
Kyoto, Kyoto Prefecture Fushimi-ku,
京都府京都市伏見区
|
|
Keihan Uji Line "Momoyama South Exit" walk 6 minutes
京阪宇治線「桃山南口」歩6分
|
|
☆ House with store ・ Tango Bridge through Siemens ☆ Immediate delivery Allowed per vacant house
☆店舗付住宅・丹後橋通面す☆空家につき即引渡し可
|
|
* The seller of the defect liability disclaimer
*売主の瑕疵担保責任免責
|
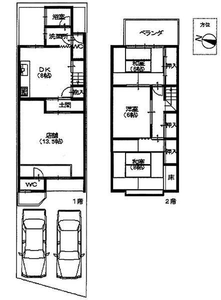
Features pickup 特徴ピックアップ | | Parking two Allowed / Immediate Available / Or more before road 6m / Toilet 2 places / 2-story / City gas / Flat terrain 駐車2台可 /即入居可 /前道6m以上 /トイレ2ヶ所 /2階建 /都市ガス /平坦地 |
Price 価格 | | 18.9 million yen 1890万円 |
Floor plan 間取り | | 4DK 4DK |
Units sold 販売戸数 | | 1 units 1戸 |
Land area 土地面積 | | 89.34 sq m (registration) 89.34m2(登記) |
Building area 建物面積 | | 92.74 sq m 92.74m2 |
Driveway burden-road 私道負担・道路 | | Nothing, Southwest 10m width (contact the road width 4.9m) 無、南西10m幅(接道幅4.9m) |
Completion date 完成時期(築年月) | | April 1980 1980年4月 |
Address 住所 | | Kyoto Fushimi-ku, Kyoto Momoyamaminamioshima cho 京都府京都市伏見区桃山南大島町 |
Traffic 交通 | | Keihan Uji Line "Momoyama South Exit" walk 6 minutes 京阪宇治線「桃山南口」歩6分
|
Related links 関連リンク | | [Related Sites of this company] 【この会社の関連サイト】 |
Person in charge 担当者より | | Rep Shintaro Araki 担当者荒木慎太郎 |
Contact お問い合せ先 | | TEL: 0800-603-3226 [Toll free] mobile phone ・ Also available from PHS Caller ID is not notified Please contact the "saw SUUMO (Sumo)" If it does not lead, If the real estate company TEL:0800-603-3226【通話料無料】携帯電話・PHSからもご利用いただけます 発信者番号は通知されません 「SUUMO(スーモ)を見た」と問い合わせください つながらない方、不動産会社の方は
|
Building coverage, floor area ratio 建ぺい率・容積率 | | 60% ・ 200% 60%・200% |
Time residents 入居時期 | | Immediate available 即入居可 |
Land of the right form 土地の権利形態 | | Ownership 所有権 |
Structure and method of construction 構造・工法 | | Wooden 2-story 木造2階建 |
Use district 用途地域 | | One middle and high 1種中高 |
Overview and notices その他概要・特記事項 | | Contact: Shintaro Araki, Facilities: Public Water Supply, This sewage, City gas 担当者:荒木慎太郎、設備:公営水道、本下水、都市ガス |
Company profile 会社概要 | | <Mediation> Governor of Kyoto Prefecture (2) the first 011,661 No. Century 21 (Ltd.) Keihan Juken Yubinbango611-0002 Kyoto Uji Kobata median 56-3 <仲介>京都府知事(2)第011661号センチュリー21(株)京阪住研〒611-0002 京都府宇治市木幡正中56-3 |