|
|
Kyoto, Kyoto Prefecture Fushimi-ku,
京都府京都市伏見区
|
|
Subway Tozai Line "Ishida" walk 19 minutes
地下鉄東西線「石田」歩19分
|
|
View ・ Ventilation good ☆
眺望・風通し良好☆
|
|
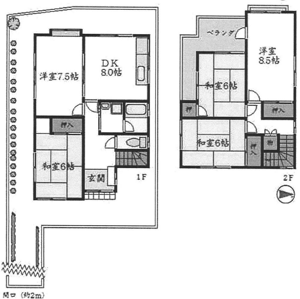
South ・ There is a balcony on the west side! ! All room 6 tatami mats more spacious 5DK!
南側・西側にバルコニーあり!!全居室6畳以上の広々5DK!
|
Features pickup 特徴ピックアップ | | Parking two Allowed / It is close to the city / Or more before road 6m / Japanese-style room / 2-story / Ventilation good / Good view / All room 6 tatami mats or more / City gas 駐車2台可 /市街地が近い /前道6m以上 /和室 /2階建 /通風良好 /眺望良好 /全居室6畳以上 /都市ガス |
Price 価格 | | 16.1 million yen 1610万円 |
Floor plan 間取り | | 5DK 5DK |
Units sold 販売戸数 | | 1 units 1戸 |
Land area 土地面積 | | 152.59 sq m (registration) 152.59m2(登記) |
Building area 建物面積 | | 92.34 sq m (registration) 92.34m2(登記) |
Driveway burden-road 私道負担・道路 | | Nothing, East 9m width (contact the road width 2m) 無、東9m幅(接道幅2m) |
Completion date 完成時期(築年月) | | April 1983 1983年4月 |
Address 住所 | | Kyoto Fushimi-ku, Kyoto Daigokamiyamaguchi cho 京都府京都市伏見区醍醐上山口町 |
Traffic 交通 | | Subway Tozai Line "Ishida" walk 19 minutes Kyoto City bus "Hitokototera" walk 7 minutes 地下鉄東西線「石田」歩19分 京都市バス「一言寺」歩7分 |
Contact お問い合せ先 | | Endless real estate sales (Ltd.) TEL: 0800-808-4938 [Toll free] mobile phone ・ Also available from PHS Caller ID is not notified Please contact the "saw SUUMO (Sumo)" If it does not lead, If the real estate company エンドレス不動産販売(株)TEL:0800-808-4938【通話料無料】携帯電話・PHSからもご利用いただけます 発信者番号は通知されません 「SUUMO(スーモ)を見た」と問い合わせください つながらない方、不動産会社の方は
|
Building coverage, floor area ratio 建ぺい率・容積率 | | 60% ・ 200% 60%・200% |
Time residents 入居時期 | | Consultation 相談 |
Land of the right form 土地の権利形態 | | Ownership 所有権 |
Structure and method of construction 構造・工法 | | Wooden 2-story 木造2階建 |
Use district 用途地域 | | One middle and high 1種中高 |
Other limitations その他制限事項 | | Regulations have by the Landscape Act, Height district, Scenic zone 景観法による規制有、高度地区、風致地区 |
Overview and notices その他概要・特記事項 | | Facilities: Public Water Supply, This sewage, City gas, Parking: Car Port 設備:公営水道、本下水、都市ガス、駐車場:カーポート |
Company profile 会社概要 | | <Mediation> Governor of Kyoto Prefecture (1) endless real estate sales. No. 013,038 (Ltd.) Yubinbango607-8142 Kyoto-shi, Kyoto Yamashina-ku Higashinonakainoue cho 7-68 <仲介>京都府知事(1)第013038号エンドレス不動産販売(株)〒607-8142 京都府京都市山科区東野中井ノ上町7-68 |