Used Homes » Kansai » Kyoto » Fushimi-ku
 
| | Kyoto, Kyoto Prefecture Fushimi-ku, 京都府京都市伏見区 |
| JR Nara Line "JR Fujimori" walk 19 minutes JR奈良線「JR藤森」歩19分 |
| Land about 47.8 square meters! Also substantial detached facility in Kyoto! 土地約47.8坪!京都市内で一戸建て設備も充実しています! |
| ■ We enter the second floor day, A bright room ■ Calm in the quiet residential area location ■ There renovation history. February 2008 floor heating (LDK), kitchen ・ Toilet change other. ■ 2階は日が入り、明るい室内■ 閑静な住宅街で落ち着いたロケーション■ リフォーム歴あり。2008年2月床暖房(LDK)、キッチン・トイレ変更他。 |
Features pickup 特徴ピックアップ | | 2 along the line more accessible / Interior renovation / System kitchen / Bathroom Dryer / A quiet residential area / Or more before road 6m / Japanese-style room / garden / 2-story / South balcony / Warm water washing toilet seat / Underfloor Storage / The window in the bathroom / TV monitor interphone / Dish washing dryer / All room 6 tatami mats or more / City gas / Floor heating 2沿線以上利用可 /内装リフォーム /システムキッチン /浴室乾燥機 /閑静な住宅地 /前道6m以上 /和室 /庭 /2階建 /南面バルコニー /温水洗浄便座 /床下収納 /浴室に窓 /TVモニタ付インターホン /食器洗乾燥機 /全居室6畳以上 /都市ガス /床暖房 | Price 価格 | | 22,800,000 yen 2280万円 | Floor plan 間取り | | 4LDK 4LDK | Units sold 販売戸数 | | 1 units 1戸 | Total units 総戸数 | | 1 units 1戸 | Land area 土地面積 | | 158.13 sq m (47.83 tsubo) (Registration) 158.13m2(47.83坪)(登記) | Building area 建物面積 | | 103.5 sq m (31.30 tsubo) (Registration) 103.5m2(31.30坪)(登記) | Driveway burden-road 私道負担・道路 | | Nothing, Northeast 6m width (contact the road width 9m) 無、北東6m幅(接道幅9m) | Completion date 完成時期(築年月) | | July 1987 1987年7月 | Address 住所 | | Kyoto Fushimi-ku, Kyoto FukakusaOkame TaniAzumaYasunobu cho 京都府京都市伏見区深草大亀谷東安信町 | Traffic 交通 | | JR Nara Line "JR Fujimori" walk 19 minutes Subway Tozai Line "Rokujizo" walk 18 minutes Keihan Uji Line "Momoyama south exit" walk 17 minutes JR奈良線「JR藤森」歩19分 地下鉄東西線「六地蔵」歩18分 京阪宇治線「桃山南口」歩17分
| Person in charge 担当者より | | Rep Nakakita 担当者仲北 | Contact お問い合せ先 | | Misawa Homes Kinki (Ltd.) TEL: 0800-600-1332 [Toll free] mobile phone ・ Also available from PHS Caller ID is not notified Please contact the "saw SUUMO (Sumo)" If it does not lead, If the real estate company ミサワホーム近畿(株)TEL:0800-600-1332【通話料無料】携帯電話・PHSからもご利用いただけます 発信者番号は通知されません 「SUUMO(スーモ)を見た」と問い合わせください つながらない方、不動産会社の方は
| Building coverage, floor area ratio 建ぺい率・容積率 | | Fifty percent ・ 80% 50%・80% | Time residents 入居時期 | | Consultation 相談 | Land of the right form 土地の権利形態 | | Ownership 所有権 | Structure and method of construction 構造・工法 | | Wooden 2-story 木造2階建 | Renovation リフォーム | | February 2008 interior renovation completed (kitchen ・ toilet ・ Floor heating) 2008年2月内装リフォーム済(キッチン・トイレ・床暖房) | Use district 用途地域 | | One low-rise 1種低層 | Other limitations その他制限事項 | | Regulations have by the Law for the Protection of Cultural Properties, Regulations have by the Landscape Act, Residential land development construction regulation area, Height district 文化財保護法による規制有、景観法による規制有、宅地造成工事規制区域、高度地区 | Overview and notices その他概要・特記事項 | | Contact: Nakakita, Facilities: Public Water Supply, This sewage, City gas, Parking: Car Port 担当者:仲北、設備:公営水道、本下水、都市ガス、駐車場:カーポート | Company profile 会社概要 | | <Mediation> Minister of Land, Infrastructure and Transport (5) No. 005068 (Corporation) Kinki district Real Estate Fair Trade Council member Misawa Homes Kinki Ltd. Yubinbango530-0003 Osaka, Kita-ku, Osaka Dojima 2-2-2 <仲介>国土交通大臣(5)第005068号(公社)近畿地区不動産公正取引協議会会員 ミサワホーム近畿(株)〒530-0003 大阪府大阪市北区堂島2-2-2 |
Local appearance photo現地外観写真  Local (12 May 2013) Shooting
現地(2013年12月)撮影
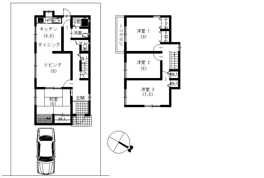
Floor plan間取り図  22,800,000 yen, 4LDK, Land area 158.13 sq m , Building area 103.5 sq m
2280万円、4LDK、土地面積158.13m2、建物面積103.5m2
Kitchenキッチン  Indoor (12 May 2013) Shooting
室内(2013年12月)撮影
Livingリビング  Indoor (12 May 2013) Shooting
室内(2013年12月)撮影
Bathroom浴室  Indoor (12 May 2013) Shooting
室内(2013年12月)撮影
Non-living roomリビング以外の居室  Indoor (12 May 2013) Shooting
室内(2013年12月)撮影
Entrance玄関  Local (12 May 2013) Shooting
現地(2013年12月)撮影
Wash basin, toilet洗面台・洗面所  Indoor (12 May 2013) Shooting
室内(2013年12月)撮影
Toiletトイレ  Indoor (12 May 2013) Shooting
室内(2013年12月)撮影
Local photos, including front road前面道路含む現地写真  Local (12 May 2013) Shooting
現地(2013年12月)撮影
Garden庭  Local (12 May 2013) Shooting
現地(2013年12月)撮影
Parking lot駐車場  Local (12 May 2013) Shooting
現地(2013年12月)撮影
View photos from the dwelling unit住戸からの眺望写真  View from the site (December 2013) Shooting
現地からの眺望(2013年12月)撮影
Non-living roomリビング以外の居室  Indoor (12 May 2013) Shooting
室内(2013年12月)撮影
 Indoor (12 May 2013) Shooting
室内(2013年12月)撮影
Primary school小学校  Fujishiro elementary school
藤城小学校
Junior high school中学校  Fujimori junior high school
藤森中学校
Location
|