|
|
Kyoto, Kyoto Prefecture Nishikyo Ku
京都府京都市西京区
|
|
Hankyu Arashiyama Line "UeKei" walk 7 minutes
阪急嵐山線「上桂」歩7分
|
|
■ Hankyu UeKei walk about 7 minutes! ■ Ceiling storage with! ■ Spacious Mato 4DK! Used in Nishikyo Ku, land, If you are looking for new construction, Familiar with local information, In Inao real estate!
■阪急上桂徒歩約7分!■天井収納庫つき!■広々間取4DK!西京区で中古、土地、新築をお探しでしたら、地域情報に詳しい、いなお不動産で!
|
|
■ Convenient shopping features ◎ Matsuo elementary school ◎ super near the property! Nishikyo Ku ・ Land in Ukyo-ku,, New construction, If you are looking for used equipment, Inao Homupeji of real estate also please visit! Our website http: / / inao170.net / Such as reservations and questions of visits 075-381-1192 Please call us feel free to!
■物件の特徴◎松尾小学校◎スーパー近くで買い物便利!西京区・右京区で土地、新築、中古物件をお探しでしたら、いなお不動産のホームーページもご覧ください!当社ホームページ http://inao170.net/ 見学のご予約やご質問などは 075-381-1192 までお気軽にお電話ください!
|
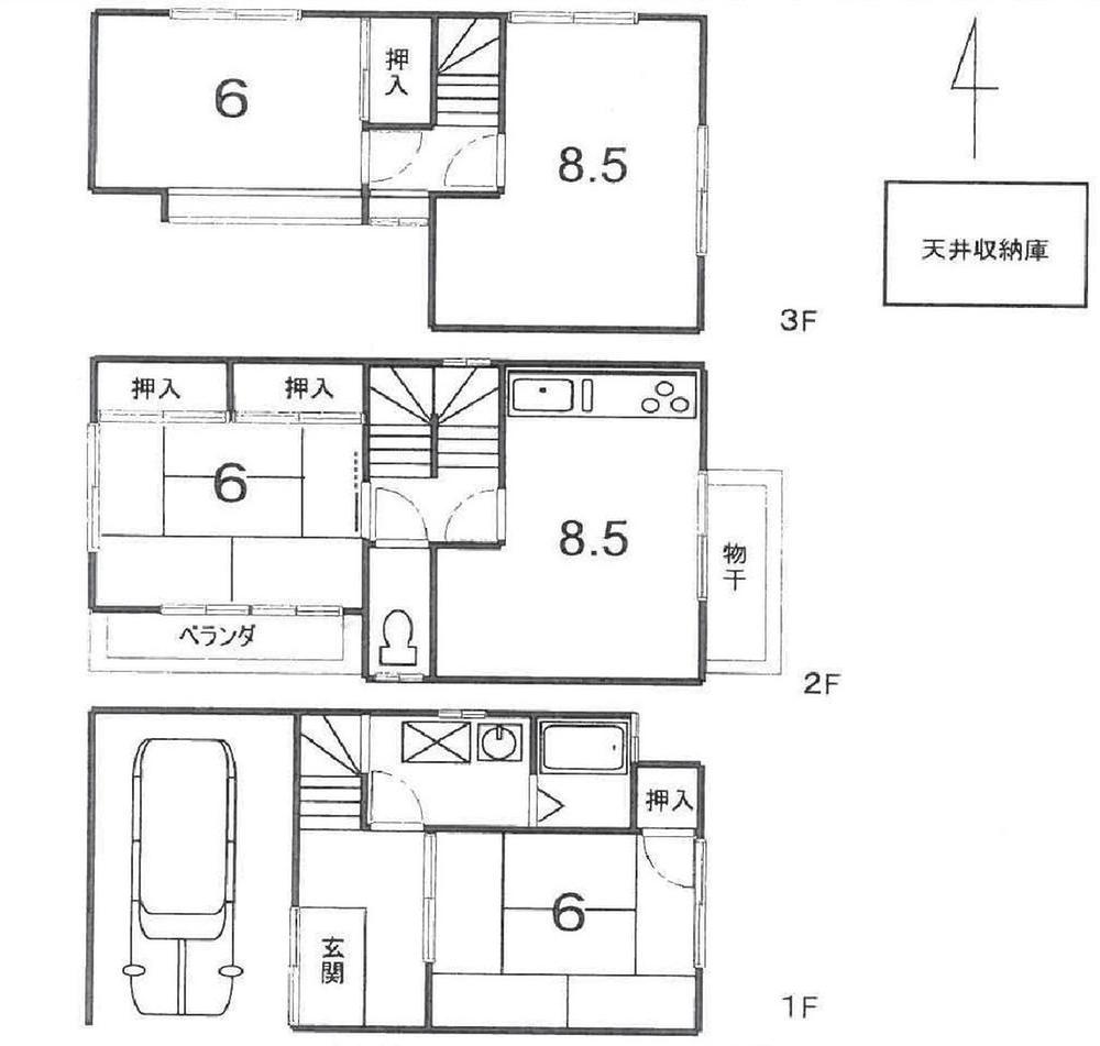
Features pickup 特徴ピックアップ | | Fiscal year Available / Yang per good / Flat to the station / Japanese-style room / Shaping land / The window in the bathroom / Three-story or more / City gas / Flat terrain / Attic storage 年度内入居可 /陽当り良好 /駅まで平坦 /和室 /整形地 /浴室に窓 /3階建以上 /都市ガス /平坦地 /屋根裏収納 |
Price 価格 | | 15.8 million yen 1580万円 |
Floor plan 間取り | | 4DK 4DK |
Units sold 販売戸数 | | 1 units 1戸 |
Total units 総戸数 | | 1 units 1戸 |
Land area 土地面積 | | 52.98 sq m (16.02 tsubo) (Registration) 52.98m2(16.02坪)(登記) |
Building area 建物面積 | | 95.68 sq m (28.94 tsubo) (Registration), Among the first floor garage 12.15 sq m 95.68m2(28.94坪)(登記)、うち1階車庫12.15m2 |
Driveway burden-road 私道負担・道路 | | 6.88 sq m , West 5m width 6.88m2、西5m幅 |
Completion date 完成時期(築年月) | | March 1993 1993年3月 |
Address 住所 | | Kyoto, Kyoto Prefecture Nishikyo Ku Matsumuroatagami cho 京都府京都市西京区松室吾田神町 |
Traffic 交通 | | Hankyu Arashiyama Line "UeKei" walk 7 minutes 阪急嵐山線「上桂」歩7分
|
Related links 関連リンク | | [Related Sites of this company] 【この会社の関連サイト】 |
Person in charge 担当者より | | Person in charge of real-estate and building Ozeki Michi彦 Age: 30 Daigyokai experience: Of course for 13 years Property, Ya that of the mortgage, Such as the flow of real estate transactions, Please contact us about anything. I kept in mind the easy-to-understand your explanation to the customer! 担当者宅建尾関 路彦年齢:30代業界経験:13年物件についてはもちろん、住宅ローンのことや、不動産取引の流れなど、どんなことでもご相談ください。お客様にわかりやすいご説明を心掛けています! |
Contact お問い合せ先 | | TEL: 0800-601-3498 [Toll free] mobile phone ・ Also available from PHS Caller ID is not notified Please contact the "saw SUUMO (Sumo)" If it does not lead, If the real estate company TEL:0800-601-3498【通話料無料】携帯電話・PHSからもご利用いただけます 発信者番号は通知されません 「SUUMO(スーモ)を見た」と問い合わせください つながらない方、不動産会社の方は
|
Building coverage, floor area ratio 建ぺい率・容積率 | | 60% ・ 200% 60%・200% |
Time residents 入居時期 | | March 2014 schedule 2014年3月予定 |
Land of the right form 土地の権利形態 | | Ownership 所有権 |
Structure and method of construction 構造・工法 | | Wooden three-story (framing method) 木造3階建(軸組工法) |
Use district 用途地域 | | One middle and high 1種中高 |
Overview and notices その他概要・特記事項 | | Person in charge: Ozeki Michi彦, Facilities: Public Water Supply, This sewage, City gas, Parking: Garage 担当者:尾関 路彦、設備:公営水道、本下水、都市ガス、駐車場:車庫 |
Company profile 会社概要 | | <Mediation> Governor of Kyoto Prefecture (2) the first 012,327 No. Ino real estate (with) Yubinbango615-8283 Kyoto, Kyoto Prefecture Nishikyo Ku Matsuoido-cho, 11 <仲介>京都府知事(2)第012327号稲生不動産(有)〒615-8283 京都府京都市西京区松尾井戸町11 |