|
|
Kyoto, Kyoto Prefecture Sakyo-ku
京都府京都市左京区
|
|
Keihan Ōtō Line "Demachiyanagi" bus 25 Buntoterafu 8 minutes
京阪鴨東線「出町柳」バス25分戸寺歩8分
|
Price 価格 | | 37 million yen 3700万円 |
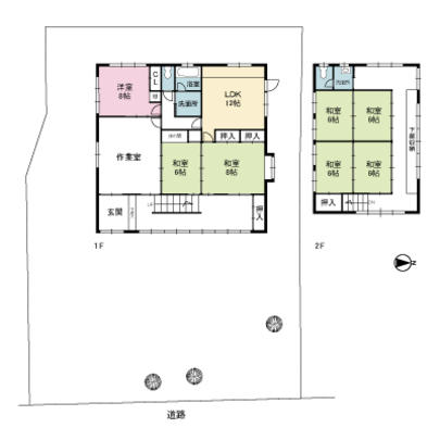
Floor plan 間取り | | 7LDK 7LDK |
Units sold 販売戸数 | | 1 units 1戸 |
Land area 土地面積 | | 519 sq m (registration) 519m2(登記) |
Building area 建物面積 | | 237.8 sq m (registration) 237.8m2(登記) |
Driveway burden-road 私道負担・道路 | | Nothing, East 3m width (contact the road width 21m), North 1.8m width 無、東3m幅(接道幅21m)、北1.8m幅 |
Completion date 完成時期(築年月) | | January 1973 1973年1月 |
Address 住所 | | Kyoto, Kyoto Prefecture Sakyo-ku Oharaide cho 京都府京都市左京区大原井出町 |
Traffic 交通 | | Keihan Ōtō Line "Demachiyanagi" bus 25 Buntoterafu 8 minutes 京阪鴨東線「出町柳」バス25分戸寺歩8分
|
Person in charge 担当者より | | Rep Okamura Nobuhiro 担当者岡村 信宏 |
Contact お問い合せ先 | | Sumitomo Mitsui Trust Real Estate Co., Ltd. Kyotokita Center TEL: 075-707-6831 Please inquire as "saw SUUMO (Sumo)" 三井住友トラスト不動産(株)京都北センターTEL:075-707-6831「SUUMO(スーモ)を見た」と問い合わせください |
Building coverage, floor area ratio 建ぺい率・容積率 | | 30% ・ Hundred percent 30%・100% |
Time residents 入居時期 | | Consultation 相談 |
Land of the right form 土地の権利形態 | | Ownership 所有権 |
Structure and method of construction 構造・工法 | | Wooden 2-story 木造2階建 |
Use district 用途地域 | | Urbanization control area 市街化調整区域 |
Other limitations その他制限事項 | | For the house that was existing in the previous drawing of city planning area, Use ・ Although there are limits to the scale, You can re-architecture. 都市計画区域の線引き以前に現存した家屋の為、用途・規模に制限はありますが、再建築可能です。 |
Overview and notices その他概要・特記事項 | | Contact: Okamura Nobuhiro, Parking: car space 担当者:岡村 信宏、駐車場:カースペース |
Company profile 会社概要 | | <Mediation> Minister of Land, Infrastructure and Transport (8) No. 003397 No. Sumitomo Mitsui Trust Real Estate Co., Ltd. Kyotokita center Yubinbango606-0835 Kyoto, Sakyo-ku, Kyoto Shimogamokodono cho 20-2 Eden Shimogamo 1F <仲介>国土交通大臣(8)第003397号三井住友トラスト不動産(株)京都北センター〒606-0835 京都府京都市左京区下鴨神殿町20-2 エデン下鴨1F |