Used Homes » Kansai » Kyoto » Sakyo
 
| | Kyoto, Kyoto Prefecture Sakyo-ku 京都府京都市左京区 |
| Subway Karasuma Line "International House" bus 7 Bun'ue Ayumi Hase 10 minutes 地下鉄烏丸線「国際会館」バス7分上長谷歩10分 |
Features pickup 特徴ピックアップ | | Parking two Allowed / LDK20 tatami mats or more / Land more than 100 square meters / System kitchen / Yang per good / A quiet residential area / Starting station / Shaping land / Garden more than 10 square meters / garden / Shutter - garage / Bathroom 1 tsubo or more / 2-story / South balcony / Atrium / Ventilation good / Dish washing dryer / Walk-in closet / Whirlpool / Located on a hill / terrace 駐車2台可 /LDK20畳以上 /土地100坪以上 /システムキッチン /陽当り良好 /閑静な住宅地 /始発駅 /整形地 /庭10坪以上 /庭 /シャッタ-車庫 /浴室1坪以上 /2階建 /南面バルコニー /吹抜け /通風良好 /食器洗乾燥機 /ウォークインクロゼット /ジェットバス /高台に立地 /テラス | Price 価格 | | 54,800,000 yen 5480万円 | Floor plan 間取り | | 4LDK 4LDK | Units sold 販売戸数 | | 1 units 1戸 | Land area 土地面積 | | 366.58 sq m (registration) 366.58m2(登記) | Building area 建物面積 | | 184.43 sq m (registration) 184.43m2(登記) | Driveway burden-road 私道負担・道路 | | Nothing, East 6m width (contact the road width 25m) 無、東6m幅(接道幅25m) | Completion date 完成時期(築年月) | | February 2004 2004年2月 | Address 住所 | | Kyoto, Kyoto Prefecture Sakyo-ku Iwakuranagatani cho 京都府京都市左京区岩倉長谷町 | Traffic 交通 | | Subway Karasuma Line "International House" bus 7 Bun'ue Ayumi Hase 10 minutes 地下鉄烏丸線「国際会館」バス7分上長谷歩10分
| Contact お問い合せ先 | | Sumitomo Forestry Home Service Co., Ltd. Kyoto shop TEL: 0800-603-0271 [Toll free] mobile phone ・ Also available from PHS Caller ID is not notified Please contact the "saw SUUMO (Sumo)" If it does not lead, If the real estate company 住友林業ホームサービス(株)京都店TEL:0800-603-0271【通話料無料】携帯電話・PHSからもご利用いただけます 発信者番号は通知されません 「SUUMO(スーモ)を見た」と問い合わせください つながらない方、不動産会社の方は
| Building coverage, floor area ratio 建ぺい率・容積率 | | 30% ・ 60% 30%・60% | Land of the right form 土地の権利形態 | | Ownership 所有権 | Structure and method of construction 構造・工法 | | Wooden 2-story 木造2階建 | Use district 用途地域 | | One low-rise 1種低層 | Overview and notices その他概要・特記事項 | | Facilities: Public Water Supply, This sewage, City gas, Parking: Garage 設備:公営水道、本下水、都市ガス、駐車場:車庫 | Company profile 会社概要 | | <Mediation> Minister of Land, Infrastructure and Transport (14) Article 000220 No. Sumitomo Forestry Home Service Co., Ltd. Kyoto shop Yubinbango606-0817 Kyoto, Sakyo-ku, Kyoto Shimogamonishibayashi-cho, 5-1 <仲介>国土交通大臣(14)第000220号住友林業ホームサービス(株)京都店〒606-0817 京都府京都市左京区下鴨西林町5-1 |
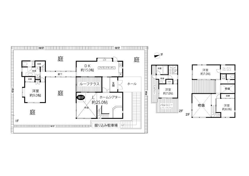
Floor plan間取り図  54,800,000 yen, 4LDK, Land area 366.58 sq m , Building area 184.43 sq m
5480万円、4LDK、土地面積366.58m2、建物面積184.43m2
Local appearance photo現地外観写真  Local (August 2013) Shooting
現地(2013年8月)撮影
Livingリビング  Room (August 2013) Shooting
室内(2013年8月)撮影
 Room (August 2013) Shooting
室内(2013年8月)撮影
Bathroom浴室  Room (August 2013) Shooting
室内(2013年8月)撮影
Kitchenキッチン  Room (August 2013) Shooting
室内(2013年8月)撮影
Location
|