|
|
Kyoto, Kyoto Prefecture Sakyo-ku
京都府京都市左京区
|
|
Subway Karasuma Line "International House" walk 10 minutes
地下鉄烏丸線「国際会館」歩10分
|
|
Super "Fresco Kamikoya store" walk about 3 minutes south-facing ・ 1BOX can park ・ 2WAY access
スーパー「フレスコ上高野店」徒歩約3分南向き・1BOX駐車可能・2WAYアクセス
|
|
Kamikoya Small ・ Medium Shugakuin
上高野小・修学院中
|
Features pickup 特徴ピックアップ | | Year Available / 2 along the line more accessible / Siemens south road / Starting station / Three-story or more / City gas 年内入居可 /2沿線以上利用可 /南側道路面す /始発駅 /3階建以上 /都市ガス |
Price 価格 | | 20,900,000 yen 2090万円 |
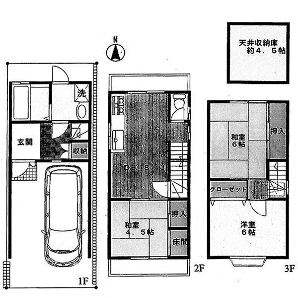
Floor plan 間取り | | 3DK 3DK |
Units sold 販売戸数 | | 1 units 1戸 |
Land area 土地面積 | | 41.29 sq m (registration) 41.29m2(登記) |
Building area 建物面積 | | 81 sq m 81m2 |
Driveway burden-road 私道負担・道路 | | Nothing, South 4m width (contact the road width 4.4m) 無、南4m幅(接道幅4.4m) |
Completion date 完成時期(築年月) | | April 1995 1995年4月 |
Address 住所 | | Kyoto, Kyoto Prefecture Sakyo-ku Kamitakanosatta cho 京都府京都市左京区上高野薩田町 |
Traffic 交通 | | Subway Karasuma Line "International House" walk 10 minutes Eizan Electric Railway Kuramasen "Yawatamae" walk 4 minutes 地下鉄烏丸線「国際会館」歩10分 叡山電鉄鞍馬線「八幡前」歩4分
|
Related links 関連リンク | | [Related Sites of this company] 【この会社の関連サイト】 |
Contact お問い合せ先 | | Century 21 House net Kansai Co., Ltd. Shimogamo shop TEL: 0800-603-3046 [Toll free] mobile phone ・ Also available from PHS Caller ID is not notified Please contact the "saw SUUMO (Sumo)" If it does not lead, If the real estate company センチュリー21ハウスネット関西(株)下鴨店TEL:0800-603-3046【通話料無料】携帯電話・PHSからもご利用いただけます 発信者番号は通知されません 「SUUMO(スーモ)を見た」と問い合わせください つながらない方、不動産会社の方は
|
Building coverage, floor area ratio 建ぺい率・容積率 | | 40% ・ 200% 40%・200% |
Time residents 入居時期 | | July 2014 plan 2014年7月予定 |
Land of the right form 土地の権利形態 | | Ownership 所有権 |
Structure and method of construction 構造・工法 | | Wooden three-story 木造3階建 |
Use district 用途地域 | | Two mid-high 2種中高 |
Other limitations その他制限事項 | | International Hall Station walking distance. Supermarkets and convenience stores, Convenience also nearby, such as home improvement! 国際会館駅徒歩圏です。スーパーやコンビニ、ホームセンターなども近く便利! |
Overview and notices その他概要・特記事項 | | Facilities: Public Water Supply, City gas 設備:公営水道、都市ガス |
Company profile 会社概要 | | <Mediation> Governor of Kyoto Prefecture (2) the first 011,266 No. Century 21 House net Kansai Co., Ltd. Shimogamo shop Yubinbango606-0826 Kyoto, Sakyo-ku, Kyoto Shimogamonishimoto-cho, 27 <仲介>京都府知事(2)第011266号センチュリー21ハウスネット関西(株)下鴨店〒606-0826 京都府京都市左京区下鴨西本町27 |