|
|
Kyoto, Kyoto Prefecture Ukyo-ku,
京都府京都市右京区
|
|
Keifuku railway Arashiyamahonsen "Kurumaori Shrine" walk 3 minutes
京福電鉄嵐山本線「車折神社」歩3分
|
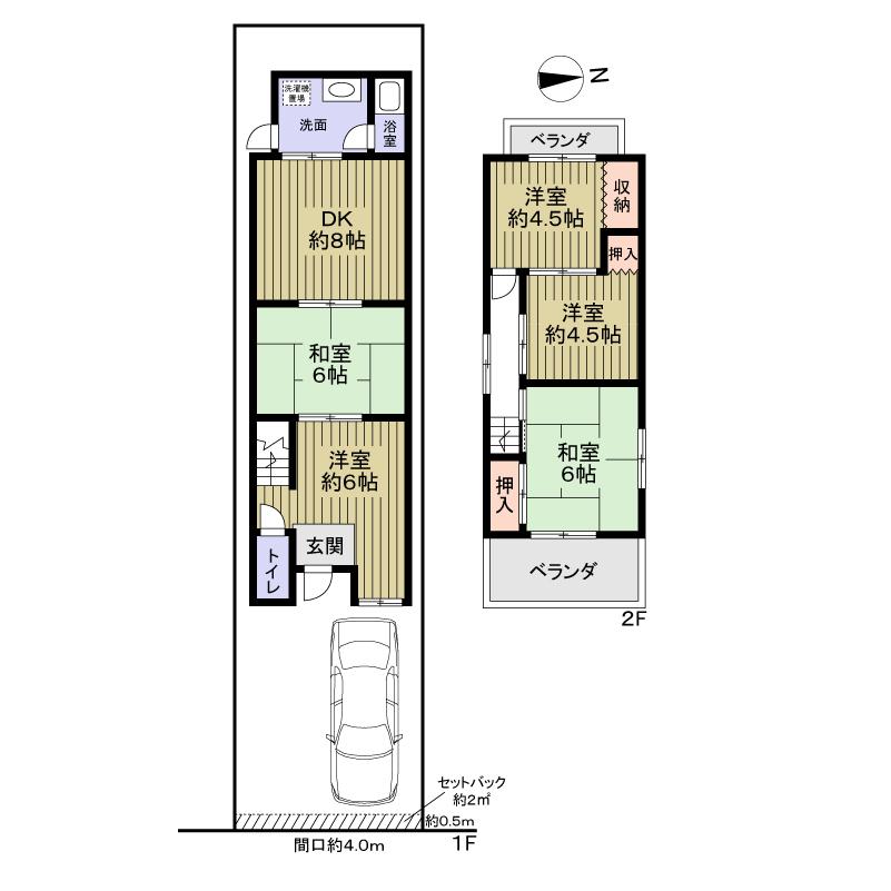
Price 価格 | | 19.5 million yen 1950万円 |
Floor plan 間取り | | 5DK 5DK |
Units sold 販売戸数 | | 1 units 1戸 |
Land area 土地面積 | | 70.15 sq m (registration) 70.15m2(登記) |
Building area 建物面積 | | 77.12 sq m (registration) 77.12m2(登記) |
Driveway burden-road 私道負担・道路 | | 8 sq m , East 3m width (contact the road width 4m) 8m2、東3m幅(接道幅4m) |
Completion date 完成時期(築年月) | | December 1975 1975年12月 |
Address 住所 | | Kyoto, Kyoto Prefecture Ukyo-ku, Sagaorito cho 京都府京都市右京区嵯峨折戸町 |
Traffic 交通 | | Keifuku railway Arashiyamahonsen "Kurumaori Shrine" walk 3 minutes 京福電鉄嵐山本線「車折神社」歩3分
|
Related links 関連リンク | | [Related Sites of this company] 【この会社の関連サイト】 |
Person in charge 担当者より | | Rep Takagi Toshinori 担当者高木 俊典 |
Contact お問い合せ先 | | Sumitomo Forestry Home Service Co., Ltd. Kyoto shop TEL: 0800-603-0271 [Toll free] mobile phone ・ Also available from PHS Caller ID is not notified Please contact the "saw SUUMO (Sumo)" If it does not lead, If the real estate company 住友林業ホームサービス(株)京都店TEL:0800-603-0271【通話料無料】携帯電話・PHSからもご利用いただけます 発信者番号は通知されません 「SUUMO(スーモ)を見た」と問い合わせください つながらない方、不動産会社の方は
|
Building coverage, floor area ratio 建ぺい率・容積率 | | 60% ・ 200% 60%・200% |
Time residents 入居時期 | | 1 month after the contract 契約後1ヶ月 |
Land of the right form 土地の権利形態 | | Ownership 所有権 |
Structure and method of construction 構造・工法 | | Wooden 2-story 木造2階建 |
Renovation リフォーム | | December 2013 interior renovation completed (wall ・ floor) 2013年12月内装リフォーム済(壁・床) |
Use district 用途地域 | | One middle and high 1種中高 |
Overview and notices その他概要・特記事項 | | Contact: Takagi Toshinori, Facilities: Public Water Supply, This sewage, City gas, Parking: car space 担当者:高木 俊典、設備:公営水道、本下水、都市ガス、駐車場:カースペース |
Company profile 会社概要 | | <Mediation> Minister of Land, Infrastructure and Transport (14) Article 000220 No. Sumitomo Forestry Home Service Co., Ltd. Kyoto shop Yubinbango606-0817 Kyoto, Sakyo-ku, Kyoto Shimogamonishibayashi-cho, 5-1 <仲介>国土交通大臣(14)第000220号住友林業ホームサービス(株)京都店〒606-0817 京都府京都市左京区下鴨西林町5-1 |