1980December
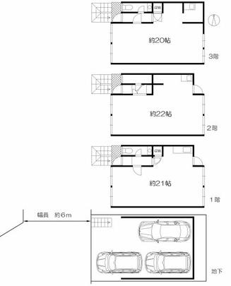
25 million yen, 3K, 151.04 sq m
Used Homes » Kansai » Kyoto » Ukyo-ku

| | Kyoto, Kyoto Prefecture Ukyo-ku, 京都府京都市右京区 |
| Hankyu Kyoto Line "Saiin" walk 10 minutes 阪急京都線「西院」歩10分 |
Price 価格 | | 25 million yen 2500万円 | Floor plan 間取り | | 3K 3K | Units sold 販売戸数 | | 1 units 1戸 | Land area 土地面積 | | 63.66 sq m (registration) 63.66m2(登記) | Building area 建物面積 | | 151.04 sq m (registration) 151.04m2(登記) | Driveway burden-road 私道負担・道路 | | Nothing, West 6m width (contact the road width 6m) 無、西6m幅(接道幅6m) | Completion date 完成時期(築年月) | | December 1980 1980年12月 | Address 住所 | | Kyoto, Kyoto Prefecture Ukyo-ku, Saiin'nishitakada cho 京都府京都市右京区西院西高田町 | Traffic 交通 | | Hankyu Kyoto Line "Saiin" walk 10 minutes 阪急京都線「西院」歩10分
| Person in charge 担当者より | | The person in charge Tsuda Akira 担当者津田 哲 | Contact お問い合せ先 | | TEL: 0800-603-0981 [Toll free] mobile phone ・ Also available from PHS Caller ID is not notified Please contact the "saw SUUMO (Sumo)" If it does not lead, If the real estate company TEL:0800-603-0981【通話料無料】携帯電話・PHSからもご利用いただけます 発信者番号は通知されません 「SUUMO(スーモ)を見た」と問い合わせください つながらない方、不動産会社の方は
| Building coverage, floor area ratio 建ぺい率・容積率 | | 60% ・ 200% 60%・200% | Time residents 入居時期 | | Consultation 相談 | Land of the right form 土地の権利形態 | | Ownership 所有権 | Structure and method of construction 構造・工法 | | Steel 3 floors 1 underground story 鉄骨3階地下1階建 | Use district 用途地域 | | Semi-industrial 準工業 | Overview and notices その他概要・特記事項 | | Contact: Tsuda Akira, Parking: car space 担当者:津田 哲、駐車場:カースペース | Company profile 会社概要 | | <Mediation> Minister of Land, Infrastructure and Transport (11) 358 Urbanex down the 002,343 No. Kansai Sekiwa Real Estate Co., Ltd. Kyoto office Yubinbango604-0091 Oike Karasuma Nakagyo-ku Kyoto, Kyoto Prefecture Umeya cho Oike building west Museum 7F <仲介>国土交通大臣(11)第002343号積和不動産関西(株)京都営業所〒604-0091 京都府京都市中京区梅屋町烏丸御池下る358 アーバネックス御池ビル西館7F |
 Floor plan
間取り図
Location
|