|
|
Kyoto-shi, Kyoto Yamashina-ku,
京都府京都市山科区
|
|
Keihan Keishin "Shinomiya" walk 13 minutes
京阪京津線「四宮」歩13分
|
|
It is close to Otowa hospital! !
音羽病院の近くです!!
|
|
Otsuka Elementary School ・ Otowa junior high school ※ Building coverage over
大塚小学校 ・ 音羽中学校※建蔽率オーバー
|
Features pickup 特徴ピックアップ | | It is close to the city / Japanese-style room / Three-story or more / City gas 市街地が近い /和室 /3階建以上 /都市ガス |
Price 価格 | | 9.8 million yen 980万円 |
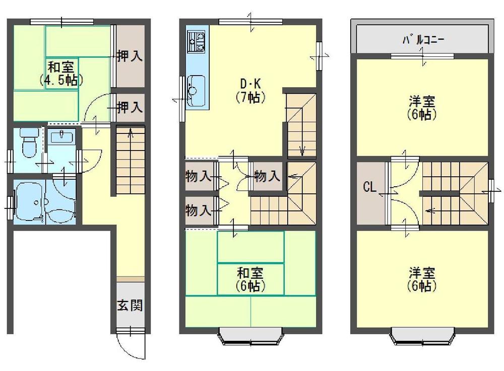
Floor plan 間取り | | 4DK 4DK |
Units sold 販売戸数 | | 1 units 1戸 |
Land area 土地面積 | | 43.3 sq m (registration) 43.3m2(登記) |
Building area 建物面積 | | 82.78 sq m (registration) 82.78m2(登記) |
Driveway burden-road 私道負担・道路 | | Nothing, North 5.7m width 無、北5.7m幅 |
Completion date 完成時期(築年月) | | May 1992 1992年5月 |
Address 住所 | | Kyoto-shi, Kyoto Yamashina-ku Koyamakitamizo cho 京都府京都市山科区小山北溝町 |
Traffic 交通 | | Keihan Keishin "Shinomiya" walk 13 minutes 京阪京津線「四宮」歩13分
|
Related links 関連リンク | | [Related Sites of this company] 【この会社の関連サイト】 |
Contact お問い合せ先 | | Endless real estate sales (Ltd.) TEL: 0800-808-4938 [Toll free] mobile phone ・ Also available from PHS Caller ID is not notified Please contact the "saw SUUMO (Sumo)" If it does not lead, If the real estate company エンドレス不動産販売(株)TEL:0800-808-4938【通話料無料】携帯電話・PHSからもご利用いただけます 発信者番号は通知されません 「SUUMO(スーモ)を見た」と問い合わせください つながらない方、不動産会社の方は
|
Building coverage, floor area ratio 建ぺい率・容積率 | | 60% ・ 200% 60%・200% |
Time residents 入居時期 | | Consultation 相談 |
Land of the right form 土地の権利形態 | | Ownership 所有権 |
Structure and method of construction 構造・工法 | | Wooden three-story 木造3階建 |
Use district 用途地域 | | One middle and high 1種中高 |
Overview and notices その他概要・特記事項 | | Facilities: Public Water Supply, This sewage, City gas, Parking: Car Port 設備:公営水道、本下水、都市ガス、駐車場:カーポート |
Company profile 会社概要 | | <Mediation> Governor of Kyoto Prefecture (1) endless real estate sales. No. 013,038 (Ltd.) Yubinbango607-8142 Kyoto-shi, Kyoto Yamashina-ku Higashinonakainoue cho 7-68 <仲介>京都府知事(1)第013038号エンドレス不動産販売(株)〒607-8142 京都府京都市山科区東野中井ノ上町7-68 |