|
|
Kyoto Prefecture Muko
京都府向日市
|
|
Hankyu Kyoto Line "Nishimuko" walk 7 minutes
阪急京都線「西向日」歩7分
|
|
Land 59.94 square meters! Hankyu Nishi-Mukō Station walk about 7 minutes!
土地59.94坪!阪急西向日駅徒歩約7分!
|
|
It is a quiet residential area of low-rise housing!
低層住居の閑静な住宅街です!
|
Features pickup 特徴ピックアップ | | Land 50 square meters or more / A quiet residential area / Or more before road 6m / 2-story / All room 6 tatami mats or more / City gas 土地50坪以上 /閑静な住宅地 /前道6m以上 /2階建 /全居室6畳以上 /都市ガス |
Price 価格 | | 35,500,000 yen 3550万円 |
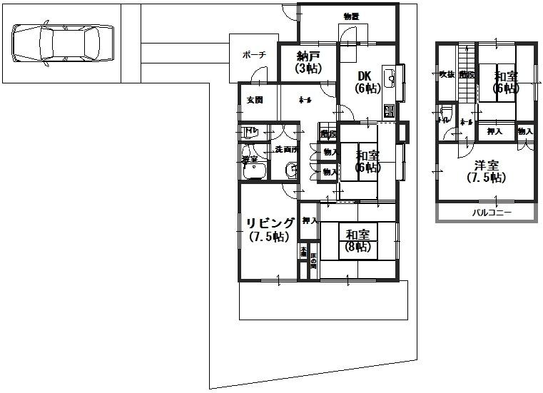
Floor plan 間取り | | 4LDK + S (storeroom) 4LDK+S(納戸) |
Units sold 販売戸数 | | 1 units 1戸 |
Land area 土地面積 | | 198.16 sq m (registration) 198.16m2(登記) |
Building area 建物面積 | | 113.31 sq m (registration) 113.31m2(登記) |
Driveway burden-road 私道負担・道路 | | Nothing, West 6.8m width (contact the road width 3m) 無、西6.8m幅(接道幅3m) |
Completion date 完成時期(築年月) | | May 1982 1982年5月 |
Address 住所 | | Aranai Kyoto Muko Kaide-cho 京都府向日市鶏冠井町荒内 |
Traffic 交通 | | Hankyu Kyoto Line "Nishimuko" walk 7 minutes Hankyu Kyoto Line "Higashimuko" walk 17 minutes JR Tokaido Line "Muko town" walk 19 minutes 阪急京都線「西向日」歩7分 阪急京都線「東向日」歩17分 JR東海道本線「向日町」歩19分
|
Related links 関連リンク | | [Related Sites of this company] 【この会社の関連サイト】 |
Person in charge 担当者より | | Person in charge of real-estate and building Takada Takashi Age: 40 Daigyokai experience: according to the lifestyle of 15 years your family, By we are allowed to help your house hunting, Family has reunion As you think that "It was good to purchase the My Home", We try to feel free to Tachiyoreru store development and fresh information. 担当者宅建高田 隆史年齢:40代業界経験:15年ご家族のライフスタイルに応じた、お家探しのお手伝いをさせていただく事で、家族が団らんし『マイホームを購入して良かった』と思っていただけるよう、新鮮な情報と気軽に立ち寄れる店づくりを心掛けています。 |
Contact お問い合せ先 | | TEL: 0800-808-7297 [Toll free] mobile phone ・ Also available from PHS Caller ID is not notified Please contact the "saw SUUMO (Sumo)" If it does not lead, If the real estate company TEL:0800-808-7297【通話料無料】携帯電話・PHSからもご利用いただけます 発信者番号は通知されません 「SUUMO(スーモ)を見た」と問い合わせください つながらない方、不動産会社の方は
|
Building coverage, floor area ratio 建ぺい率・容積率 | | Fifty percent ・ 80% 50%・80% |
Time residents 入居時期 | | Consultation 相談 |
Land of the right form 土地の権利形態 | | Ownership 所有権 |
Structure and method of construction 構造・工法 | | Wooden 2-story 木造2階建 |
Use district 用途地域 | | One low-rise 1種低層 |
Overview and notices その他概要・特記事項 | | Contact: Takada Takashi, Facilities: Public Water Supply, This sewage, City gas, Parking: car space 担当者:高田 隆史、設備:公営水道、本下水、都市ガス、駐車場:カースペース |
Company profile 会社概要 | | <Mediation> Governor of Kyoto Prefecture (1) No. 013109 (Ltd.) Life ・ Stage Yubinbango617-0002 Kyoto Muko Terato cho Tatsumi 22-1 <仲介>京都府知事(1)第013109号(株)ライフ・ステージ〒617-0002 京都府向日市寺戸町辰巳22-1 |