Used Homes » Kansai » Kyoto » Nishikyo Ku
 
| | Kyoto, Kyoto Prefecture Nishikyo Ku 京都府京都市西京区 |
| Hankyu Arashiyama Line "UeKei" walk 6 minutes 阪急嵐山線「上桂」歩6分 |
| Station near properties of the upper Katsura Station 6-minute walk! ! Shopping facilities ・ Such as the hospital is close to life convenient location 上桂駅徒歩6分の駅近物件!!買い物施設・病院などが近く生活便利地です |
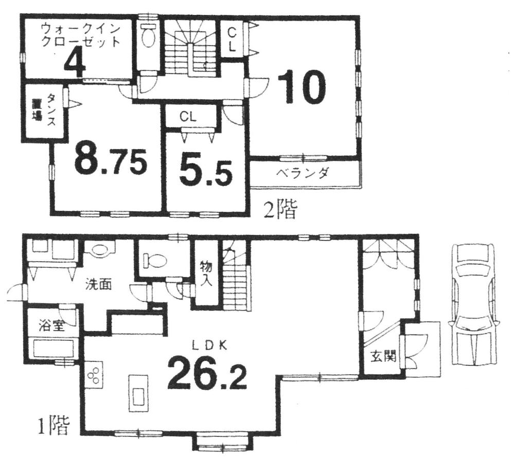
| Spacious living room is there a feeling of opening has a size of about 26 quires. It has become an island kitchen, Because of child care Ya make the dishes while overlooking the surrounding area, You can also washing while watching TV. Also LDK, so we spacious 26 Pledge, Home party at your home Ya, Why is such a little cooking classes? 広々としたリビングは約26帖の大きさとなっており開放感あります。アイランドキッチンとなっており、周囲を見渡しながらお料理を作れますのでお子様のお世話や、テレビを見ながらの洗い物もできます。またLDKは26帖と広々しておりますので、ご自宅でのホームパーティーや、ちょっとしたお料理教室などはいかがでしょうか? |
Features pickup 特徴ピックアップ | | LDK20 tatami mats or more / Super close / A quiet residential area / Around traffic fewer / Or more before road 6m / Corner lot / Face-to-face kitchen / Security enhancement / Toilet 2 places / 2-story / South balcony / Walk-in closet / City gas / Floor heating LDK20畳以上 /スーパーが近い /閑静な住宅地 /周辺交通量少なめ /前道6m以上 /角地 /対面式キッチン /セキュリティ充実 /トイレ2ヶ所 /2階建 /南面バルコニー /ウォークインクロゼット /都市ガス /床暖房 | Price 価格 | | 45,800,000 yen 4580万円 | Floor plan 間取り | | 3LDK 3LDK | Units sold 販売戸数 | | 1 units 1戸 | Total units 総戸数 | | 1 units 1戸 | Land area 土地面積 | | 132.2 sq m (registration) 132.2m2(登記) | Building area 建物面積 | | 105 sq m (registration) 105m2(登記) | Driveway burden-road 私道負担・道路 | | Nothing, East 6m width, South 6m width 無、東6m幅、南6m幅 | Completion date 完成時期(築年月) | | May 2001 2001年5月 | Address 住所 | | Kyoto, Kyoto Prefecture Nishikyo Ku Kamikatsurasan'nomiya cho 京都府京都市西京区上桂三ノ宮町 | Traffic 交通 | | Hankyu Arashiyama Line "UeKei" walk 6 minutes Kyoto City bus "Heiwadai the town stop" walk 3 minutes 阪急嵐山線「上桂」歩6分 京都市バス「平和台町停」歩3分 | Contact お問い合せ先 | | TEL: 0800-603-2454 [Toll free] mobile phone ・ Also available from PHS Caller ID is not notified Please contact the "saw SUUMO (Sumo)" If it does not lead, If the real estate company TEL:0800-603-2454【通話料無料】携帯電話・PHSからもご利用いただけます 発信者番号は通知されません 「SUUMO(スーモ)を見た」と問い合わせください つながらない方、不動産会社の方は
| Building coverage, floor area ratio 建ぺい率・容積率 | | 60% ・ 80% 60%・80% | Time residents 入居時期 | | Immediate available 即入居可 | Land of the right form 土地の権利形態 | | Ownership 所有権 | Structure and method of construction 構造・工法 | | Wooden 2-story 木造2階建 | Use district 用途地域 | | One low-rise 1種低層 | Other limitations その他制限事項 | | Landscape design conservation area ・ Outdoor Advertisement roadside type second kind area ・ Second floor extension unregistered part Yes 遠景デザイン保全区域・屋外広告物沿道型第2種地域・2階部分増築未登記部分有 | Overview and notices その他概要・特記事項 | | Facilities: Public Water Supply, This sewage, City gas, Parking: car space 設備:公営水道、本下水、都市ガス、駐車場:カースペース | Company profile 会社概要 | | <Mediation> Minister of Land, Infrastructure and Transport (5) Article 005298 No. Kent home sales (Ltd.) Katsuramise Yubinbango615-8191 Kyoto, Kyoto Prefecture Nishikyo Ku Kawashimaarisugawa-cho, 18 <仲介>国土交通大臣(5)第005298号建都住宅販売(株)桂店〒615-8191 京都府京都市西京区川島有栖川町18 |
Local appearance photo現地外観写真  Local (July 2013) Shooting
現地(2013年7月)撮影
Floor plan間取り図  45,800,000 yen, 3LDK, Land area 132.2 sq m , Building area 105 sq m
4580万円、3LDK、土地面積132.2m2、建物面積105m2
Local appearance photo現地外観写真  Local (July 2013) Shooting
現地(2013年7月)撮影
Local photos, including front road前面道路含む現地写真  Local (July 2013) Shooting
現地(2013年7月)撮影
Local appearance photo現地外観写真  Local (July 2013) Shooting
現地(2013年7月)撮影
Station駅  510m to Hankyu above Katsura Station
阪急上桂駅まで510m
Supermarketスーパー  Shop until Article 5 390m
ショップ5条まで390m
 540m until Gourmet City UeKei shop
グルメシティ上桂店まで540m
Primary school小学校  Katsura River until the elementary school 1260m
桂川小学校まで1260m
Bank銀行  Kyoto Chuo Shinkin Bank UeKei to the branch 610m
京都中央信用金庫上桂支店まで610m
Post office郵便局  560m to Kyoto UeKei post office
京都上桂郵便局まで560m
Location
|