Used Homes » Kansai » Kyoto » Uji


Kyoto Uji
JR Nara Line "Nitta" walk 9 minutes
Daikai elementary school, Hirono junior high school March 2005 renovated ◆ All rooms Cross Chokawa ◆ All Japanese-style tatami mat replacement ◆ kitchen ・ Bathroom had made ◆ House cleaning
Features pickup
2 along the line more accessible / Yang per good / All room storage / A quiet residential area / Japanese-style room / Toilet 2 places / 2-story / 2 or more sides balcony / All room 6 tatami mats or more / City gas
Price
14.3 million yen
Floor plan
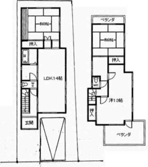
3LDK
Units sold
1 units
Land area
104.69 sq m (31.66 tsubo) (Registration)
Building area
101.79 sq m (30.79 square meters)
Driveway burden-road
Nothing, West 5m width
Completion date
February 1989
Address
Kyoto Uji City, Hirono Town, small Neo
Traffic
JR Nara Line "Nitta" walk 9 minutes
Kintetsu Kyoto Line "Okubo" walk 13 minutes
Contact
TEL: 0800-603-2828 [Toll free] mobile phone ・ Also available from PHS
Caller ID is not notified
Please contact the "saw SUUMO (Sumo)"
If it does not lead, If the real estate company
Building coverage, floor area ratio
60% ・ Hundred percent
Time residents
Consultation
Land of the right form
Ownership
Structure and method of construction
Wooden 2-story
Use district
One low-rise
Overview and notices
Facilities: Public Water Supply, This sewage, City gas, Parking: car space
Company profile
<Mediation> Minister of Land, Infrastructure and Transport (8) No. 003251 No. Shikishima living Research Co., Ltd. Kyoto branch Yubinbango610-0121 Joyo City, Kyoto Prefecture Terada Toishiri 18-16


Local appearance photo

Local appearance photo. Local (March 2013) Shooting
Local (March 2013) Shooting

Floor plan

Floor plan. 14.3 million yen, 3LDK, Land area 104.69 sq m , Building area 101.79 sq m
14.3 million yen, 3LDK, Land area 104.69 sq m , Building area 101.79 sq m

Other local

Other local. Local (March 2013) Shooting
Local (March 2013) Shooting

Shopping centre

Shopping centre. Izumiya 1828m until Okubo shopping center
Izumiya 1828m until Okubo shopping center

Government office

Government office. Uji 1812m to city hall
Uji 1812m to city hall

Police station ・ Police box

Police station ・ Police box. Uji police station
Uji police station

Post office

post office. Uji post office
Uji post office

Other Environmental Photo

Other Environmental Photo. Taiyogaoka
Taiyogaoka

Station

station. Kintetsu Okubo Station
Kintetsu Okubo Station

Supermarket

Supermarket. Harvesting
Harvesting



Location