1983July
14 million yen, 4LDK, 86.94 sq m
Used Homes » Kansai » Kyoto » Uji
 
| | Kyoto Uji 京都府宇治市 |
| Subway Tozai Line "Ishida" walk 10 minutes 地下鉄東西線「石田」歩10分 |
| Kobata elementary school ・ Kobata junior high school 木幡小学校・木幡中学校 |
Features pickup 特徴ピックアップ | | Yang per good / A quiet residential area / Japanese-style room / 2-story / Southeast direction / The window in the bathroom / All room 6 tatami mats or more / City gas 陽当り良好 /閑静な住宅地 /和室 /2階建 /東南向き /浴室に窓 /全居室6畳以上 /都市ガス | Price 価格 | | 14 million yen 1400万円 | Floor plan 間取り | | 4LDK 4LDK | Units sold 販売戸数 | | 1 units 1戸 | Land area 土地面積 | | 106.24 sq m (32.13 tsubo) (Registration) 106.24m2(32.13坪)(登記) | Building area 建物面積 | | 86.94 sq m (26.29 tsubo) (Registration) 86.94m2(26.29坪)(登記) | Driveway burden-road 私道負担・道路 | | Nothing, Southeast 5m width 無、南東5m幅 | Completion date 完成時期(築年月) | | July 1983 1983年7月 | Address 住所 | | Kyoto Uji Kobata Hirao 京都府宇治市木幡平尾 | Traffic 交通 | | Subway Tozai Line "Ishida" walk 10 minutes 地下鉄東西線「石田」歩10分
| Contact お問い合せ先 | | TEL: 0800-603-2828 [Toll free] mobile phone ・ Also available from PHS Caller ID is not notified Please contact the "saw SUUMO (Sumo)" If it does not lead, If the real estate company TEL:0800-603-2828【通話料無料】携帯電話・PHSからもご利用いただけます 発信者番号は通知されません 「SUUMO(スーモ)を見た」と問い合わせください つながらない方、不動産会社の方は
| Building coverage, floor area ratio 建ぺい率・容積率 | | Fifty percent ・ 80% 50%・80% | Time residents 入居時期 | | Consultation 相談 | Land of the right form 土地の権利形態 | | Ownership 所有権 | Structure and method of construction 構造・工法 | | Wooden 2-story 木造2階建 | Use district 用途地域 | | One low-rise 1種低層 | Overview and notices その他概要・特記事項 | | Facilities: Public Water Supply, This sewage, City gas, Parking: car space 設備:公営水道、本下水、都市ガス、駐車場:カースペース | Company profile 会社概要 | | <Mediation> Minister of Land, Infrastructure and Transport (8) No. 003251 No. Shikishima living Research Co., Ltd. Kyoto branch Yubinbango610-0121 Joyo City, Kyoto Prefecture Terada Toishiri 18-16 <仲介>国土交通大臣(8)第003251号敷島住研(株)京都支店〒610-0121 京都府城陽市寺田樋尻18-16 |
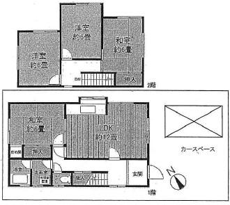
Floor plan間取り図  14 million yen, 4LDK, Land area 106.24 sq m , Building area 86.94 sq m
1400万円、4LDK、土地面積106.24m2、建物面積86.94m2
Government office役所  Uji City Hall
宇治市役所
Police station ・ Police box警察署・交番  Uji police station
宇治警察署
Post office郵便局  Uji post office
宇治郵便局
Other Environmental Photoその他環境写真  Taiyogaoka
太陽が丘
Location
|