1995April
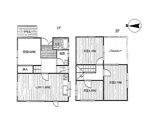
16.7 million yen, 4LDK, 81.1 sq m
Used Homes » Kansai » Kyoto » Uji
 
| | Kyoto Uji 京都府宇治市 |
| JR Nara Line "Kobata" walk 21 minutes JR奈良線「木幡」歩21分 |
Features pickup 特徴ピックアップ | | Or more before road 6m / Corner lot 前道6m以上 /角地 | Price 価格 | | 16.7 million yen 1670万円 | Floor plan 間取り | | 4LDK 4LDK | Units sold 販売戸数 | | 1 units 1戸 | Land area 土地面積 | | 103.23 sq m (registration) 103.23m2(登記) | Building area 建物面積 | | 81.1 sq m 81.1m2 | Driveway burden-road 私道負担・道路 | | Nothing, North 6m width, East 9m width 無、北6m幅、東9m幅 | Completion date 完成時期(築年月) | | April 1995 1995年4月 | Address 住所 | | Kyoto Uji Kobata Hirao 京都府宇治市木幡平尾 | Traffic 交通 | | JR Nara Line "Kobata" walk 21 minutes Keihan Uji Line "Obaku" walk 26 minutes JR Nara Line "Obaku" walk 25 minutes JR奈良線「木幡」歩21分 京阪宇治線「黄檗」歩26分 JR奈良線「黄檗」歩25分
| Related links 関連リンク | | [Related Sites of this company] 【この会社の関連サイト】 | Person in charge 担当者より | | Person in charge of real-estate and building alpine Juei Age: 50 Daigyokai experience: For 16 years our customers, Your sale of real estate ・ Your purchase is a major event which intersects the hope and anxiety. Peace of mind in caring, We want to offer a professional seems to services of real estate. We hope you do not hesitate to contact us. 担当者宅建高山 寿永年齢:50代業界経験:16年お客様にとって、不動産のご売却・ご購入は不安と希望が交差する一大イベントです。親身で安心、不動産のプロらしいサービスをご提供したいと思っております。お気軽にご相談頂ければ幸いです。 | Contact お問い合せ先 | | TEL: 0800-808-5994 [Toll free] mobile phone ・ Also available from PHS Caller ID is not notified Please contact the "saw SUUMO (Sumo)" If it does not lead, If the real estate company TEL:0800-808-5994【通話料無料】携帯電話・PHSからもご利用いただけます 発信者番号は通知されません 「SUUMO(スーモ)を見た」と問い合わせください つながらない方、不動産会社の方は
| Building coverage, floor area ratio 建ぺい率・容積率 | | Fifty percent ・ 80% 50%・80% | Time residents 入居時期 | | Consultation 相談 | Land of the right form 土地の権利形態 | | Ownership 所有権 | Structure and method of construction 構造・工法 | | Wooden 2-story 木造2階建 | Use district 用途地域 | | One low-rise 1種低層 | Overview and notices その他概要・特記事項 | | Contact: alpine Juei, Facilities: Public Water Supply, This sewage, City gas 担当者:高山 寿永、設備:公営水道、本下水、都市ガス | Company profile 会社概要 | | <Mediation> Governor of Kyoto Prefecture (3) The 011,255 No. ERA (Ltd.) Leo real estate sales Yubinbango611-0001 Kyoto Uji Rokujizo Nara 74-1 Padeshion Rokujizo The ・ Tower Residence 1 floor <仲介>京都府知事(3)第011255号ERA(株)レオ不動産販売〒611-0001 京都府宇治市六地蔵奈良町74-1 パデシオン六地蔵 ザ・タワーレジデンス1階 |
Local appearance photo現地外観写真  Local (11 May 2013) Shooting
現地(2013年11月)撮影
Floor plan間取り図  16.7 million yen, 4LDK, Land area 103.23 sq m , Building area 81.1 sq m
1670万円、4LDK、土地面積103.23m2、建物面積81.1m2
Local appearance photo現地外観写真  Local (11 May 2013) Shooting
現地(2013年11月)撮影
 Local (11 May 2013) Shooting
現地(2013年11月)撮影
Local photos, including front road前面道路含む現地写真  Local (11 May 2013) Shooting
現地(2013年11月)撮影
 Local (11 May 2013) Shooting
現地(2013年11月)撮影
Location
|