1982August
15.5 million yen, 5LDK, 97.71 sq m
Used Homes » Kansai » Kyoto » Uji

| | Kyoto Uji 京都府宇治市 |
| JR Nara Line "Uzi" walk 11 minutes JR奈良線「宇治」歩11分 |
| JR Uji Station walk 11 minutes Keihan Uji Station walk 13 minutes JR宇治駅徒歩11分京阪宇治駅徒歩13分 |
Features pickup 特徴ピックアップ | | 2 along the line more accessible / Corner lot / 2-story / Built garage / City gas 2沿線以上利用可 /角地 /2階建 /ビルトガレージ /都市ガス | Price 価格 | | 15.5 million yen 1550万円 | Floor plan 間取り | | 5LDK 5LDK | Units sold 販売戸数 | | 1 units 1戸 | Land area 土地面積 | | 153.45 sq m (registration) 153.45m2(登記) | Building area 建物面積 | | 97.71 sq m (registration) 97.71m2(登記) | Driveway burden-road 私道負担・道路 | | Nothing, East 4m width, North 6m width 無、東4m幅、北6m幅 | Completion date 完成時期(築年月) | | August 1982 1982年8月 | Address 住所 | | Kyoto Uji Uji good method 京都府宇治市宇治善法 | Traffic 交通 | | JR Nara Line "Uzi" walk 11 minutes Keihan Uji Line "Uji" walk 13 minutes JR奈良線「宇治」歩11分 京阪宇治線「宇治」歩13分
| Related links 関連リンク | | [Related Sites of this company] 【この会社の関連サイト】 | Contact お問い合せ先 | | TEL: 0800-603-2828 [Toll free] mobile phone ・ Also available from PHS Caller ID is not notified Please contact the "saw SUUMO (Sumo)" If it does not lead, If the real estate company TEL:0800-603-2828【通話料無料】携帯電話・PHSからもご利用いただけます 発信者番号は通知されません 「SUUMO(スーモ)を見た」と問い合わせください つながらない方、不動産会社の方は
| Building coverage, floor area ratio 建ぺい率・容積率 | | 40% ・ 200% 40%・200% | Time residents 入居時期 | | Consultation 相談 | Land of the right form 土地の権利形態 | | Ownership 所有権 | Structure and method of construction 構造・工法 | | Wooden 2-story 木造2階建 | Use district 用途地域 | | One dwelling 1種住居 | Overview and notices その他概要・特記事項 | | Facilities: Public Water Supply, This sewage, City gas, Parking: Garage 設備:公営水道、本下水、都市ガス、駐車場:車庫 | Company profile 会社概要 | | <Mediation> Minister of Land, Infrastructure and Transport (8) No. 003251 No. Shikishima living Research Co., Ltd. Kyoto branch Yubinbango610-0121 Joyo City, Kyoto Prefecture Terada Toishiri 18-16 <仲介>国土交通大臣(8)第003251号敷島住研(株)京都支店〒610-0121 京都府城陽市寺田樋尻18-16 |
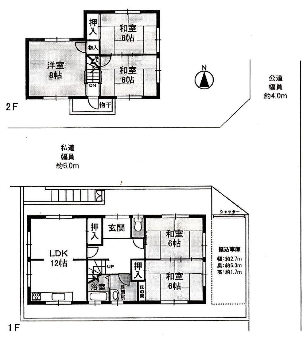
Floor plan間取り図  15.5 million yen, 5LDK, Land area 153.45 sq m , Building area 97.71 sq m
1550万円、5LDK、土地面積153.45m2、建物面積97.71m2
Location
|