|
|
Kyoto-shi, Kyoto Yamashina-ku,
京都府京都市山科区
|
|
Subway Tozai Line "Nagitsuji" walk 17 minutes
地下鉄東西線「椥辻」歩17分
|
|
☆ Neighborhood around enhancement ☆ There service yard! !
☆近隣周辺充実☆サービスヤードあり!!
|
|
SusumuOsamu elementary school ・ It is suitable as SusumuOsamu junior high school renovation site ※ We price change! !
勧修小学校・勧修中学校リフォーム用地として適しています※価格変更いたしました!!
|
Features pickup 特徴ピックアップ | | It is close to the city / Or more before road 6m / Japanese-style room / 2-story / City gas 市街地が近い /前道6m以上 /和室 /2階建 /都市ガス |
Price 価格 | | 6.7 million yen 670万円 |
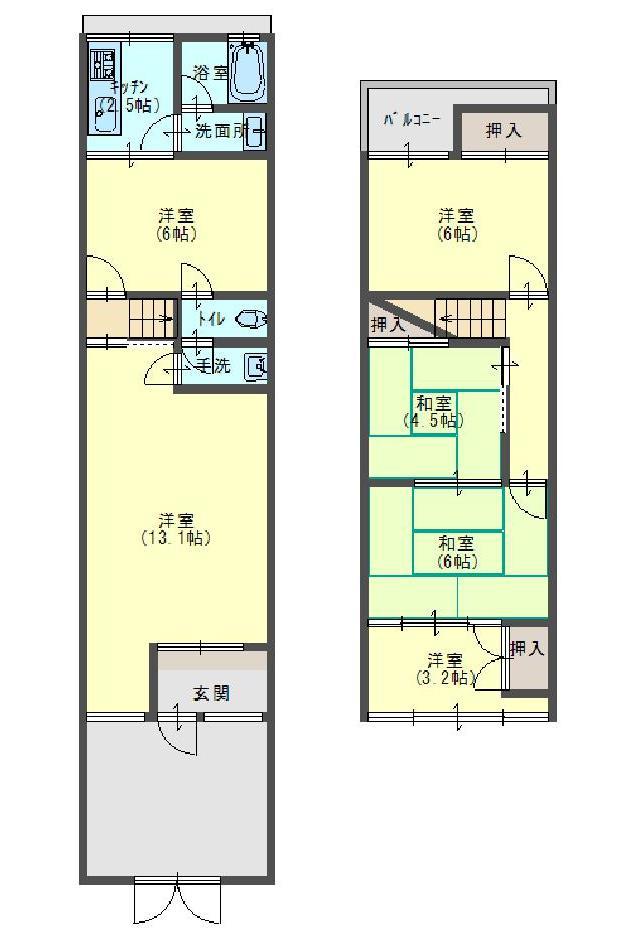
Floor plan 間取り | | 5K + S (storeroom) 5K+S(納戸) |
Units sold 販売戸数 | | 1 units 1戸 |
Land area 土地面積 | | 66.26 sq m 66.26m2 |
Building area 建物面積 | | 80.07 sq m 80.07m2 |
Driveway burden-road 私道負担・道路 | | Nothing, North 7m width (contact the road width 3.7m) 無、北7m幅(接道幅3.7m) |
Completion date 完成時期(築年月) | | December 1979 1979年12月 |
Address 住所 | | Kyoto-shi, Kyoto Yamashina-ku Nishinoyama ChuTorii cho 京都府京都市山科区西野山中鳥井町 |
Traffic 交通 | | Subway Tozai Line "Nagitsuji" walk 17 minutes 地下鉄東西線「椥辻」歩17分
|
Related links 関連リンク | | [Related Sites of this company] 【この会社の関連サイト】 |
Contact お問い合せ先 | | Endless real estate sales (Ltd.) TEL: 0800-808-4938 [Toll free] mobile phone ・ Also available from PHS Caller ID is not notified Please contact the "saw SUUMO (Sumo)" If it does not lead, If the real estate company エンドレス不動産販売(株)TEL:0800-808-4938【通話料無料】携帯電話・PHSからもご利用いただけます 発信者番号は通知されません 「SUUMO(スーモ)を見た」と問い合わせください つながらない方、不動産会社の方は
|
Building coverage, floor area ratio 建ぺい率・容積率 | | 60% ・ 200% 60%・200% |
Time residents 入居時期 | | Immediate available 即入居可 |
Land of the right form 土地の権利形態 | | Ownership 所有権 |
Structure and method of construction 構造・工法 | | Wooden 2-story 木造2階建 |
Use district 用途地域 | | One middle and high 1種中高 |
Other limitations その他制限事項 | | Regulations have by the Landscape Act, Quasi-fire zones 景観法による規制有、準防火地域 |
Overview and notices その他概要・特記事項 | | Facilities: Public Water Supply, This sewage, City gas, Parking: No 設備:公営水道、本下水、都市ガス、駐車場:無 |
Company profile 会社概要 | | <Mediation> Governor of Kyoto Prefecture (1) endless real estate sales. No. 013,038 (Ltd.) Yubinbango607-8142 Kyoto-shi, Kyoto Yamashina-ku Higashinonakainoue cho 7-68 <仲介>京都府知事(1)第013038号エンドレス不動産販売(株)〒607-8142 京都府京都市山科区東野中井ノ上町7-68 |