|
|
Okayama, Okayama Prefecture, Kita-ku,
岡山県岡山市北区
|
|
Bus "Golf Center before" walk 1 minute
バス「ゴルフセンター前」歩1分
|
|
・ Public sewage connection Allowed
・公共下水接続可
|
|
Parking three or more possibleese-style room, 2-story
駐車3台以上可、和室、2階建
|
Features pickup 特徴ピックアップ | | Parking three or more possible / Japanese-style room / 2-story 駐車3台以上可 /和室 /2階建 |
Price 価格 | | 11 million yen 1100万円 |
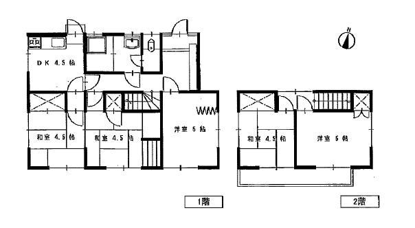
Floor plan 間取り | | 5DK 5DK |
Units sold 販売戸数 | | 1 units 1戸 |
Land area 土地面積 | | 218.69 sq m (registration) 218.69m2(登記) |
Building area 建物面積 | | 95 sq m (registration) 95m2(登記) |
Driveway burden-road 私道負担・道路 | | Nothing, North 7m width (contact the road width 15.8m) 無、北7m幅(接道幅15.8m) |
Completion date 完成時期(築年月) | | May 1975 1975年5月 |
Address 住所 | | Okayama, Okayama Prefecture, Kita-ku, Tsudaka 岡山県岡山市北区津高 |
Traffic 交通 | | Bus "Golf Center before" walk 1 minute JR Tsuyama Line "Hokaiin" walk 53 minutes JR Sanyo Line "Okayama" walk 66 minutes バス「ゴルフセンター前」歩1分JR津山線「法界院」歩53分 JR山陽本線「岡山」歩66分
|
Related links 関連リンク | | [Related Sites of this company] 【この会社の関連サイト】 |
Contact お問い合せ先 | | TEL: 0800-603-3177 [Toll free] mobile phone ・ Also available from PHS Caller ID is not notified Please contact the "saw SUUMO (Sumo)" If it does not lead, If the real estate company TEL:0800-603-3177【通話料無料】携帯電話・PHSからもご利用いただけます 発信者番号は通知されません 「SUUMO(スーモ)を見た」と問い合わせください つながらない方、不動産会社の方は
|
Building coverage, floor area ratio 建ぺい率・容積率 | | Fifty percent ・ Hundred percent 50%・100% |
Time residents 入居時期 | | Consultation 相談 |
Land of the right form 土地の権利形態 | | Ownership 所有権 |
Structure and method of construction 構造・工法 | | Light-gauge steel 2-story 軽量鉄骨2階建 |
Use district 用途地域 | | One low-rise 1種低層 |
Overview and notices その他概要・特記事項 | | Facilities: Public Water Supply, Individual septic tank, City gas, Parking: car space 設備:公営水道、個別浄化槽、都市ガス、駐車場:カースペース |
Company profile 会社概要 | | <Mediation> Minister of Land, Infrastructure and Transport (2) Apamanshop real estate sales Kitanagase store No. 007268 (Ltd.) KI Home Yubinbango700-0964 Okayama, Okayama Prefecture, Kita-ku, Nakasendo 2-33-1 <仲介>国土交通大臣(2)第007268号アパマンショップ不動産販売北長瀬店(株)ケイアイホーム〒700-0964 岡山県岡山市北区中仙道2-33-1 |