1996March
19 million yen, 4LDK, 132 sq m
Used Homes » Chugoku » Okayama Prefecture » Kita-ku
 
| | Okayama, Okayama Prefecture, Kita-ku, 岡山県岡山市北区 |
| JR Sanyo Line "Niwase" walk 24 minutes JR山陽本線「庭瀬」歩24分 |
| Parking two possible Heisei 8 years building from. 駐車2台可能 平成8年築の建物です。 |
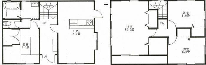
Features pickup 特徴ピックアップ | | Parking two Allowed / Land 50 square meters or more / System kitchen / Yang per good / A quiet residential area / Face-to-face kitchen / 2-story 駐車2台可 /土地50坪以上 /システムキッチン /陽当り良好 /閑静な住宅地 /対面式キッチン /2階建 | Price 価格 | | 19 million yen 1900万円 | Floor plan 間取り | | 4LDK 4LDK | Units sold 販売戸数 | | 1 units 1戸 | Land area 土地面積 | | 184.3 sq m (registration) 184.3m2(登記) | Building area 建物面積 | | 132 sq m (registration) 132m2(登記) | Driveway burden-road 私道負担・道路 | | Nothing 無 | Completion date 完成時期(築年月) | | March 1996 1996年3月 | Address 住所 | | Okayama, Okayama Prefecture, Kita-ku, Natsukawa 岡山県岡山市北区撫川 | Traffic 交通 | | JR Sanyo Line "Niwase" walk 24 minutes JR山陽本線「庭瀬」歩24分
| Related links 関連リンク | | [Related Sites of this company] 【この会社の関連サイト】 | Person in charge 担当者より | | Rep Horii 担当者堀井 | Contact お問い合せ先 | | (Ltd.) utility Home TEL: 086-250-0560 Please inquire as "saw SUUMO (Sumo)" (株)ユーティリティホームTEL:086-250-0560「SUUMO(スーモ)を見た」と問い合わせください | Building coverage, floor area ratio 建ぺい率・容積率 | | 60% ・ 200% 60%・200% | Time residents 入居時期 | | Consultation 相談 | Land of the right form 土地の権利形態 | | Ownership 所有権 | Structure and method of construction 構造・工法 | | Wooden 2-story 木造2階建 | Overview and notices その他概要・特記事項 | | Contact: Horii, Facilities: Public Water Supply, Individual septic tank, Individual LPG, Parking: Car Port 担当者:堀井、設備:公営水道、個別浄化槽、個別LPG、駐車場:カーポート | Company profile 会社概要 | | <Mediation> Okayama Governor (1) No. 005269 (Ltd.) utility Home Yubinbango700-0927 Okayama, Okayama Prefecture, Kita-ku, Nishifurumatsu 230-110 <仲介>岡山県知事(1)第005269号(株)ユーティリティホーム〒700-0927 岡山県岡山市北区西古松230-110 |
 Local appearance photo
現地外観写真
Floor plan間取り図  19 million yen, 4LDK, Land area 184.3 sq m , Building area 132 sq m
1900万円、4LDK、土地面積184.3m2、建物面積132m2
Location
|