|
|
Okayama, Okayama Prefecture, Kita-ku,
岡山県岡山市北区
|
|
Bus "medium Tsudakadai" walk 5 minutes
バス「津高台中」歩5分
|
|
Misawa Homes of building (house with a collection), Sum stock housing (building: 15.6 million yen, Land: 1,320 million), There are two cars carport, The room has been carefully use.
ミサワホームの建物(蔵のある家)、スムストック住宅(建物:1,560万円、土地:1,320万円)、カーポート2台分有り、室内は丁寧に使用されています。
|
Features pickup 特徴ピックアップ | | LDK20 tatami mats or more / Land 50 square meters or more / Siemens south road / Or more before road 6m / Dish washing dryer / Development subdivision in LDK20畳以上 /土地50坪以上 /南側道路面す /前道6m以上 /食器洗乾燥機 /開発分譲地内 |
Price 価格 | | 28.8 million yen 2880万円 |
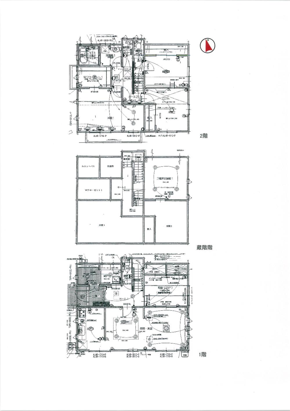
Floor plan 間取り | | 4LDK + S (storeroom) 4LDK+S(納戸) |
Units sold 販売戸数 | | 1 units 1戸 |
Land area 土地面積 | | 224.98 sq m (68.05 tsubo) (Registration) 224.98m2(68.05坪)(登記) |
Building area 建物面積 | | 132.48 sq m (40.07 tsubo) (Registration) 132.48m2(40.07坪)(登記) |
Driveway burden-road 私道負担・道路 | | Nothing, South 6m width (contact the road width 15m) 無、南6m幅(接道幅15m) |
Completion date 完成時期(築年月) | | September 2004 2004年9月 |
Address 住所 | | Okayama, Okayama Prefecture, Kita-ku, Tsudakadai 3 岡山県岡山市北区津高台3 |
Traffic 交通 | | Bus "medium Tsudakadai" walk 5 minutes バス「津高台中」歩5分 |
Person in charge 担当者より | | [Regarding this property.] Misawa Homes of building (house with a collection), Sum stock housing (building: 15.6 million yen, Land: 1,320 million), There are two cars carport, The room has been carefully use. 【この物件について】ミサワホームの建物(蔵のある家)、スムストック住宅(建物:1,560万円、土地:1,320万円)、カーポート2台分有り、室内は丁寧に使用されています。 |
Contact お問い合せ先 | | TEL: 0800-603-2331 [Toll free] mobile phone ・ Also available from PHS Caller ID is not notified Please contact the "saw SUUMO (Sumo)" If it does not lead, If the real estate company TEL:0800-603-2331【通話料無料】携帯電話・PHSからもご利用いただけます 発信者番号は通知されません 「SUUMO(スーモ)を見た」と問い合わせください つながらない方、不動産会社の方は
|
Building coverage, floor area ratio 建ぺい率・容積率 | | Fifty percent ・ Hundred percent 50%・100% |
Time residents 入居時期 | | Consultation 相談 |
Land of the right form 土地の権利形態 | | Ownership 所有権 |
Structure and method of construction 構造・工法 | | Wooden 2-story 木造2階建 |
Use district 用途地域 | | One low-rise 1種低層 |
Overview and notices その他概要・特記事項 | | Facilities: Public Water Supply, This sewage, City gas, Parking: Car Port 設備:公営水道、本下水、都市ガス、駐車場:カーポート |
Company profile 会社概要 | | <Mediation> Minister of Land, Infrastructure and Transport (5) Article 005154 No. Misawa Homes China Co., Ltd., Okayama branch Yubinbango700-0971 Okayama, Kita-ku, Noda 2-13-17 <仲介>国土交通大臣(5)第005154号ミサワホーム中国(株)岡山支店〒700-0971 岡山県岡山市北区野田2-13-17 |