1966April
14.6 million yen, 9DK, 196.81 sq m
Used Homes » Chugoku » Okayama Prefecture » Kurashiki
 
| | Kurashiki, Okayama Prefecture 岡山県倉敷市 |
| Ihara railway "Kibi no Makibi" walk 9 minutes 井原鉄道「吉備真備」歩9分 |
Features pickup 特徴ピックアップ | | Land more than 100 square meters / Facing south / Siemens south road / Or more before road 6m / Corner lot / Garden more than 10 square meters 土地100坪以上 /南向き /南側道路面す /前道6m以上 /角地 /庭10坪以上 | Price 価格 | | 14.6 million yen 1460万円 | Floor plan 間取り | | 9DK 9DK | Units sold 販売戸数 | | 1 units 1戸 | Land area 土地面積 | | 375.68 sq m (registration) 375.68m2(登記) | Building area 建物面積 | | 196.81 sq m (registration) 196.81m2(登記) | Driveway burden-road 私道負担・道路 | | Nothing, South 12m width, East 3.5m width 無、南12m幅、東3.5m幅 | Completion date 完成時期(築年月) | | April 1966 1966年4月 | Address 住所 | | Kurashiki, Okayama Prefecture Mabi-cho, Yata 岡山県倉敷市真備町箭田 | Traffic 交通 | | Ihara railway "Kibi no Makibi" walk 9 minutes 井原鉄道「吉備真備」歩9分
| Contact お問い合せ先 | | TEL: 0800-603-7077 [Toll free] mobile phone ・ Also available from PHS Caller ID is not notified Please contact the "saw SUUMO (Sumo)" If it does not lead, If the real estate company TEL:0800-603-7077【通話料無料】携帯電話・PHSからもご利用いただけます 発信者番号は通知されません 「SUUMO(スーモ)を見た」と問い合わせください つながらない方、不動産会社の方は
| Building coverage, floor area ratio 建ぺい率・容積率 | | 60% ・ 200% 60%・200% | Time residents 入居時期 | | Consultation 相談 | Land of the right form 土地の権利形態 | | Ownership 所有権 | Structure and method of construction 構造・工法 | | Wooden 2-story 木造2階建 | Use district 用途地域 | | One dwelling 1種住居 | Other limitations その他制限事項 | | Setback: upon 4 sq m , Regulations have by the Landscape Act, Residential land development construction regulation area セットバック:要4m2、景観法による規制有、宅地造成工事規制区域 | Overview and notices その他概要・特記事項 | | Facilities: Public Water Supply, This sewage, Individual LPG 設備:公営水道、本下水、個別LPG | Company profile 会社概要 | | <Mediation> Okayama Governor (2) No. 005012 (Ltd.) Atlas Kurashiki Yubinbango710-0807 Kurashiki, Okayama Prefecture Nishiachi cho 949-8 <仲介>岡山県知事(2)第005012号(株)アトラス倉敷〒710-0807 岡山県倉敷市西阿知町949-8 |
Local appearance photo現地外観写真  Local (March 2012) shooting
現地(2012年3月)撮影
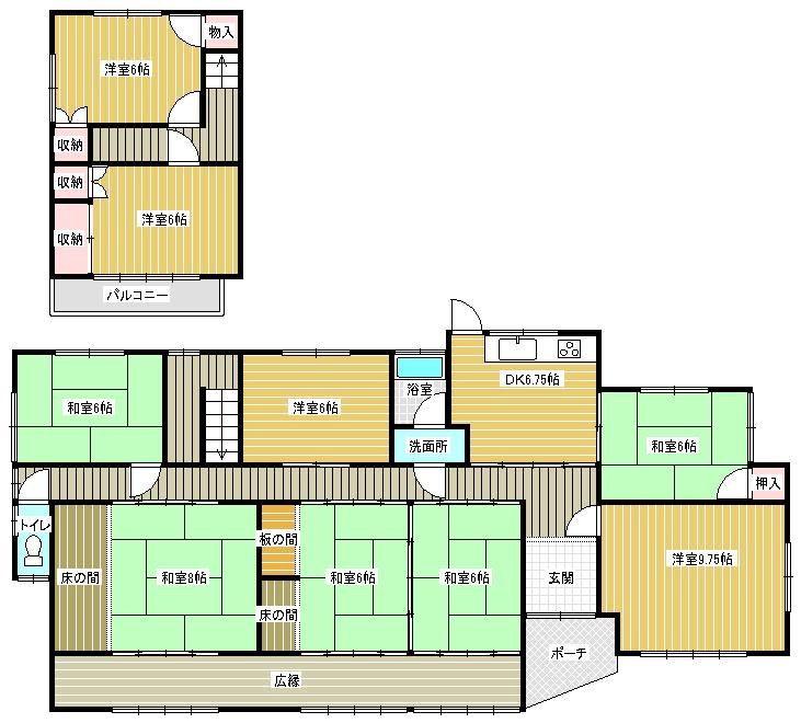
Floor plan間取り図  14.6 million yen, 9DK, Land area 375.68 sq m , Building area 196.81 sq m
1460万円、9DK、土地面積375.68m2、建物面積196.81m2
Other introspectionその他内観  Indoor (March 2012) shooting
室内(2012年3月)撮影
Livingリビング  Indoor (March 2012) shooting
室内(2012年3月)撮影
Bathroom浴室  Indoor (March 2012) shooting
室内(2012年3月)撮影
Garden庭  Local (March 2012) shooting
現地(2012年3月)撮影
Location
|