2005December
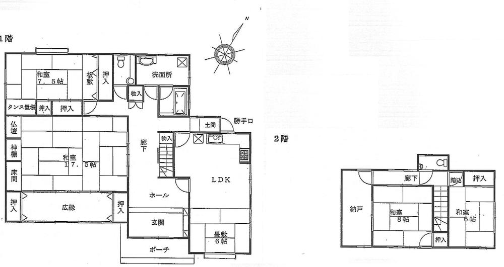
19,800,000 yen, 4LDK + S (storeroom), 202.46 sq m
Used Homes » Chugoku » Okayama Prefecture » Kurashiki
 
| | Kurashiki, Okayama Prefecture 岡山県倉敷市 |
| JR Honshi-Bisan Line "see tree" walk 19 minutes JR本四備讃線「木見」歩19分 |
| Mansion of the Japanese style with a calm おちつきのある和風の邸宅 |
Features pickup 特徴ピックアップ | | Parking two Allowed / Land more than 100 square meters / 2-story / Storeroom 駐車2台可 /土地100坪以上 /2階建 /納戸 | Price 価格 | | 19,800,000 yen 1980万円 | Floor plan 間取り | | 4LDK + S (storeroom) 4LDK+S(納戸) | Units sold 販売戸数 | | 1 units 1戸 | Land area 土地面積 | | 348.41 sq m (registration) 348.41m2(登記) | Building area 建物面積 | | 202.46 sq m (registration) 202.46m2(登記) | Driveway burden-road 私道負担・道路 | | Nothing 無 | Completion date 完成時期(築年月) | | December 2005 2005年12月 | Address 住所 | | Kurashiki, Okayama Prefecture forest 1941, 1940-1 岡山県倉敷市林1941、1940-1 | Traffic 交通 | | JR Honshi-Bisan Line "see tree" walk 19 minutes JR本四備讃線「木見」歩19分
| Person in charge 担当者より | | [Regarding this property.] Inquiries about this property, please leave it to Kurashiki of real estate leaf. 【この物件について】この物件のお問い合わせは倉敷の不動産リーフにお任せください。 | Contact お問い合せ先 | | TEL: 086-423-6116 Please inquire as "saw SUUMO (Sumo)" TEL:086-423-6116「SUUMO(スーモ)を見た」と問い合わせください | Building coverage, floor area ratio 建ぺい率・容積率 | | 60% ・ 200% 60%・200% | Land of the right form 土地の権利形態 | | Ownership 所有権 | Structure and method of construction 構造・工法 | | Wooden 2-story 木造2階建 | Use district 用途地域 | | One dwelling 1種住居 | Overview and notices その他概要・特記事項 | | Parking: car space 駐車場:カースペース | Company profile 会社概要 | | <Mediation> Okayama Governor (2) No. 004665 (Ltd.) leaf Yubinbango710-0835 Kurashiki City, Okayama Prefecture Shijuse 308-8 <仲介>岡山県知事(2)第004665号(株)リーフ〒710-0835 岡山県倉敷市四十瀬308-8 |
 Local appearance photo
現地外観写真
 Other local
その他現地
 Local photos, including front road
前面道路含む現地写真
Floor plan間取り図  19,800,000 yen, 4LDK + S (storeroom), Land area 348.41 sq m , Building area 202.46 sq m
1980万円、4LDK+S(納戸)、土地面積348.41m2、建物面積202.46m2
 Local appearance photo
現地外観写真
 Local appearance photo
現地外観写真
Location
|