|
|
Kurashiki, Okayama Prefecture
岡山県倉敷市
|
|
Mizushima seaside railway "Mizushima" walk 41 minutes
水島臨海鉄道「水島」歩41分
|
|
2009 Built Have been the room carefully use. Parking four possible! !
平成21年築 室内丁寧に利用されています。駐車4台可能!!
|
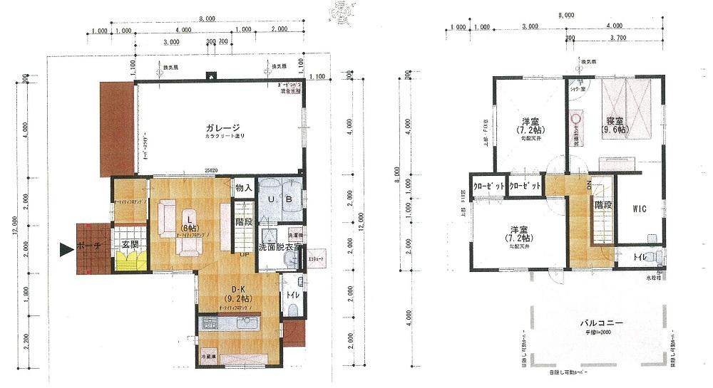
Features pickup 特徴ピックアップ | | Parking three or more possible / System kitchen / Bathroom Dryer / Yang per good / All room storage / LDK15 tatami mats or more / Washbasin with shower / Shutter - garage / Barrier-free / Toilet 2 places / Bathroom 1 tsubo or more / 2-story / Warm water washing toilet seat / All living room flooring / IH cooking heater / Dish washing dryer / Walk-in closet / All room 6 tatami mats or more / All-electric / roof balcony 駐車3台以上可 /システムキッチン /浴室乾燥機 /陽当り良好 /全居室収納 /LDK15畳以上 /シャワー付洗面台 /シャッタ-車庫 /バリアフリー /トイレ2ヶ所 /浴室1坪以上 /2階建 /温水洗浄便座 /全居室フローリング /IHクッキングヒーター /食器洗乾燥機 /ウォークインクロゼット /全居室6畳以上 /オール電化 /ルーフバルコニー |
Price 価格 | | 29,800,000 yen 2980万円 |
Floor plan 間取り | | 3LDK + S (storeroom) 3LDK+S(納戸) |
Units sold 販売戸数 | | 1 units 1戸 |
Land area 土地面積 | | 172.9 sq m (52.30 tsubo) (Registration) 172.9m2(52.30坪)(登記) |
Building area 建物面積 | | 136.09 sq m (41.16 tsubo) (Registration) 136.09m2(41.16坪)(登記) |
Driveway burden-road 私道負担・道路 | | Nothing, Northwest 6m width 無、北西6m幅 |
Completion date 完成時期(築年月) | | February 2009 2009年2月 |
Address 住所 | | Kurashiki, Okayama Prefecture Tsurajimachotsurushinden 岡山県倉敷市連島町鶴新田 |
Traffic 交通 | | Mizushima seaside railway "Mizushima" walk 41 minutes 水島臨海鉄道「水島」歩41分
|
Related links 関連リンク | | [Related Sites of this company] 【この会社の関連サイト】 |
Person in charge 担当者より | | Rep Horii 担当者堀井 |
Contact お問い合せ先 | | (Ltd.) utility Home TEL: 086-250-0560 Please inquire as "saw SUUMO (Sumo)" (株)ユーティリティホームTEL:086-250-0560「SUUMO(スーモ)を見た」と問い合わせください |
Building coverage, floor area ratio 建ぺい率・容積率 | | 60% ・ 200% 60%・200% |
Time residents 入居時期 | | Immediate available 即入居可 |
Land of the right form 土地の権利形態 | | Ownership 所有権 |
Structure and method of construction 構造・工法 | | Wooden 2-story 木造2階建 |
Use district 用途地域 | | Semi-industrial 準工業 |
Overview and notices その他概要・特記事項 | | Contact: Horii, Facilities: Public Water Supply, All-electric, Parking: Garage 担当者:堀井、設備:公営水道、オール電化、駐車場:車庫 |
Company profile 会社概要 | | <Mediation> Okayama Governor (1) No. 005269 (Ltd.) utility Home Yubinbango700-0927 Okayama, Okayama Prefecture, Kita-ku, Nishifurumatsu 230-110 <仲介>岡山県知事(1)第005269号(株)ユーティリティホーム〒700-0927 岡山県岡山市北区西古松230-110 |