Used Homes » Chugoku » Okayama Prefecture » Kurashiki
 
| | Kurashiki, Okayama Prefecture 岡山県倉敷市 |
| JR Honshi-Bisan Line "see tree" walk 19 minutes JR本四備讃線「木見」歩19分 |
| Residence in consideration of the space of the sum. 2005 new construction of full-scale Japanese-style house! Renovated. Parking one possible (with electric shutter) 和の空間に配慮した住まい。平成17年新築の本格和風住宅!リフォーム済み。駐車1台可能(電動シャッター付) |
| Land more than 100 square meters, Super close, Interior renovation, Facing south, System kitchen, Immediate Available, See the mountain, It is close to the city, Bathroom Dryer, Yang per good, All room storage, Flat to the station, Siemens south road, A quiet residential area, LDK15 tatami mats or more, Around traffic fewer, Corner lotese-style room, Shaping land, Washbasin with shower, Shutter garage, Barrier-free, Toilet 2 places, 2-story, Warm water washing toilet seat, Nantei, Underfloor Storage, The window in the bathroom, Leafy residential area, Ventilation good, All room 6 tatami mats or more, Storeroom 土地100坪以上、スーパーが近い、内装リフォーム、南向き、システムキッチン、即入居可、山が見える、市街地が近い、浴室乾燥機、陽当り良好、全居室収納、駅まで平坦、南側道路面す、閑静な住宅地、LDK15畳以上、周辺交通量少なめ、角地、和室、整形地、シャワー付洗面台、シャッター車庫、バリアフリー、トイレ2ヶ所、2階建、温水洗浄便座、南庭、床下収納、浴室に窓、緑豊かな住宅地、通風良好、全居室6畳以上、納戸 |
Features pickup 特徴ピックアップ | | Immediate Available / Land more than 100 square meters / See the mountain / Super close / It is close to the city / Interior renovation / Facing south / System kitchen / Bathroom Dryer / Yang per good / All room storage / Flat to the station / Siemens south road / A quiet residential area / LDK15 tatami mats or more / Around traffic fewer / Corner lot / Japanese-style room / Shaping land / Washbasin with shower / Shutter - garage / Barrier-free / Toilet 2 places / 2-story / Warm water washing toilet seat / Nantei / Underfloor Storage / The window in the bathroom / Leafy residential area / Ventilation good / All room 6 tatami mats or more / Storeroom 即入居可 /土地100坪以上 /山が見える /スーパーが近い /市街地が近い /内装リフォーム /南向き /システムキッチン /浴室乾燥機 /陽当り良好 /全居室収納 /駅まで平坦 /南側道路面す /閑静な住宅地 /LDK15畳以上 /周辺交通量少なめ /角地 /和室 /整形地 /シャワー付洗面台 /シャッタ-車庫 /バリアフリー /トイレ2ヶ所 /2階建 /温水洗浄便座 /南庭 /床下収納 /浴室に窓 /緑豊かな住宅地 /通風良好 /全居室6畳以上 /納戸 | Price 価格 | | 19,800,000 yen 1980万円 | Floor plan 間取り | | 5LDK + S (storeroom) 5LDK+S(納戸) | Units sold 販売戸数 | | 1 units 1戸 | Land area 土地面積 | | 344.32 sq m (104.15 tsubo) (Registration) 344.32m2(104.15坪)(登記) | Building area 建物面積 | | 202.46 sq m (61.24 tsubo) (Registration) 202.46m2(61.24坪)(登記) | Driveway burden-road 私道負担・道路 | | Nothing 無 | Completion date 完成時期(築年月) | | December 2005 2005年12月 | Address 住所 | | Kurashiki, Okayama Prefecture forest 岡山県倉敷市林 | Traffic 交通 | | JR Honshi-Bisan Line "see tree" walk 19 minutes JR Honshi-Bisan Line "Uematsu" walk 38 minutes JR Uno Line "Hikozaki" walk 48 minutes JR本四備讃線「木見」歩19分 JR本四備讃線「植松」歩38分 JR宇野線「彦崎」歩48分
| Related links 関連リンク | | [Related Sites of this company] 【この会社の関連サイト】 | Person in charge 担当者より | | Person in charge of real-estate and building Tauchi Soichi Age: 30 Daigyokai Experience: 5 years real estate purchase, The first time that for our customers. Anything that uneasy, Ride in consultation. Please leave! 担当者宅建田内 聡一年齢:30代業界経験:5年不動産購入は、お客様にとって初めてのこと。不安なこと何でも、相談にのります。おまかせ下さい! | Contact お問い合せ先 | | TEL: 0800-805-3604 [Toll free] mobile phone ・ Also available from PHS Caller ID is not notified Please contact the "saw SUUMO (Sumo)" If it does not lead, If the real estate company TEL:0800-805-3604【通話料無料】携帯電話・PHSからもご利用いただけます 発信者番号は通知されません 「SUUMO(スーモ)を見た」と問い合わせください つながらない方、不動産会社の方は
| Time residents 入居時期 | | Immediate available 即入居可 | Land of the right form 土地の権利形態 | | Ownership 所有権 | Structure and method of construction 構造・工法 | | Wooden 2-story 木造2階建 | Renovation リフォーム | | August interior renovation completed (Kitchen 2012 ・ tatami) 2012年8月内装リフォーム済(キッチン・畳) | Overview and notices その他概要・特記事項 | | Contact: Tauchi Soichi, Facilities: Public Water Supply, Individual septic tank, Parking: Garage 担当者:田内 聡一、設備:公営水道、個別浄化槽、駐車場:車庫 | Company profile 会社概要 | | <Mediation> Okayama Governor (1) No. 005435 (Ltd.) Kenbo Yubinbango710-0844 Fukui Kurashiki, Okayama Prefecture 54-1 <仲介>岡山県知事(1)第005435号(株)建房〒710-0844 岡山県倉敷市福井54-1 |
Local appearance photo現地外観写真  Local (June 2013) Shooting
現地(2013年6月)撮影
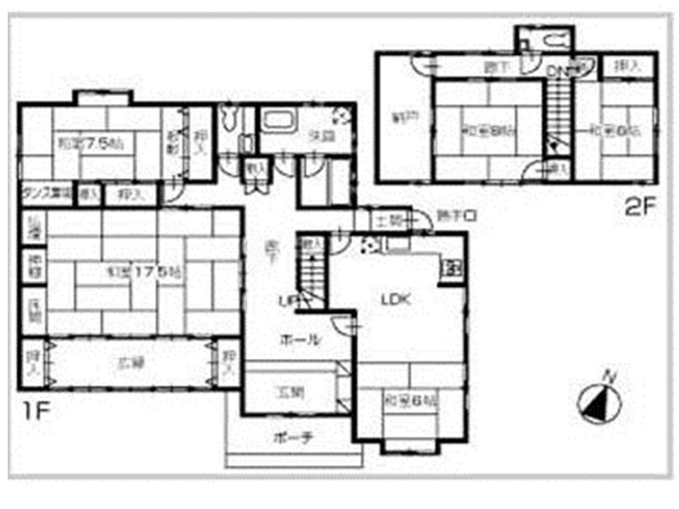
Floor plan間取り図  19,800,000 yen, 5LDK + S (storeroom), Land area 344.32 sq m , Building area 202.46 sq m
1980万円、5LDK+S(納戸)、土地面積344.32m2、建物面積202.46m2
Kitchenキッチン  Indoor (June 2013) Shooting
室内(2013年6月)撮影
Livingリビング  Indoor (June 2013) Shooting
室内(2013年6月)撮影
Bathroom浴室  Indoor (June 2013) Shooting
室内(2013年6月)撮影
Non-living roomリビング以外の居室  Indoor (June 2013) Shooting
室内(2013年6月)撮影
Entrance玄関  Local (June 2013) Shooting
現地(2013年6月)撮影
 Wash basin, toilet
洗面台・洗面所
 Toilet
トイレ
Garden庭  Local (June 2013) Shooting
現地(2013年6月)撮影
Parking lot駐車場  Local (June 2013) Shooting
現地(2013年6月)撮影
 Bathroom
浴室
Non-living roomリビング以外の居室  Indoor (June 2013) Shooting
室内(2013年6月)撮影
 Garden
庭
 Non-living room
リビング以外の居室
Otherその他  Introduction of staff
スタッフ紹介
 Introduction of staff
スタッフ紹介
Location
|