|
|
Kurashiki, Okayama Prefecture
岡山県倉敷市
|
|
JR Honshi-Bisan Line "Kojima" walk 10 minutes
JR本四備讃線「児島」歩10分
|
|
Property number: A-001 Up to about JR Kojima Station 820m! Parking three Allowed!
物件番号:A-001 JR児島駅まで約820m!駐車3台可!
|
|
Parking three or more possible, It is close to the city, Flat to the station, LDK15 tatami mats or more, Or more before road 6m, Face-to-face kitchen, Bathroom 1 tsubo or more, 2-story, Flat terrain
駐車3台以上可、市街地が近い、駅まで平坦、LDK15畳以上、前道6m以上、対面式キッチン、浴室1坪以上、2階建、平坦地
|
Features pickup 特徴ピックアップ | | Parking three or more possible / It is close to the city / Flat to the station / LDK15 tatami mats or more / Or more before road 6m / Face-to-face kitchen / Bathroom 1 tsubo or more / 2-story / Flat terrain 駐車3台以上可 /市街地が近い /駅まで平坦 /LDK15畳以上 /前道6m以上 /対面式キッチン /浴室1坪以上 /2階建 /平坦地 |
Price 価格 | | 12.9 million yen 1290万円 |
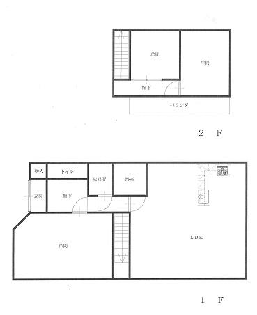
Floor plan 間取り | | 3LDK 3LDK |
Units sold 販売戸数 | | 1 units 1戸 |
Land area 土地面積 | | 157.41 sq m 157.41m2 |
Building area 建物面積 | | 102.64 sq m 102.64m2 |
Driveway burden-road 私道負担・道路 | | Nothing, West 6m width 無、西6m幅 |
Completion date 完成時期(築年月) | | February 1974 1974年2月 |
Address 住所 | | Kurashiki, Okayama Prefecture Kojimamotohama cho 岡山県倉敷市児島元浜町 |
Traffic 交通 | | JR Honshi-Bisan Line "Kojima" walk 10 minutes JR本四備讃線「児島」歩10分
|
Related links 関連リンク | | [Related Sites of this company] 【この会社の関連サイト】 |
Contact お問い合せ先 | | TEL: 0800-603-6410 [Toll free] mobile phone ・ Also available from PHS Caller ID is not notified Please contact the "saw SUUMO (Sumo)" If it does not lead, If the real estate company TEL:0800-603-6410【通話料無料】携帯電話・PHSからもご利用いただけます 発信者番号は通知されません 「SUUMO(スーモ)を見た」と問い合わせください つながらない方、不動産会社の方は
|
Building coverage, floor area ratio 建ぺい率・容積率 | | 60% ・ 200% 60%・200% |
Time residents 入居時期 | | Consultation 相談 |
Land of the right form 土地の権利形態 | | Ownership 所有権 |
Structure and method of construction 構造・工法 | | Wooden 2-story 木造2階建 |
Use district 用途地域 | | Semi-industrial 準工業 |
Overview and notices その他概要・特記事項 | | Parking: car space 駐車場:カースペース |
Company profile 会社概要 | | <Mediation> Okayama Governor (8) No. 002875 (Ltd.) Yorozuya Yubinbango710-0142 Kurashiki City, Okayama Prefecture forest 2114-3 <仲介>岡山県知事(8)第002875号(株)萬屋〒710-0142 岡山県倉敷市林2114-3 |